鑄慕

開價

210.0萬/坪
高於本區平均行情18.10%

住展估價

193.0萬/坪[註]本刊研判行情價

實價登錄

200.1萬/坪[註]近一年平均單價

總價

尚無資料

建案型態

預售屋 / 大樓

投資興建

企劃銷售

建案坪數

25~51坪

銷售狀態

銷售中

關注人數

 10270人關注

詳細資料

基地位置

光復南路260巷25之1號

總價

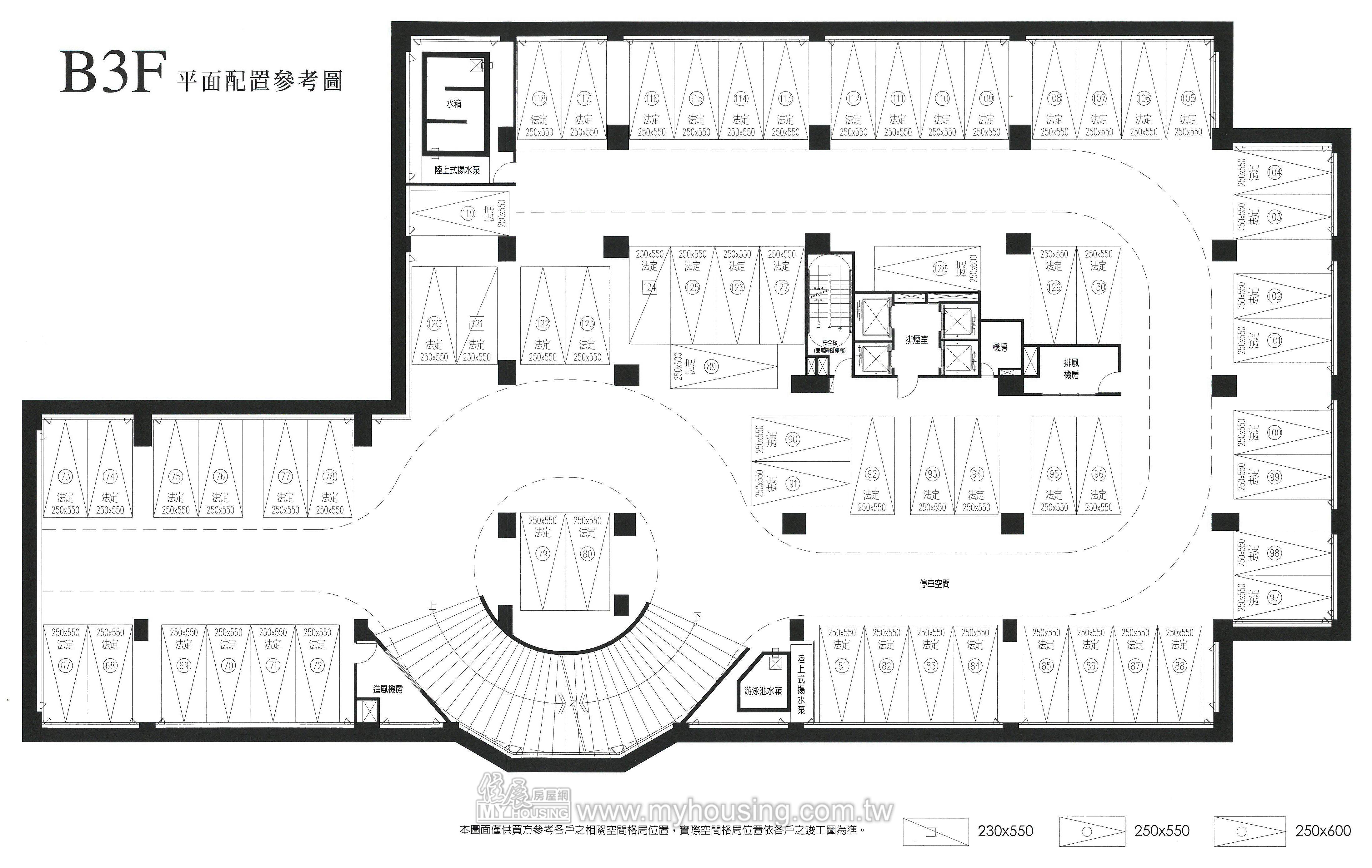
車位

平面/380~550萬

進駐日期

2023-05-04

銀行貸款

70%

層數

地上24層/地下4層

公設比

33.98%

實價登錄資訊

▲以下價格為每坪單價/萬元;單價已扣車位。
更新日期與內政部每月1日11日21日同步;成交價格受交易日期、樓層及戶別影響,故平均單價僅供參考。

歷史最高價

211.2 萬元/坪

交易年月

2024/11/27

歷史最低價

176.1 萬元/坪

交易年月

2024/03/27

交易筆數

36筆

歷史平均價

195.3 萬元/坪

議價率

4.0%

建案規劃

建築設計

陳廷杰

企劃銷售

使用執照

未提供

預定交屋日

2026-12

建造執照

111-0047

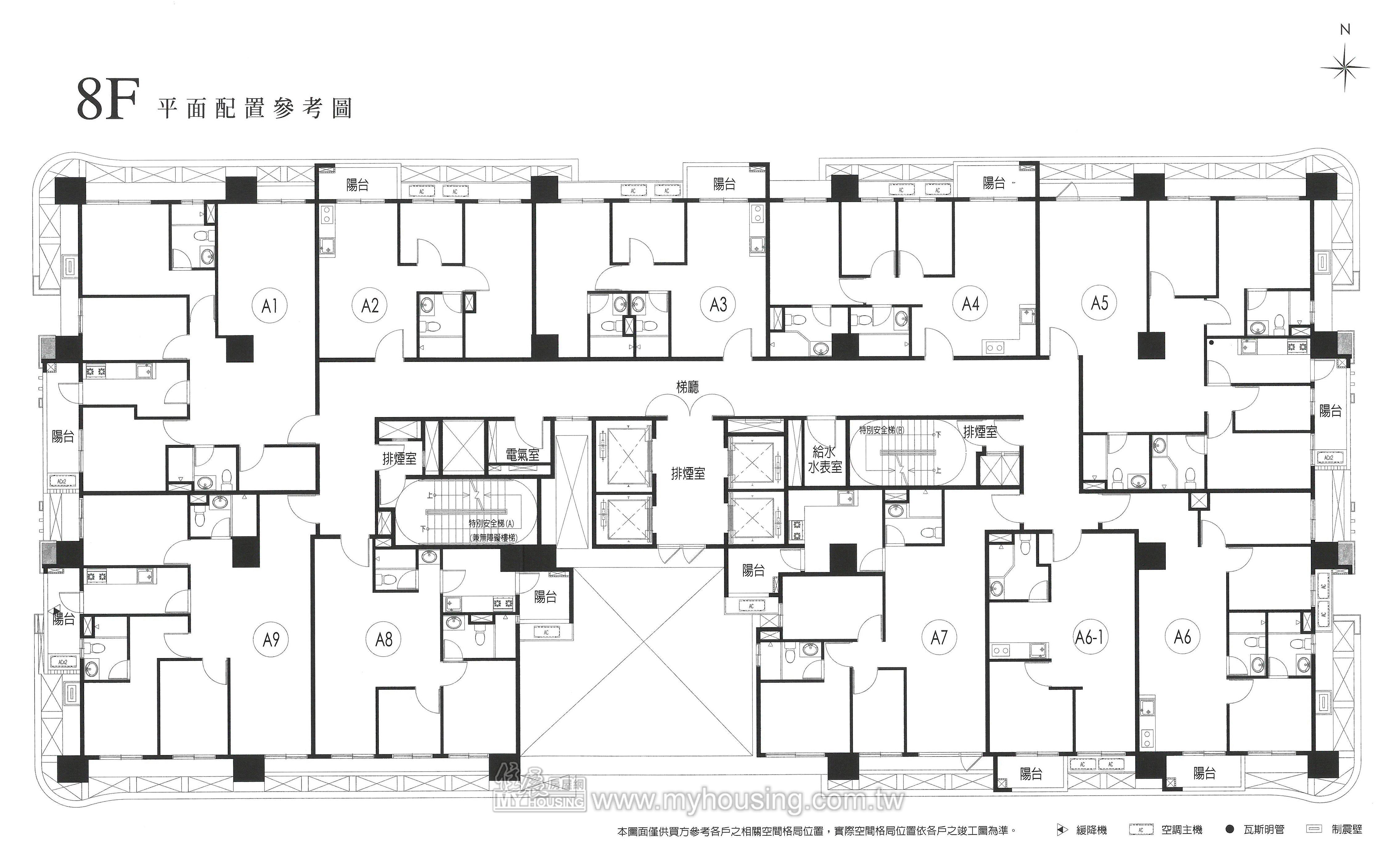
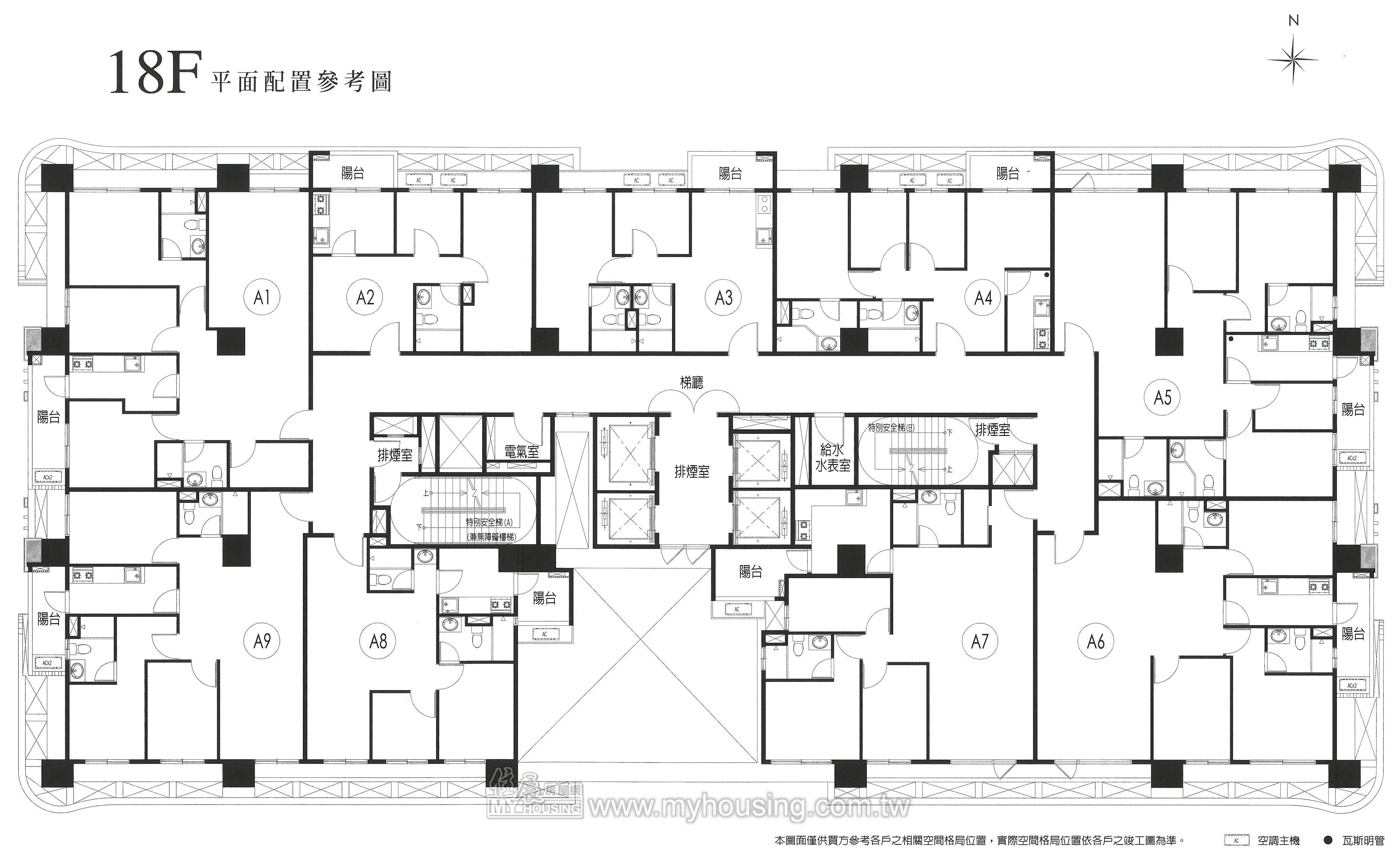
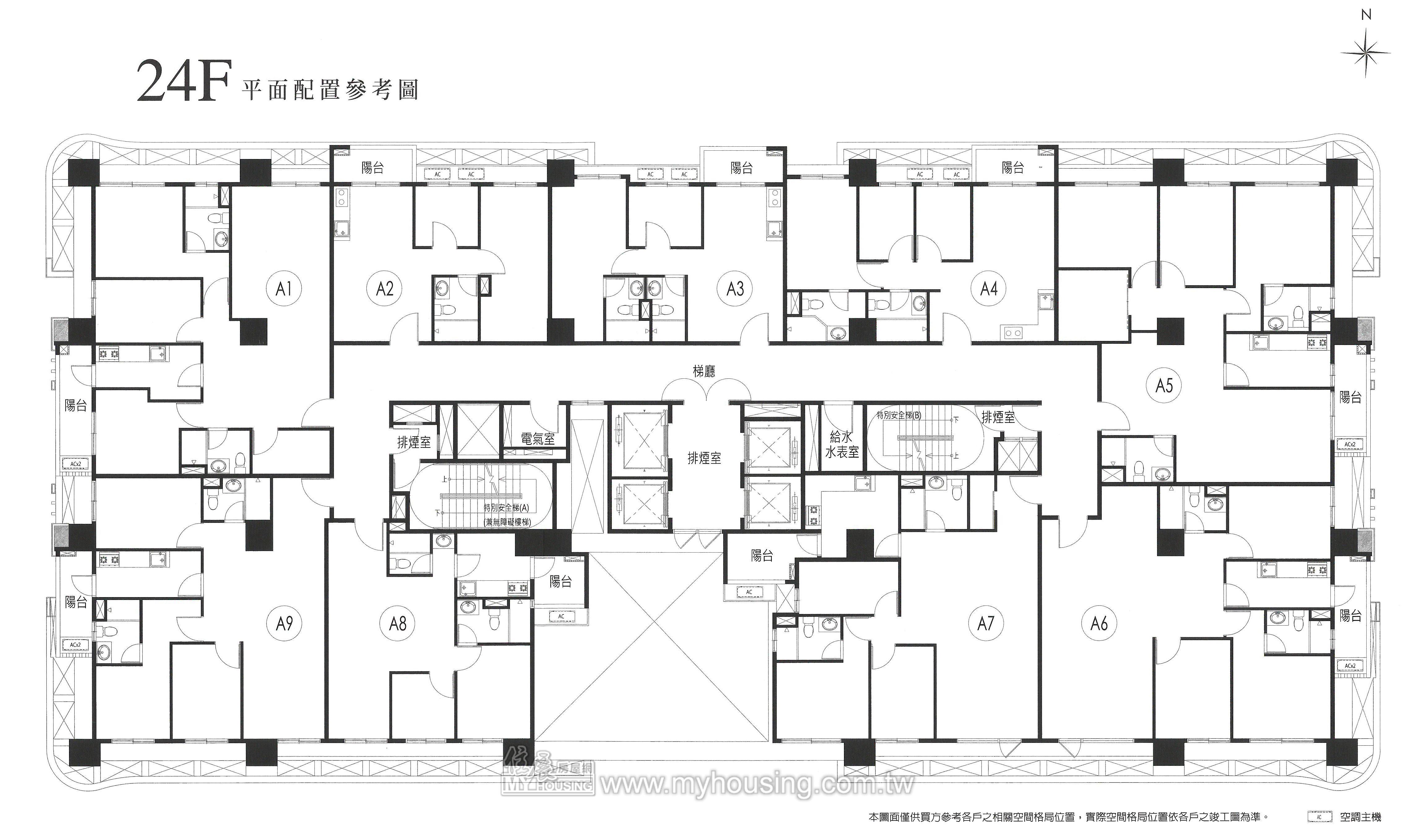
規劃戶數

226 戶

基地面積

1038 坪

建蔽率

49.98%

個案短評

▲備註:此資料由住展企研室人員親至現場訪查,與雜誌同步更新。

基地1038坪,鄰近捷運國父紀念館站、大巨蛋。主推45、51坪,公設比33.98%。

訴求特色

休閒公設: 有休閒設施

週邊環境: 社區公園 / 熱鬧商圈 / 位居巷弄

建案優勢: 強調建材品質 / 特殊建築外觀 / 股票上市櫃公司

建築結構: SRC

電子地圖

免責聲明

為完整呈現第一手房地產資訊,住展雜誌市場資訊由市調人員定期走訪房屋銷售現場,及編輯記者採訪核對,確保消息來源明確,然市場隨時變動,圖文內容僅供參考,不屬於投資建議,實際情況以建案銷售現場為準。註:住展估價模型說明請見此

您可能會想看......

本區熱門建案

預約看屋

關閉預約看屋
Powered by
建案資料異動

關閉表格

收藏建案

尚未收藏建案