善藝

開價

48~52萬/坪

住展估價

42萬/坪[註]本刊研判行情價

實價登錄

38.1萬/坪[註]近一年平均單價

總價

尚無資料

建案型態

預售屋 / 大樓

投資興建

企劃銷售

建案坪數

25~37坪

銷售狀態

已結案

關注人數

 17511人關注
此物件已結案,頁面資料為結案前之資料,僅供參考

詳細資料

基地位置

至善路

總價

車位

平面/140~160萬

進駐日期

2023-03-29

銀行貸款

80%

層數

地上15層/地下3層

公設比

33.5%

實價登錄資訊

▲以下價格為每坪單價/萬元;單價已扣車位。
更新日期與內政部每月1日11日21日同步;成交價格受交易日期、樓層及戶別影響,故平均單價僅供參考。

歷史最高價

50.2 萬元/坪

交易年月

2024/08/14

歷史最低價

50.2 萬元/坪

交易年月

2024/08/08

交易筆數

92筆

歷史平均價

36.0 萬元/坪

議價率

23.0%

建案規劃

建築設計

拓璞聯合

企劃銷售

使用執照

未提供

預定交屋日

2025-06

建造執照

111-0192

規劃戶數

153 戶

基地面積

985.9 坪

建蔽率

39.8%

個案短評

▲備註:此資料由住展企研室人員親至現場訪查,與雜誌同步更新。

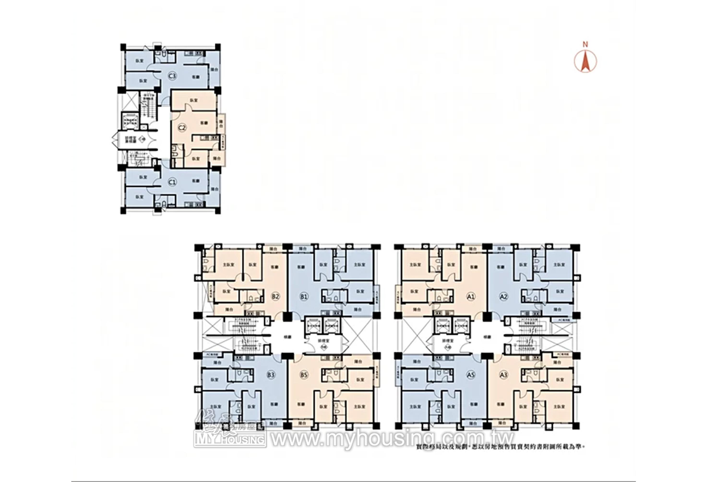
基地985.9坪,位至善重劃區,為2~3房,強調訂簽60萬起、工程零付款。

訴求特色

休閒公設: 有休閒設施

週邊環境: 面臨主幹道或次要幹道

建案優勢: 交通動線佳 / 生活機能成型 / 文教學區

銷售特色: 高銀貸(80%以上)

電子地圖

免責聲明

為完整呈現第一手房地產資訊,住展雜誌市場資訊由市調人員定期走訪房屋銷售現場,及編輯記者採訪核對,確保消息來源明確,然市場隨時變動,圖文內容僅供參考,不屬於投資建議,實際情況以建案銷售現場為準。註:住展估價模型說明請見此

您可能會想看......

本區暫無相似建案可供參考。

本區熱門建案

建案資料異動

關閉表格

收藏建案

尚未收藏建案