詳細資料
基地位置
豐德路106巷2號
總價
車位
平面/148~176萬
進駐日期
2023-03-17
銀行貸款
75%
層數
地上14層/地下3層
公設比
33.56%
實價登錄資訊
▲以下價格為每坪單價/萬元;單價已扣車位。更新日期與內政部每月1日/11日/21日同步;成交價格受交易日期、樓層及戶別影響,故平均單價僅供參考。
歷史最高價
35.3 萬元/坪
交易年月
2024/03/31
歷史最低價
35.3 萬元/坪
交易年月
2024/02/28
交易筆數
20筆
歷史平均價
33.8 萬元/坪
議價率
3.0%
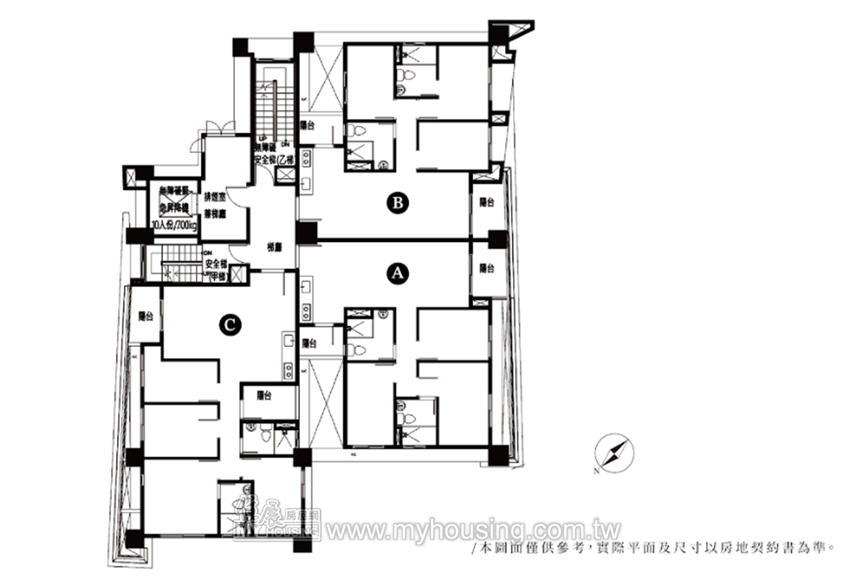
建案規劃
個案短評
▲備註:此資料由住展企研室人員親至現場訪查,與雜誌同步更新。
基地334.17坪,屬乙種用地,距八德國中約5分鐘車程,為3~4房格局,單層3併。
訴求特色
週邊環境: 位居巷弄
建案優勢: 生活機能成型
電子地圖
免責聲明
為完整呈現第一手房地產資訊,住展雜誌市場資訊由市調人員定期走訪房屋銷售現場,及編輯記者採訪核對,確保消息來源明確,然市場隨時變動,圖文內容僅供參考,不屬於投資建議,實際情況以建案銷售現場為準。註:住展估價模型說明請見此
























