岳泰豐鼎
開價
94~100萬/坪
低於本區平均行情2.00%
低於本區平均行情2.00%
住展估價
88萬/坪[註]本刊研判行情價
實價登錄
尚未提供
總價
尚無資料
建案型態
成屋 / 大樓
投資興建
企劃銷售
建案坪數
19~41坪
銷售狀態
銷售中
關注人數
73983人關注
詳細資料
基地位置
漢口街二段88號
總價
車位
平面/375萬
機械/200萬
機械/200萬
進駐日期
2025-09-06
銀行貸款
75%
層數
地上23層/地下5層
公設比
36~41%
實價登錄資訊
▲以下價格為每坪單價/萬元;單價已扣車位。更新日期與內政部每月1日/11日/21日同步;成交價格受交易日期、樓層及戶別影響,故平均單價僅供參考。
歷史最高價
79.5 萬元/坪
交易年月
2022/05/23
歷史最低價
65.3 萬元/坪
交易年月
2022/07/28
交易筆數
22筆
歷史平均價
73.7 萬元/坪
議價率
尚未提供
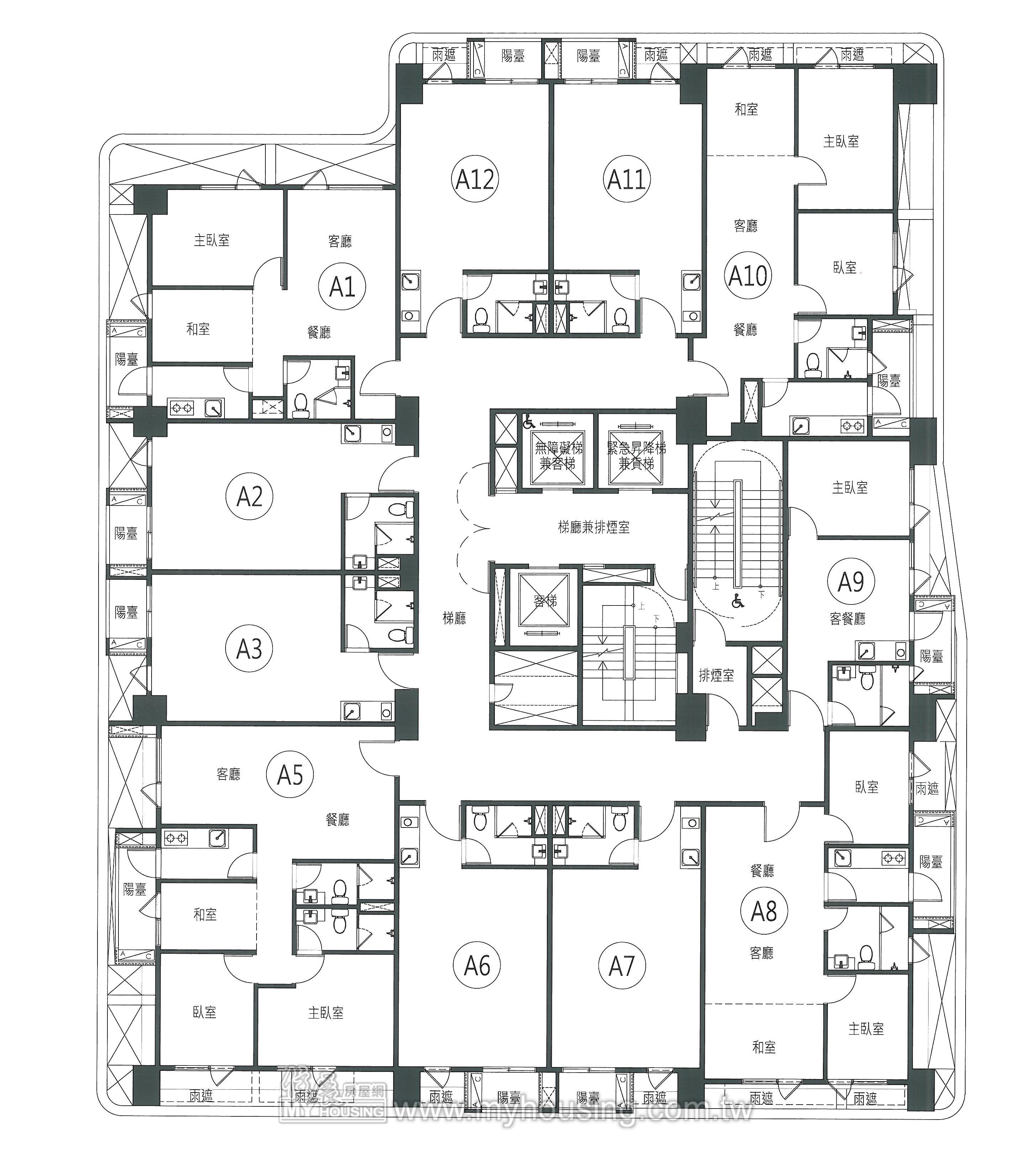
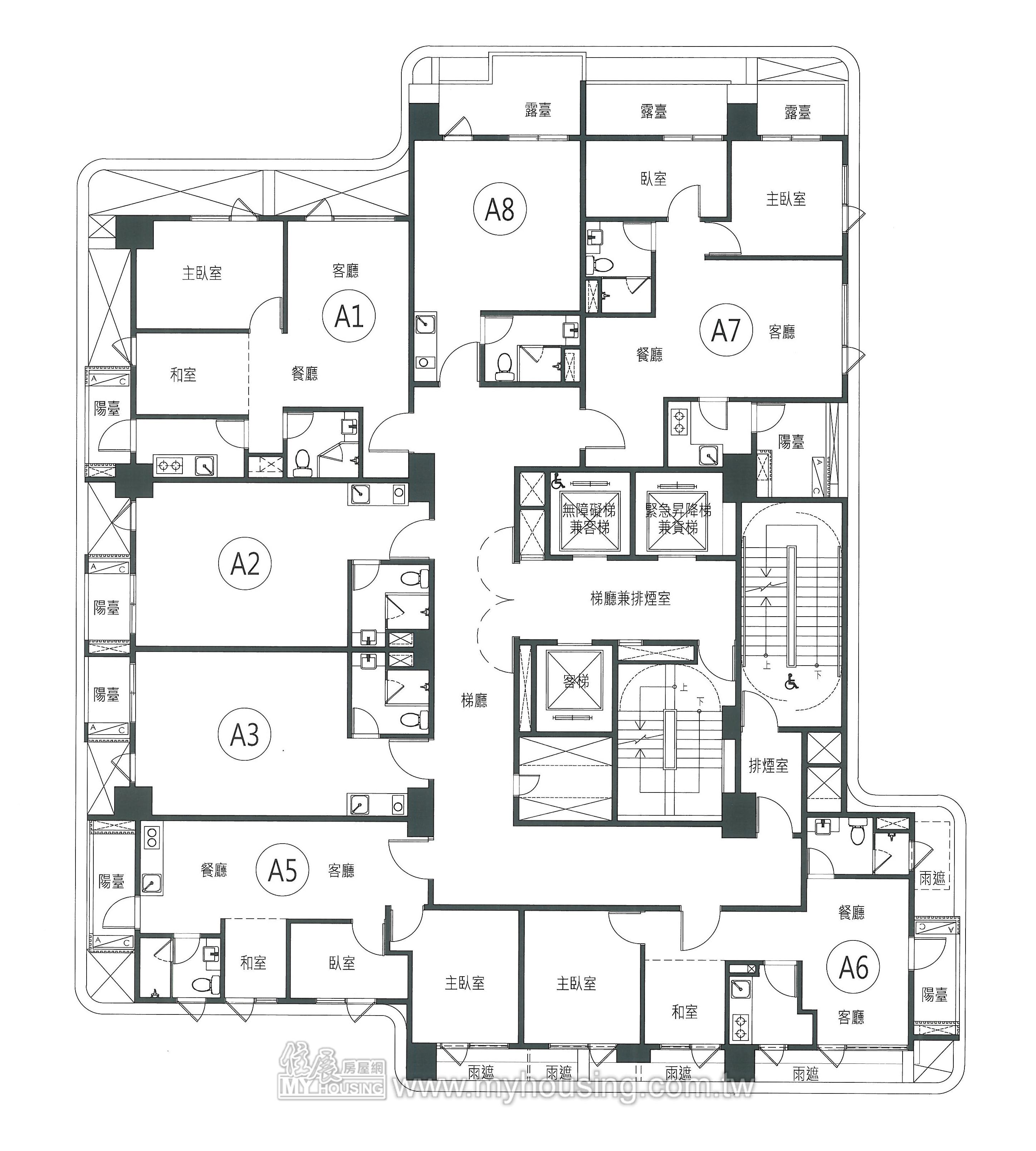
建案規劃
個案短評
▲備註:此資料由住展企研室人員親至現場訪查,與雜誌同步更新。
基地372坪,處角地,近捷運西門站,規劃187戶,可售為店面(1+2樓約46坪、102坪)。
訴求特色
休閒公設: 有休閒設施
週邊環境: 社區公園 / 面臨主幹道或次要幹道
建案優勢: 挑高3米6 / 交通動線佳 / 生活機能成型 / 文教學區
建築結構: SC
電子地圖
免責聲明
為完整呈現第一手房地產資訊,住展雜誌市場資訊由市調人員定期走訪房屋銷售現場,及編輯記者採訪核對,確保消息來源明確,然市場隨時變動,圖文內容僅供參考,不屬於投資建議,實際情況以建案銷售現場為準。註:住展估價模型說明請見此