大清城双

開價

37~41萬/坪
低於本區平均行情30.00%

住展估價

37萬/坪[註]本刊研判行情價

實價登錄

38.9萬/坪[註]近一年平均單價

總價

尚無資料

建案型態

成屋 / 大樓

投資興建

企劃銷售

建案坪數

38~41坪

銷售狀態

銷售中

關注人數

 25961人關注

詳細資料

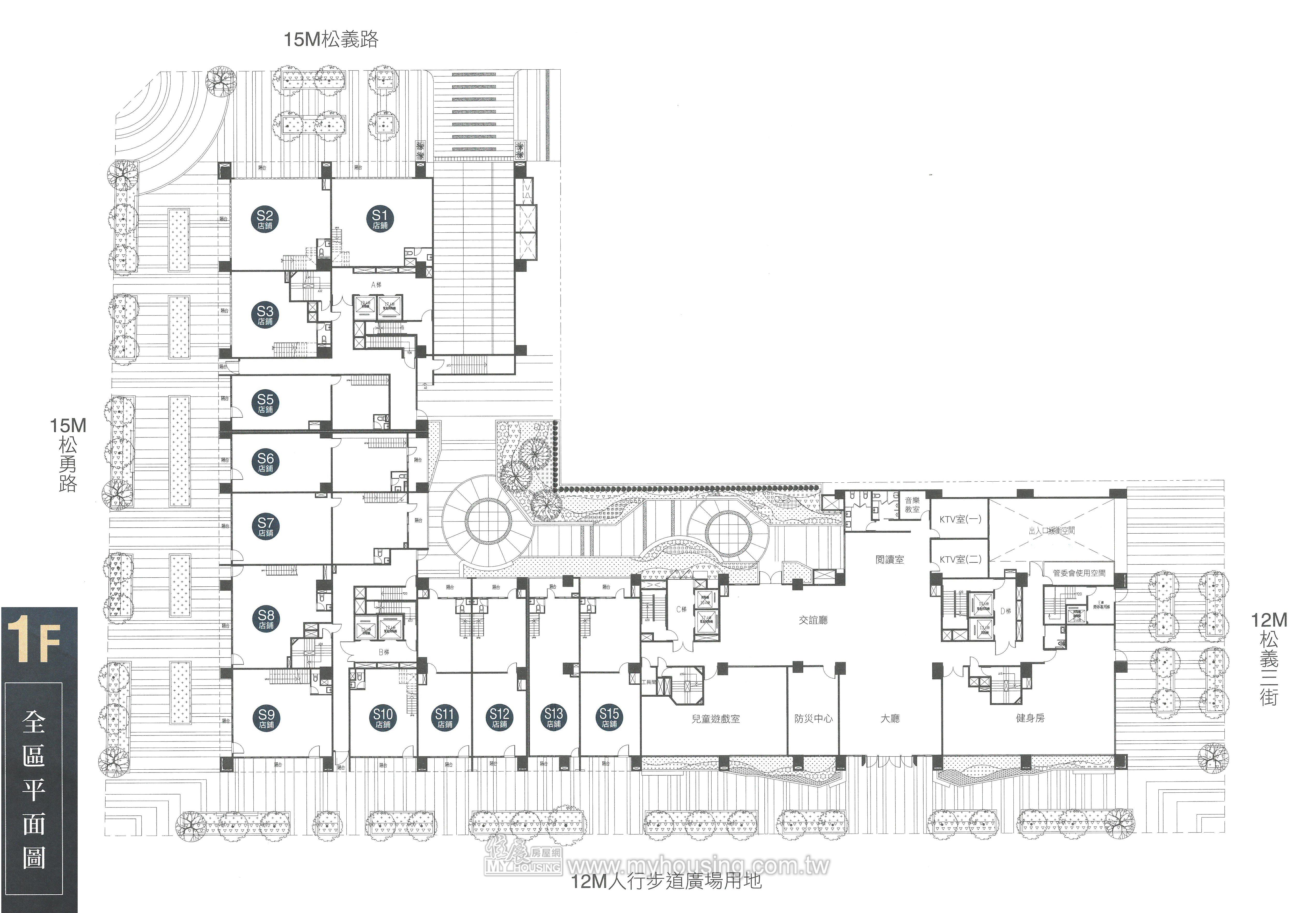
基地位置

松義路93號

總價

車位

平面/130~175萬/數量: 405
機械/110萬/數量: 31

進駐日期

2025-07-16

銀行貸款

70%

層數

地上18層/地下4層

公設比

33%

實價登錄資訊

▲以下價格為每坪單價/萬元;單價已扣車位。
更新日期與內政部每月1日11日21日同步;成交價格受交易日期、樓層及戶別影響,故平均單價僅供參考。

歷史最高價

45.4 萬元/坪

交易年月

2025/04/29

歷史最低價

28.9 萬元/坪

交易年月

2023/12/03

交易筆數

213筆

歷史平均價

34.6 萬元/坪

議價率

0.0%

建案規劃

建築設計

徐瑞燦

投資興建

企劃銷售

使用執照

114-0475

預定交屋日

2025-12

建造執照

103-0023

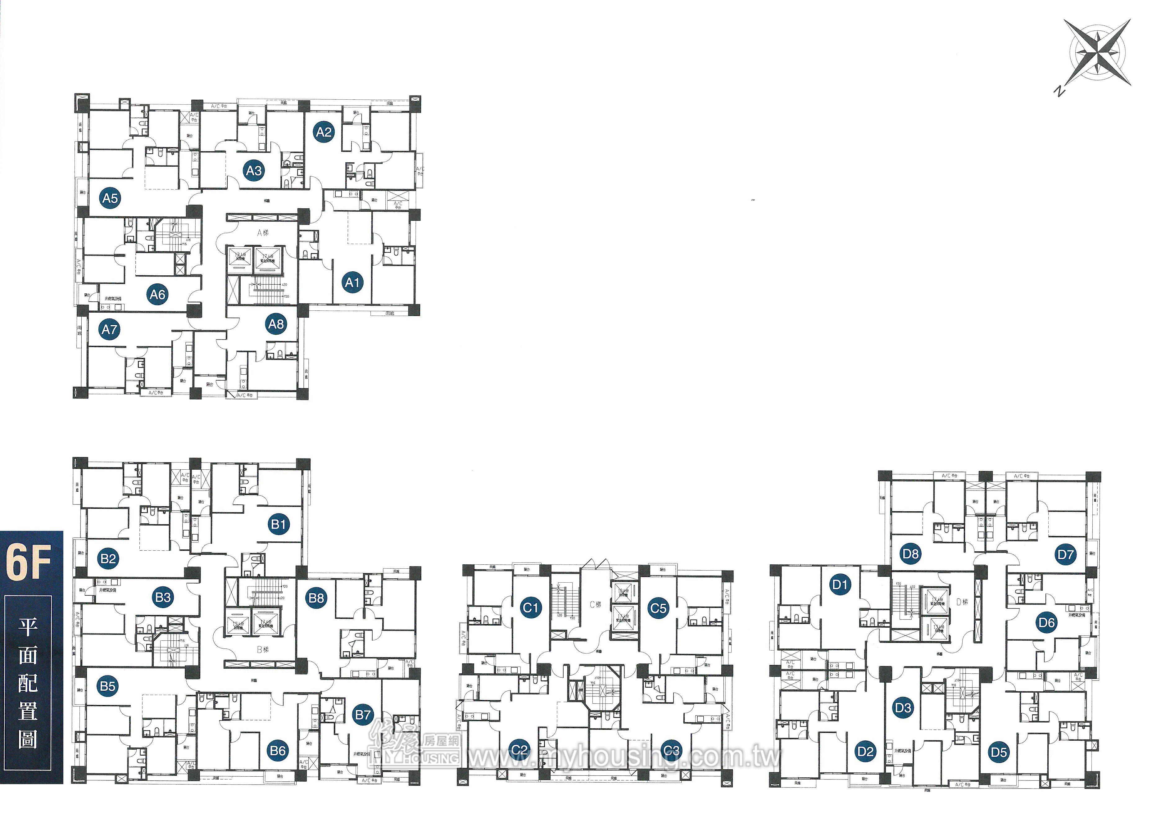
規劃戶數

432 戶

基地面積

1621.7 坪

建蔽率

50.63%

個案短評

▲備註:此資料由住展企研室人員親至現場訪查,與雜誌同步更新。

基地1621.7坪,位過嶺重劃區,規劃432戶,為2~4房,採AlfaSafe耐震工法。

訴求特色

休閒公設: 健身房 / 挑高門廳 / 兒童遊戲區 / 廚藝教室 / 閱覽室 / KTV / 有休閒設施

週邊環境: 熱鬧商圈 / 位居角地 / 面臨主幹道或次要幹道

建案優勢: 交通動線佳 / 生活機能成型

銷售特色: 一般付款條件

電子地圖

免責聲明

為完整呈現第一手房地產資訊,住展雜誌市場資訊由市調人員定期走訪房屋銷售現場,及編輯記者採訪核對,確保消息來源明確,然市場隨時變動,圖文內容僅供參考,不屬於投資建議,實際情況以建案銷售現場為準。註:住展估價模型說明請見此

您可能會想看......

本區熱門建案

預約看屋

關閉預約看屋
Powered by
建案資料異動

關閉表格

收藏建案

尚未收藏建案