STAR ONE
開價
57~75萬/坪
低於本區平均行情5.00%
低於本區平均行情5.00%
住展估價
66萬/坪[註]本刊研判行情價
實價登錄
尚未提供
總價
尚無資料
建案型態
成屋 / 大樓
投資興建
企劃銷售
建案坪數
28~66坪
銷售狀態
銷售中
關注人數
35243人關注
詳細資料
基地位置
中央路728號
總價
車位
平面/230~260萬
進駐日期
2023-06-01
銀行貸款
80%
層數
地上27層/地下4層
公設比
35.6%
實價登錄資訊
▲以下價格為每坪單價/萬元;單價已扣車位。更新日期與內政部每月1日/11日/21日同步;成交價格受交易日期、樓層及戶別影響,故平均單價僅供參考。
歷史最高價
尚未提供
交易年月
尚未提供
歷史最低價
尚未提供
交易年月
尚未提供
交易筆數
尚未提供
歷史平均價
尚未提供
議價率
尚未提供
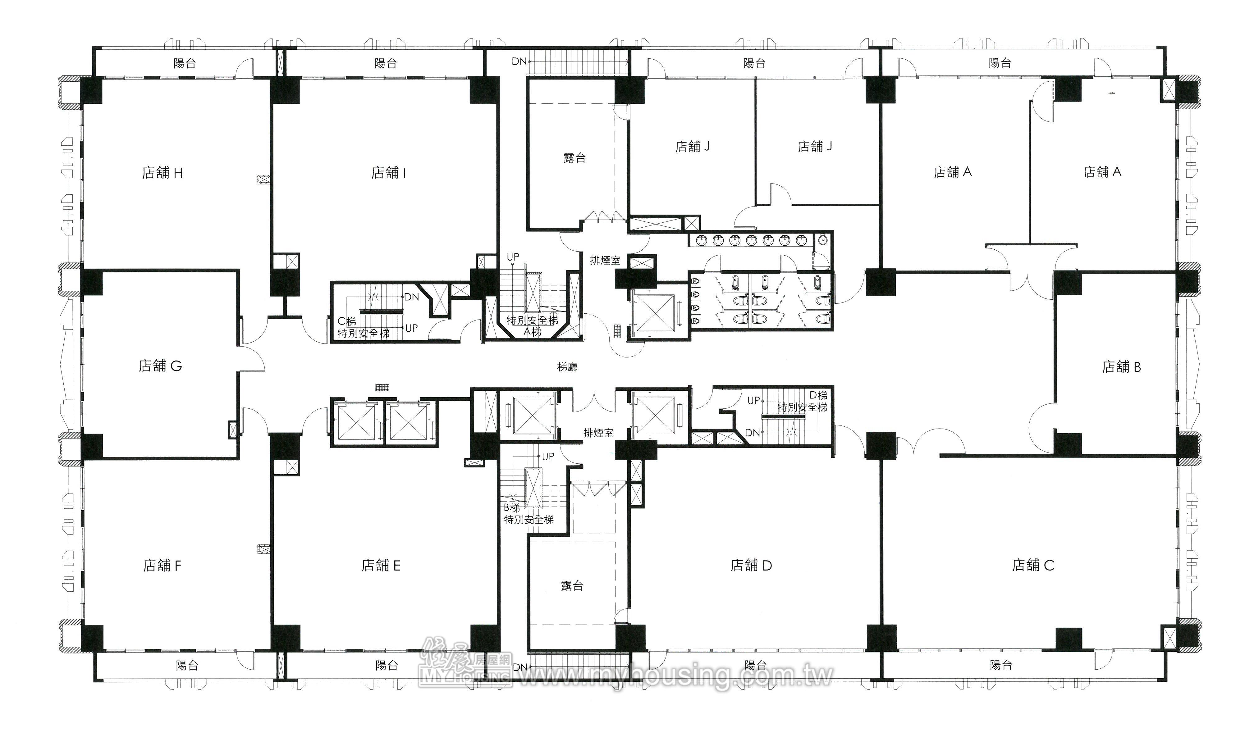
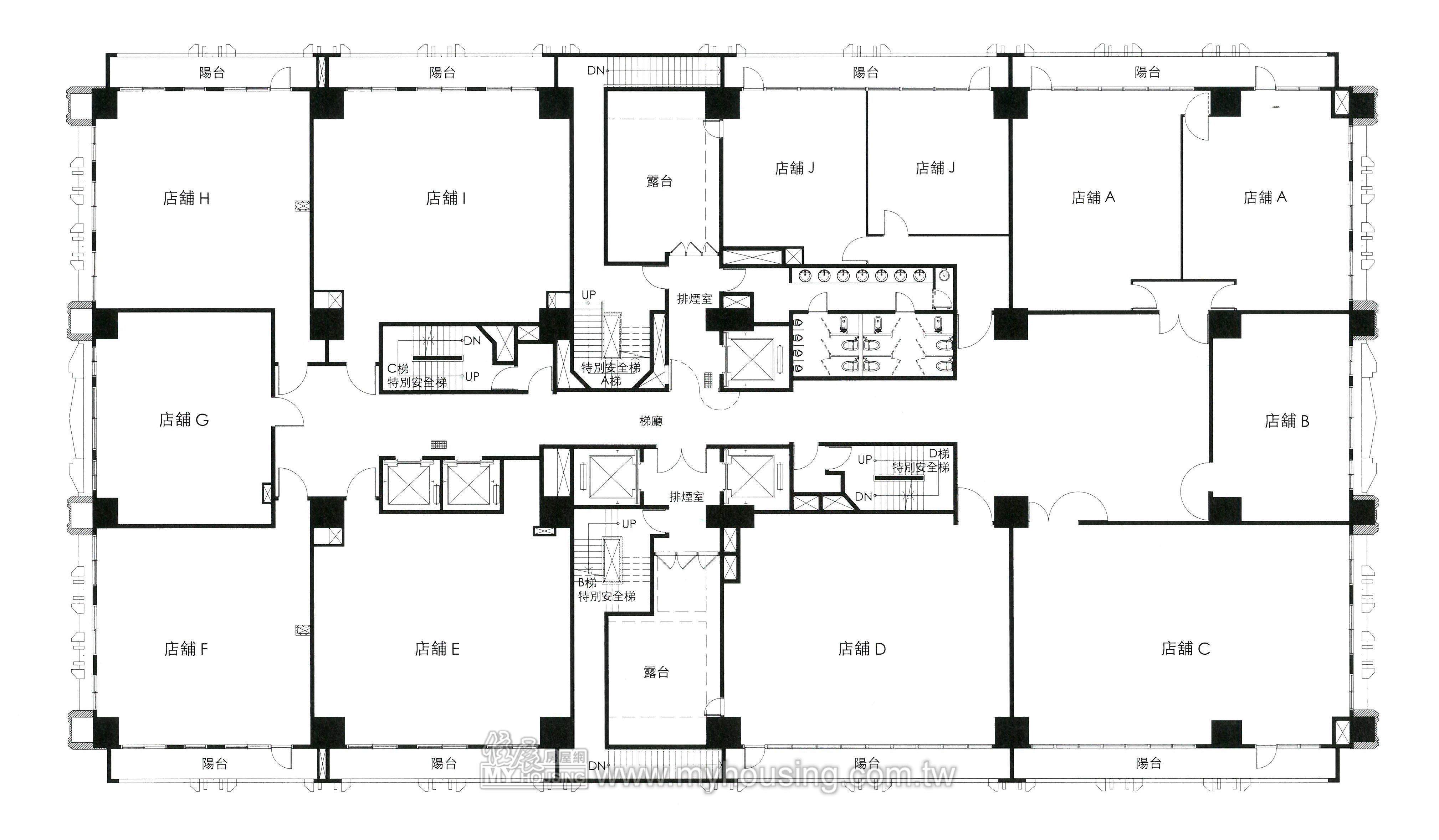
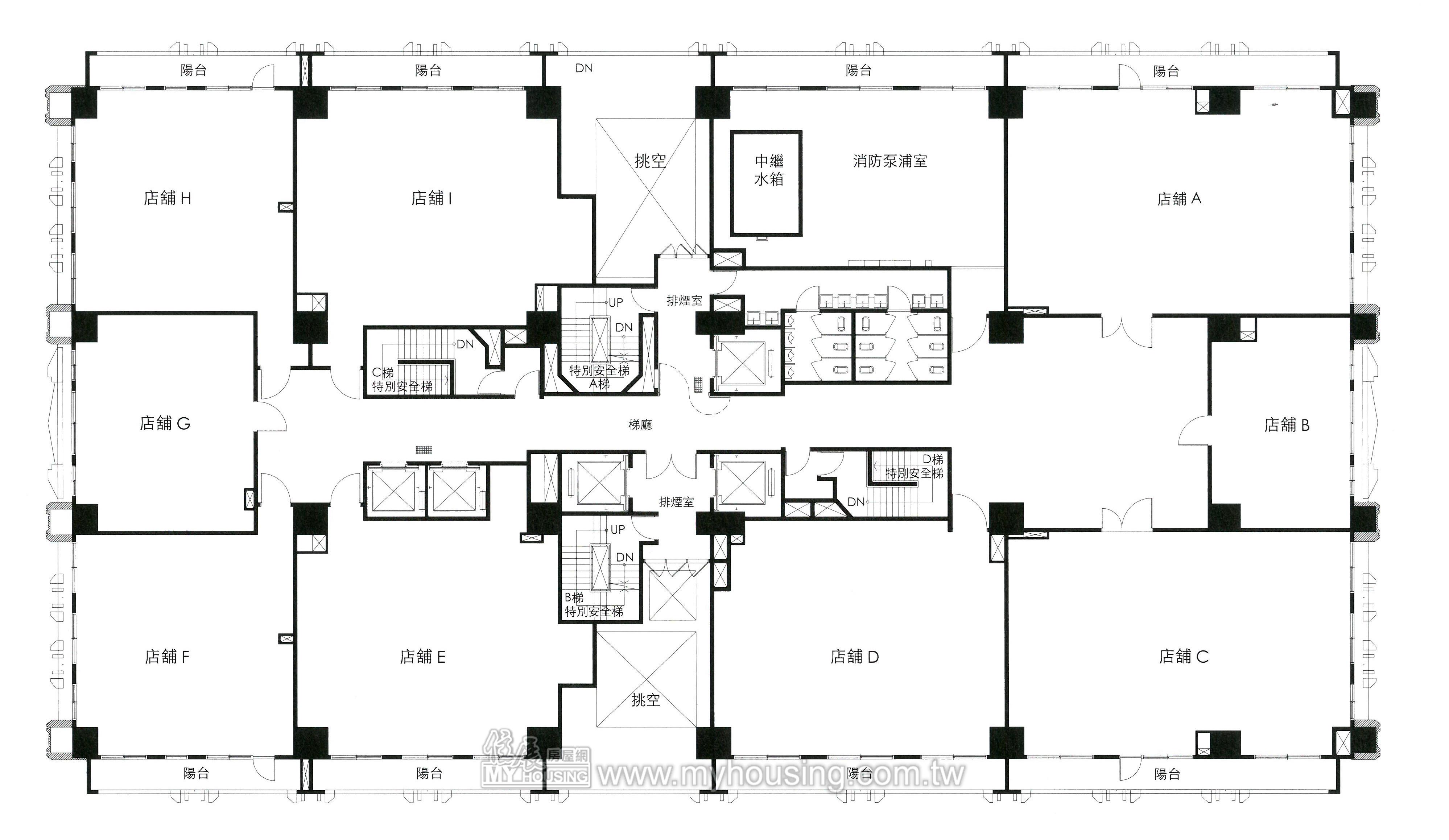
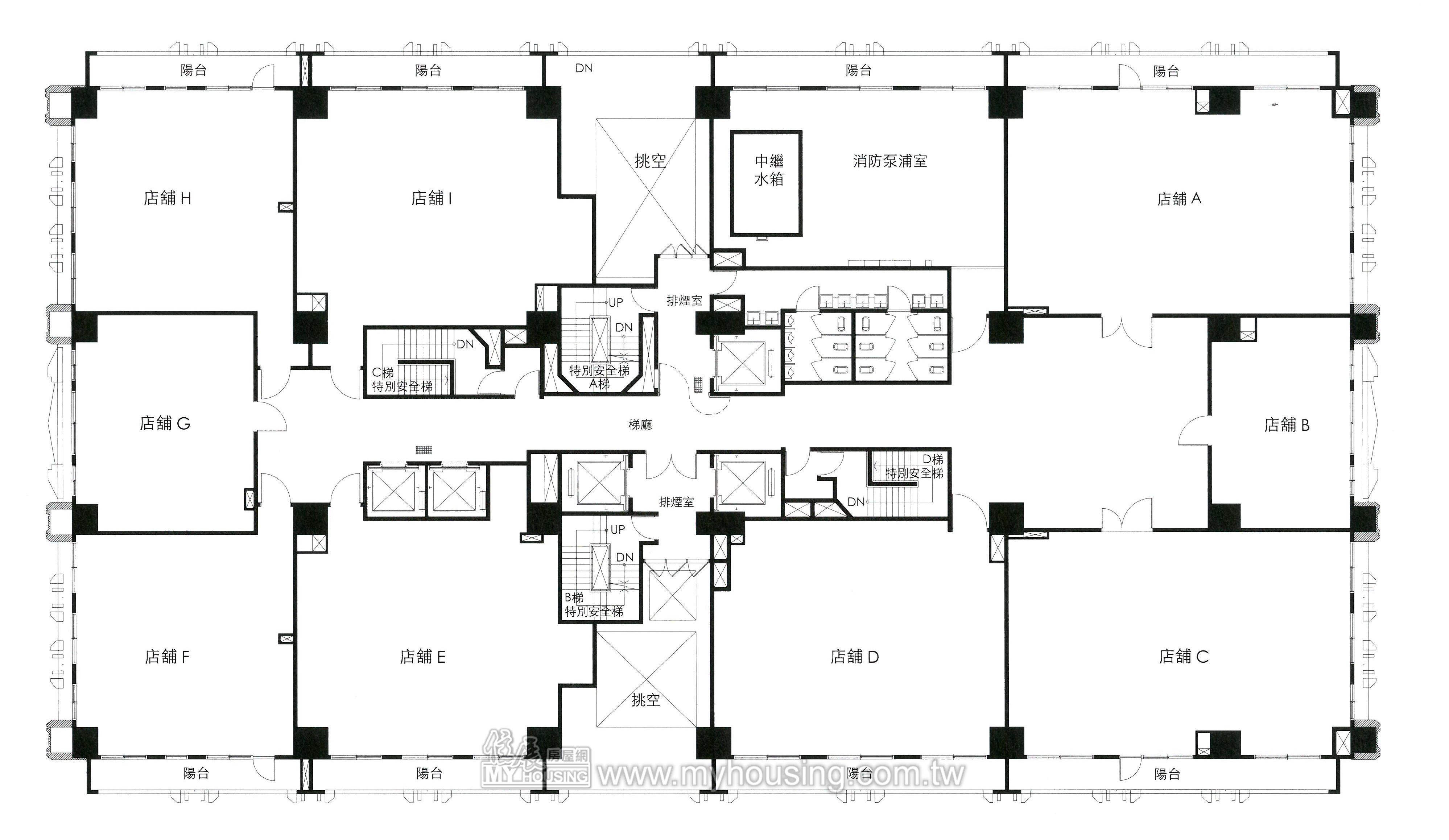
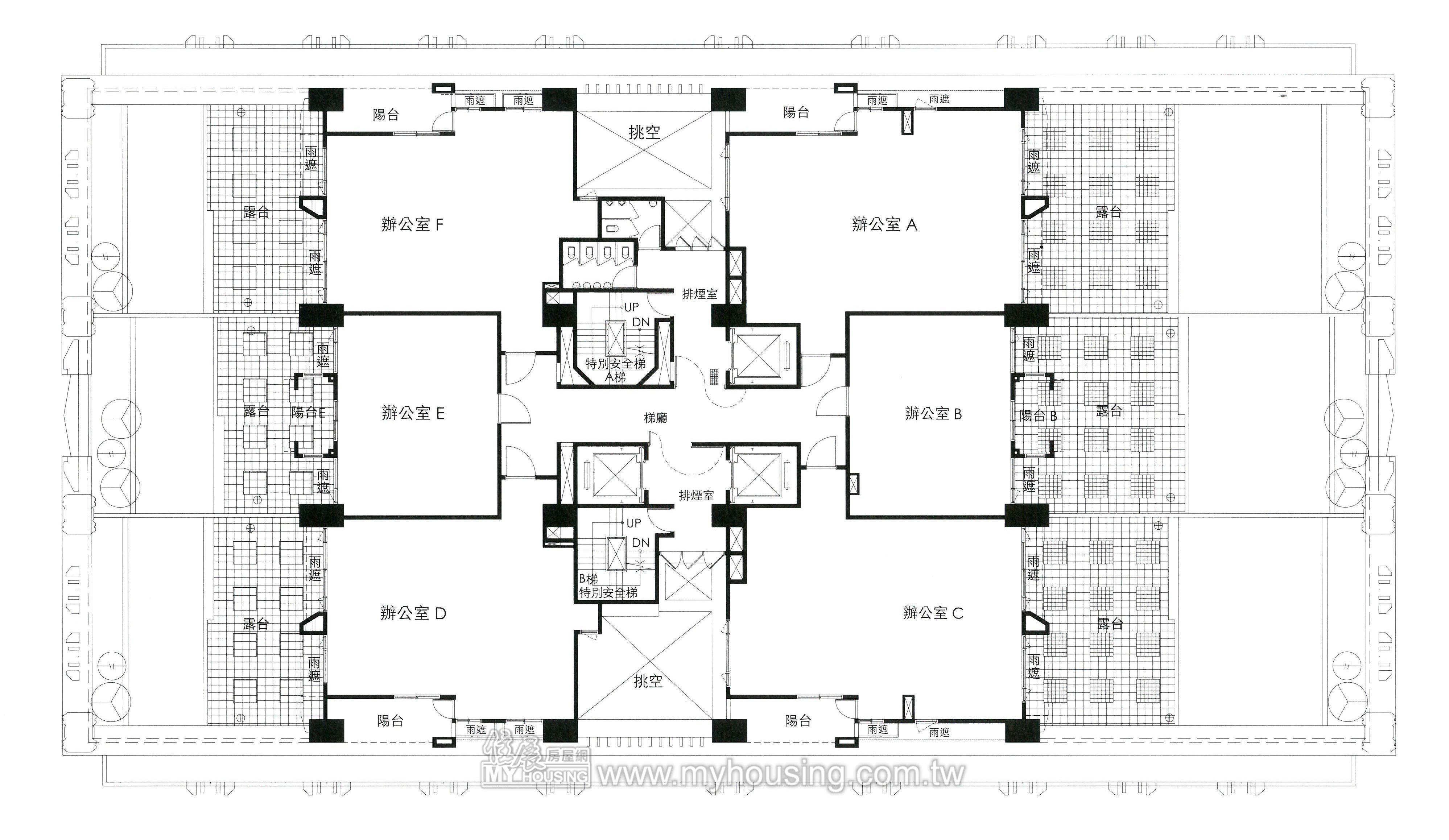
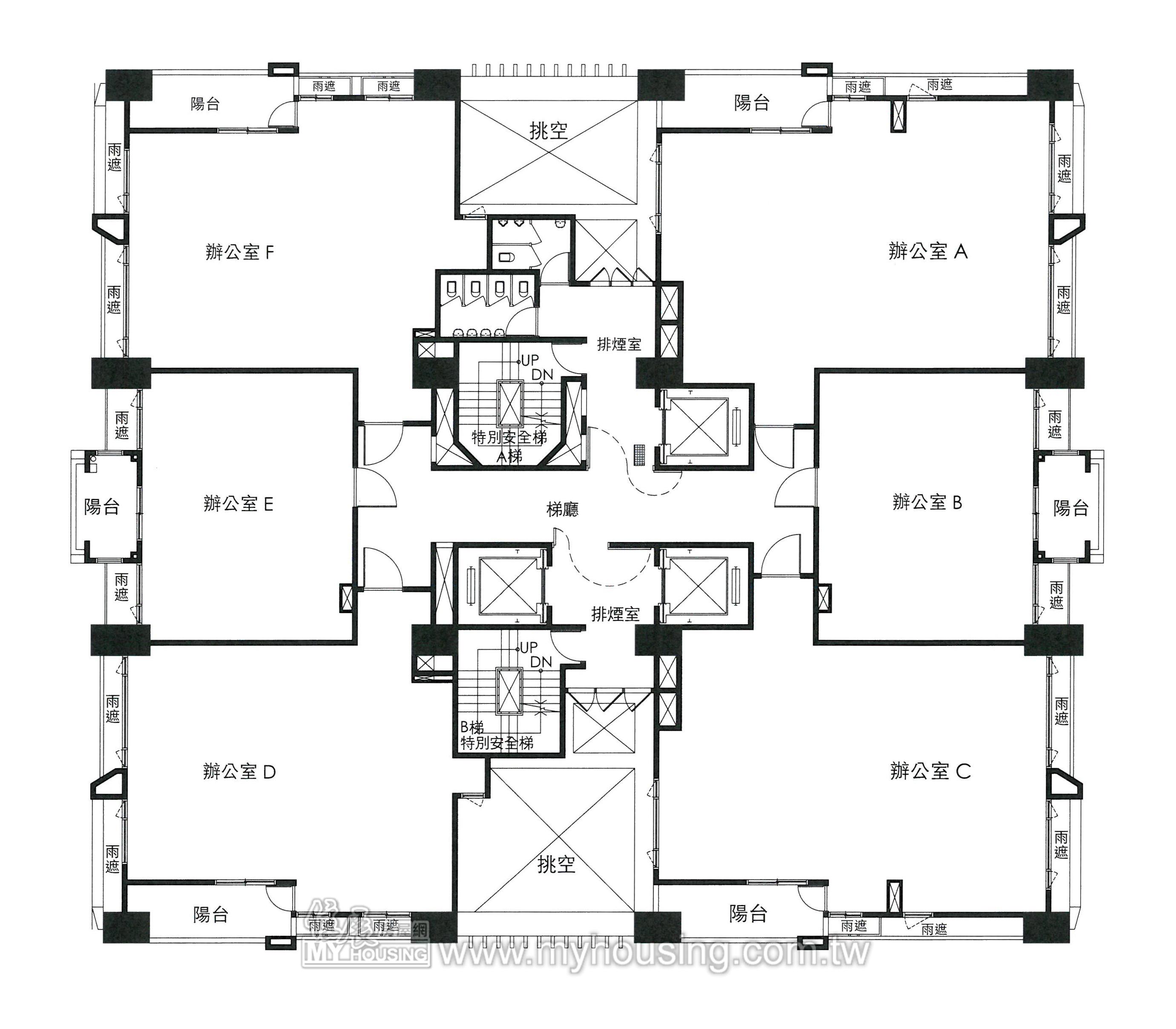
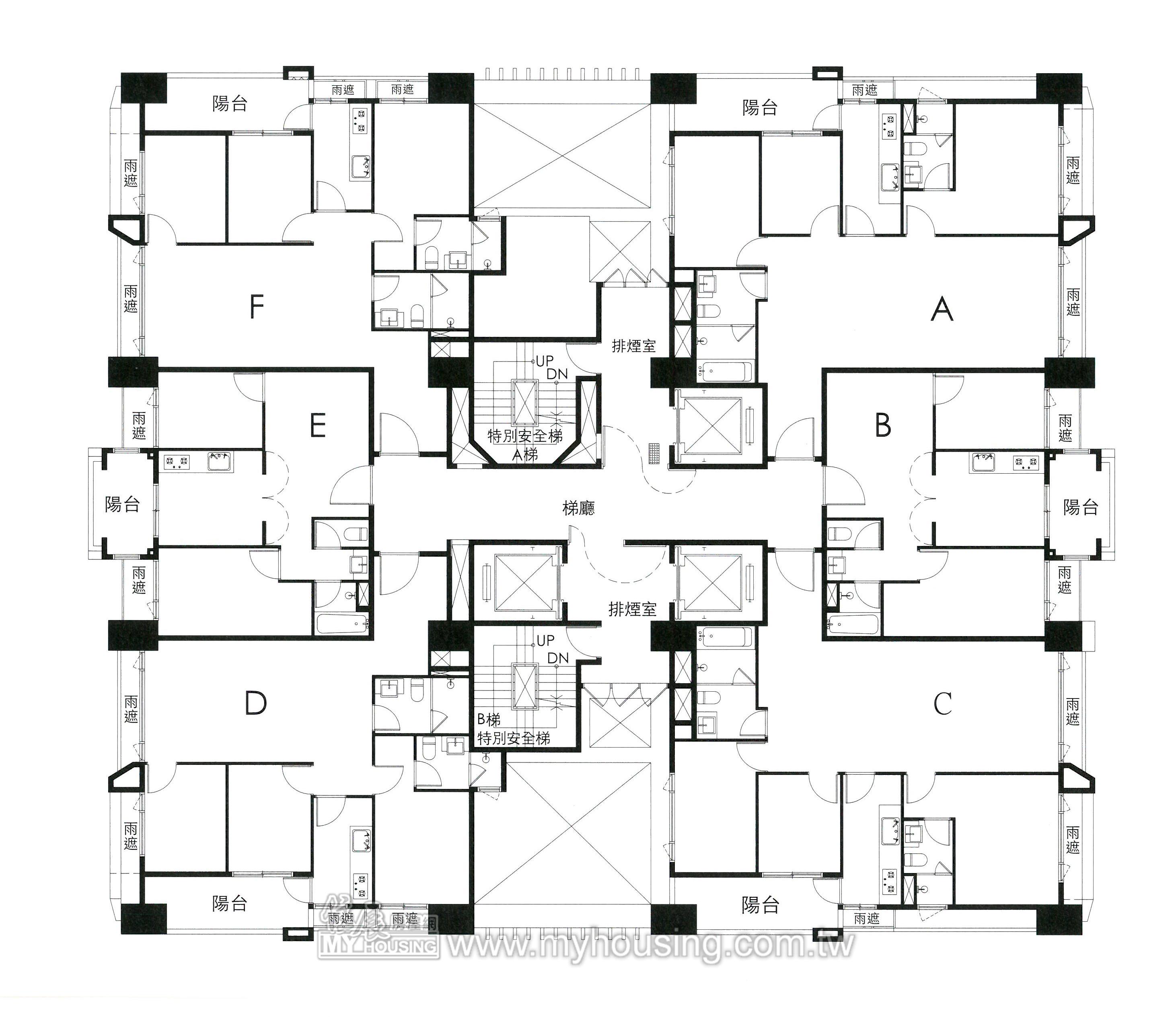
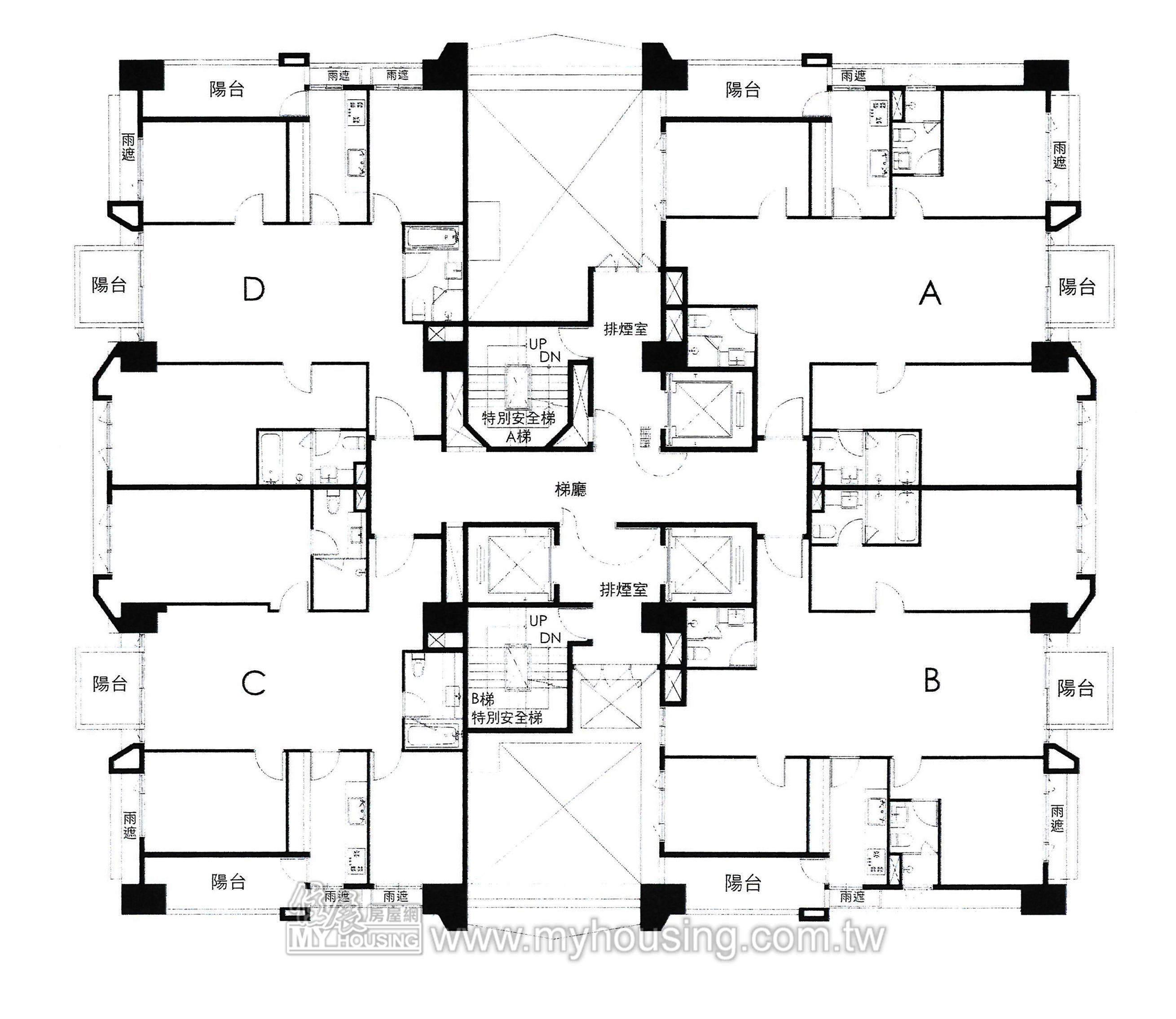
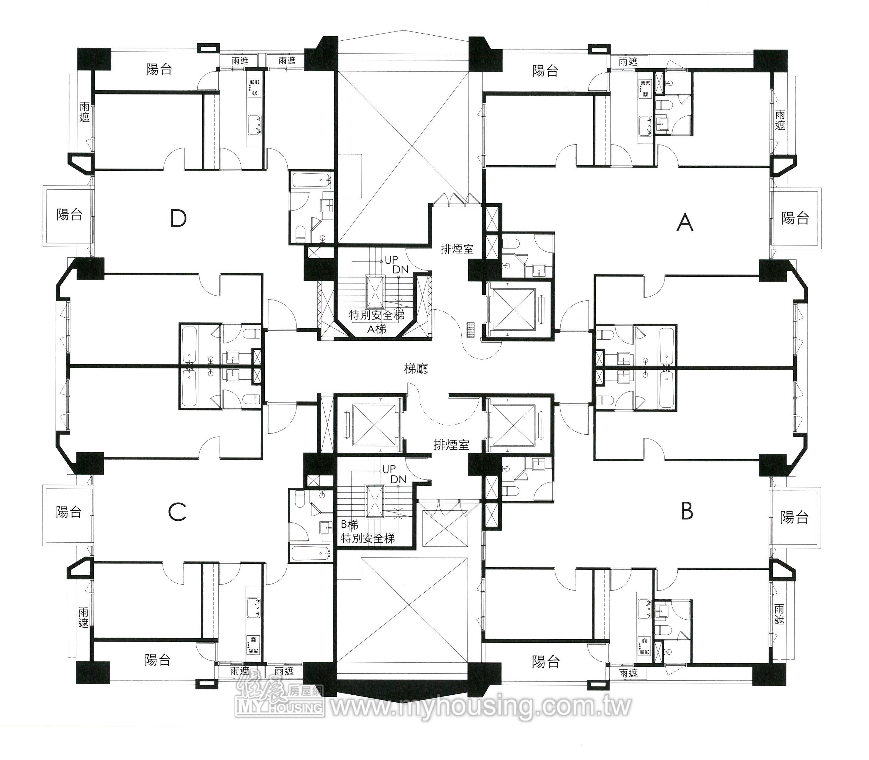
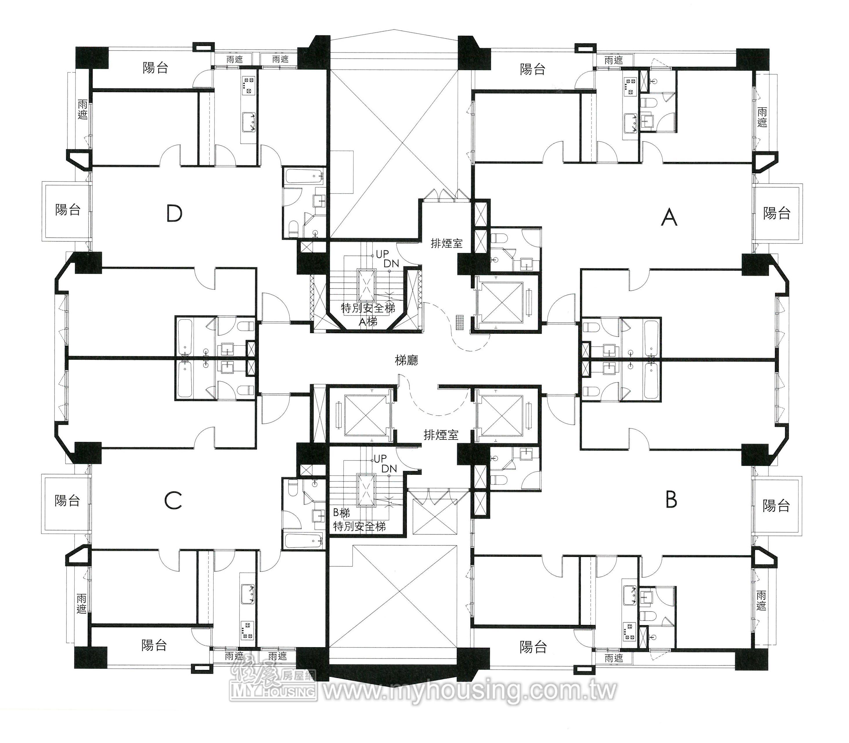
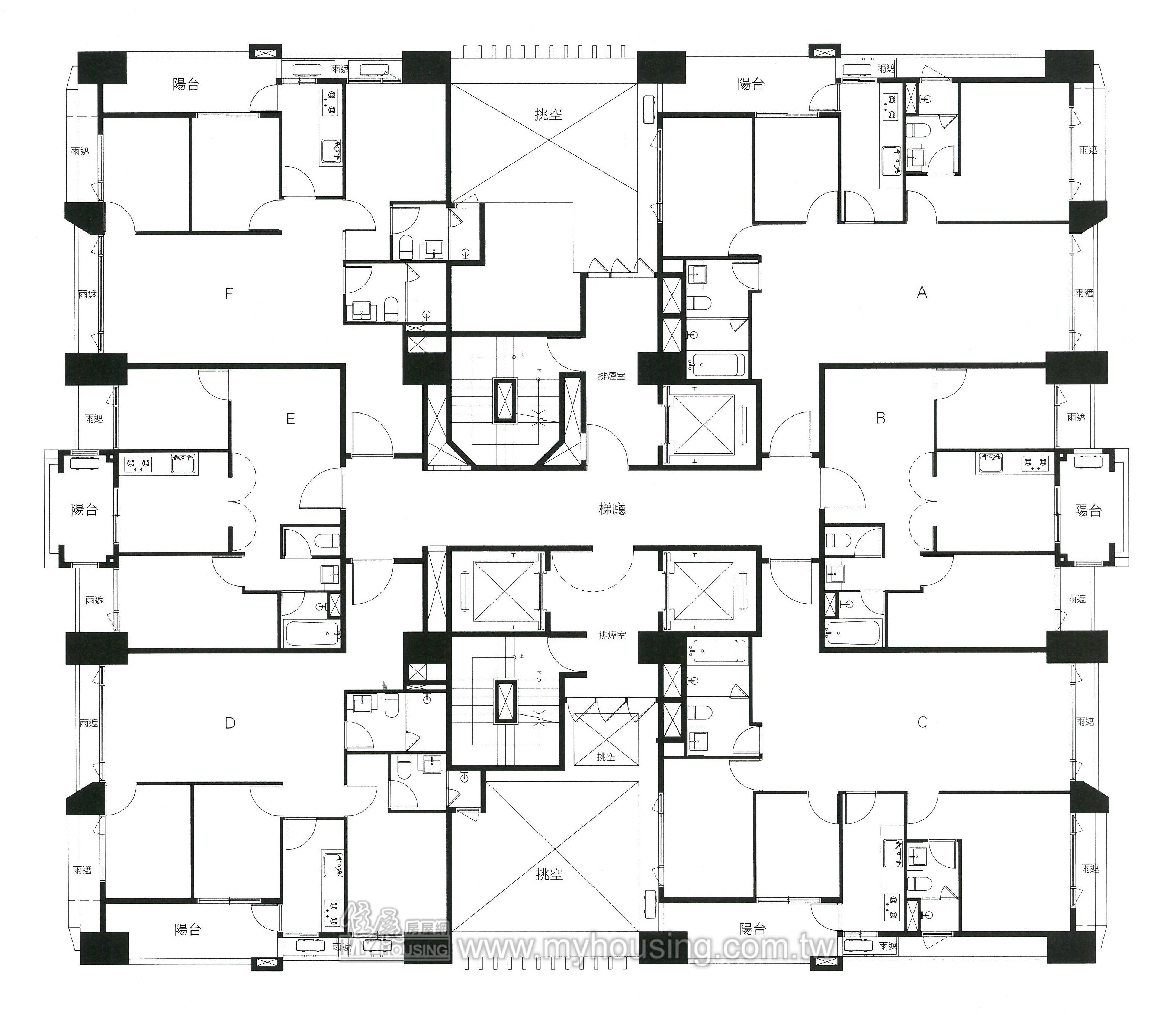
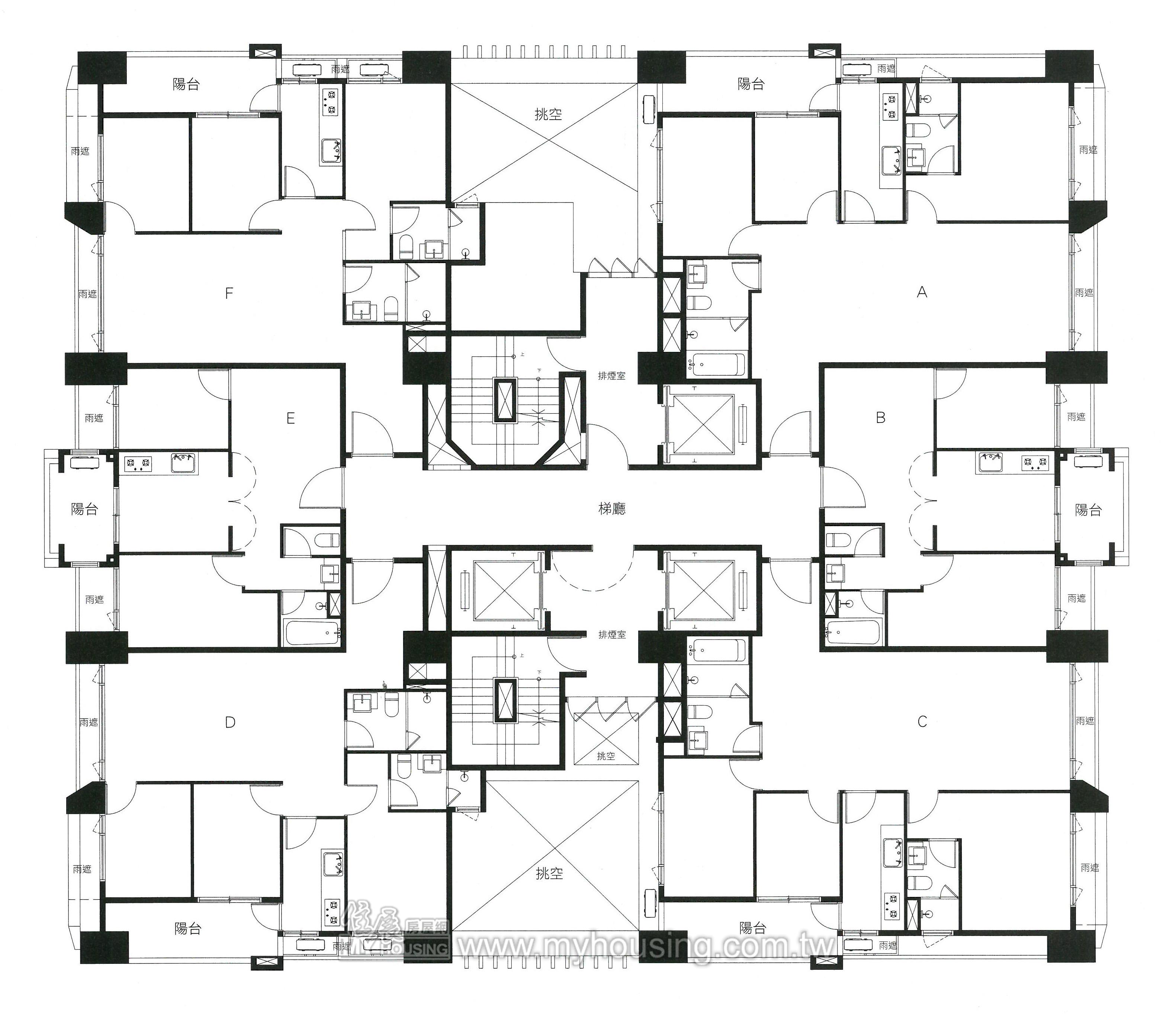
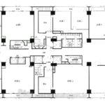
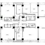
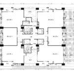
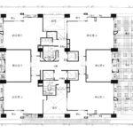
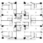
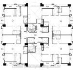
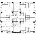
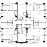
建案規劃
個案短評
▲備註:此資料由住展企研室人員親至現場訪查,與雜誌同步更新。
基地879坪,位副都心重劃區,臨幹道,近機捷A4站,可售為43坪一般事務所。
訴求特色
休閒公設: 有休閒設施
週邊環境: 捷運站 / 行政機關 / 面臨主幹道或次要幹道
建案優勢: 挑高3米6 / 交通動線佳 / 系列推案
銷售特色: 高銀貸(80%以上)
建築結構: SRC
電子地圖
免責聲明
為完整呈現第一手房地產資訊,住展雜誌市場資訊由市調人員定期走訪房屋銷售現場,及編輯記者採訪核對,確保消息來源明確,然市場隨時變動,圖文內容僅供參考,不屬於投資建議,實際情況以建案銷售現場為準。註:住展估價模型說明請見此































































