佳瑞向上

開價

37~42萬/坪
低於本區平均行情13.00%

住展估價

36萬/坪[註]本刊研判行情價

實價登錄

37.0萬/坪[註]近一年平均單價

總價

尚無資料

建案型態

預售屋 / 大樓

投資興建

企劃銷售

建案坪數

26~39坪

銷售狀態

銷售中

關注人數

 22009人關注

詳細資料

基地位置

義山路一段401巷

總價

車位

平面/150~190萬/數量: 166

進駐日期

2023-09-18

銀行貸款

80%

層數

地上15層/地下4層

公設比

33.5%

實價登錄資訊

▲以下價格為每坪單價/萬元;單價已扣車位。
更新日期與內政部每月1日11日21日同步;成交價格受交易日期、樓層及戶別影響,故平均單價僅供參考。

歷史最高價

37.4 萬元/坪

交易年月

2025/03/02

歷史最低價

30.5 萬元/坪

交易年月

2024/07/08

交易筆數

114筆

歷史平均價

33.3 萬元/坪

議價率

6.0%

建案規劃

建築設計

吳文全

企劃銷售

使用執照

未提供

預定交屋日

2025-09

建造執照

111-0089

規劃戶數

166 戶

基地面積

786.45 坪

建蔽率

34.99%

個案短評

▲備註:此資料由住展企研室人員親至現場訪查,與雜誌同步更新。

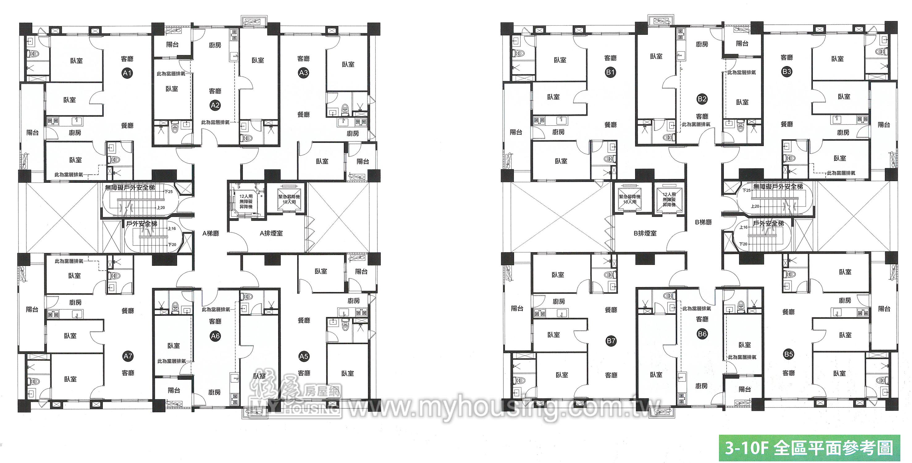
基地786.4坪,位淡海新市鎮,距輕軌濱海義山站約250公尺,主推37坪房型、三面採光。

訴求特色

週邊環境: 社區公園 / 捷運站 / 位居巷弄

建案優勢: 交通動線佳 / 生活機能成型

電子地圖

免責聲明

為完整呈現第一手房地產資訊,住展雜誌市場資訊由市調人員定期走訪房屋銷售現場,及編輯記者採訪核對,確保消息來源明確,然市場隨時變動,圖文內容僅供參考,不屬於投資建議,實際情況以建案銷售現場為準。註:住展估價模型說明請見此

您可能會想看......

本區熱門建案

預約看屋

關閉預約看屋
Powered by
建案資料異動

關閉表格

收藏建案

尚未收藏建案