建案搜尋 宜蘭縣 蘇澳鎮 The Taurus 金牛座

The Taurus 金牛座

開價

22萬/坪
高於本區平均行情4.55%

住展估價

21.5萬/坪[註]本刊研判行情價

實價登錄

22.1萬/坪[註]近一年平均單價

總價

355萬起

建案型態

預售屋 / 大樓

投資興建

企劃銷售

建案坪數

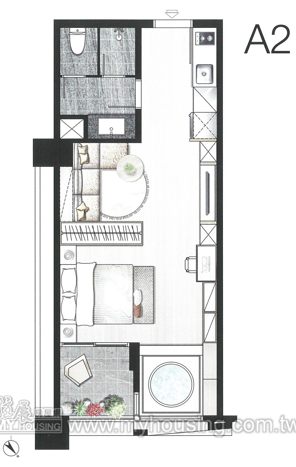
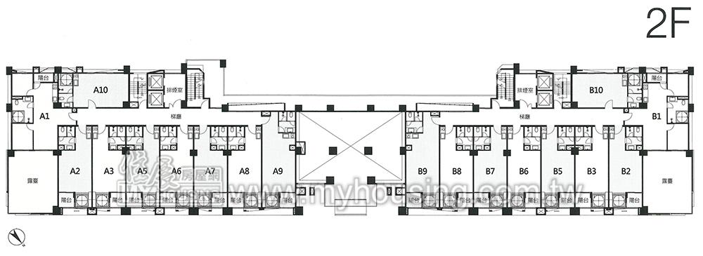
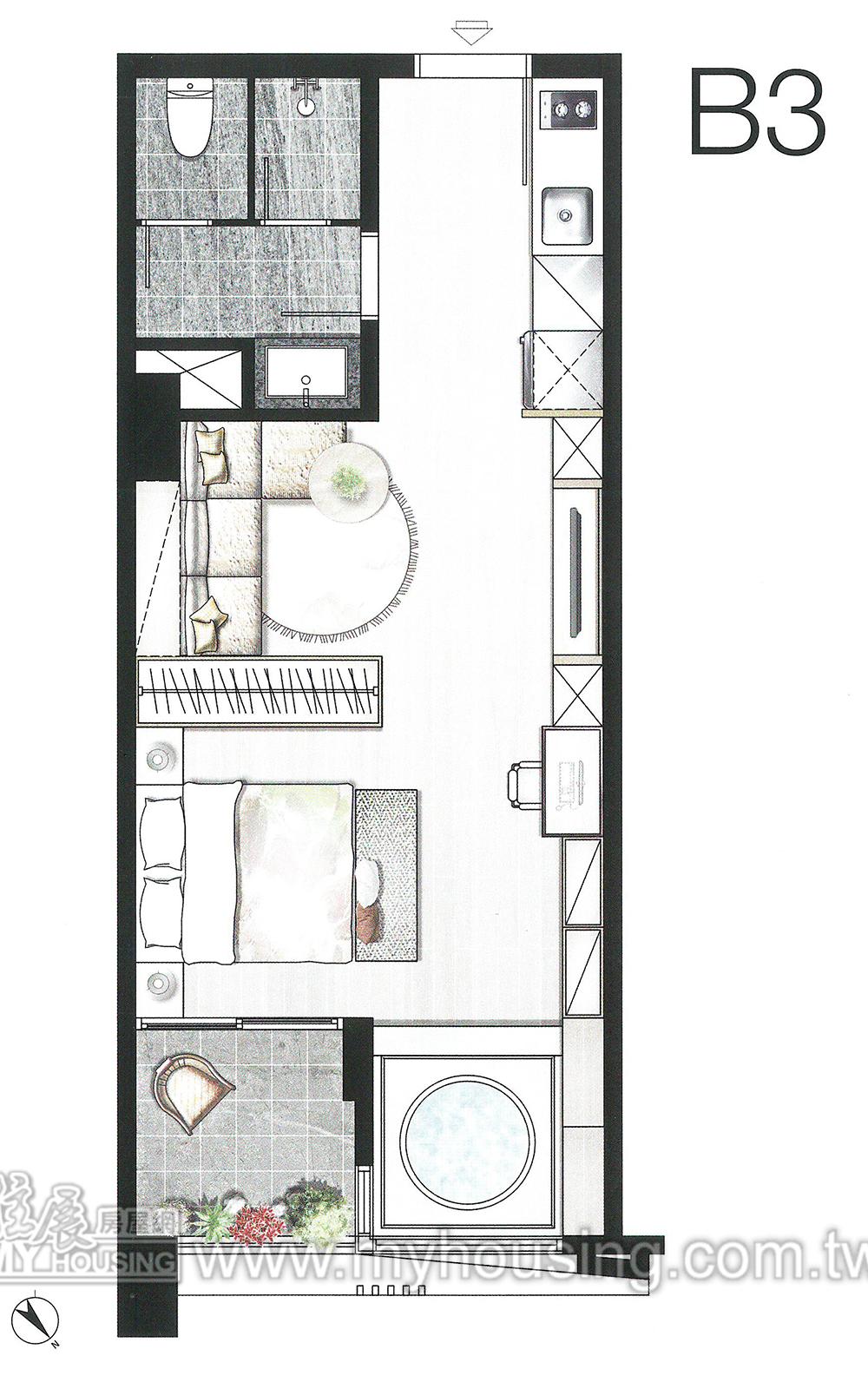
17~55坪

銷售狀態

銷售中

關注人數

 77051人關注

詳細資料

基地位置

蘇濱路二段、城東路口

總價

355萬起

車位

平面/價格未提供

進駐日期

2023-12-15

銀行貸款

65%

層數

地上14層/地下2層

公設比

34.5%

實價登錄資訊

▲以下價格為每坪單價/萬元;單價已扣車位。
更新日期與內政部每月1日11日21日同步;成交價格受交易日期、樓層及戶別影響,故平均單價僅供參考。

歷史最高價

23.9 萬元/坪

交易年月

2024/03/26

歷史最低價

19.2 萬元/坪

交易年月

2024/07/20

交易筆數

153筆

歷史平均價

21.6 萬元/坪

議價率

0.0%

建案規劃

建築設計

黃琬雯

投資興建

企劃銷售

使用執照

未提供

預定交屋日

2029-09

建造執照

112-0665

規劃戶數

252 戶

基地面積

1398.6 坪

建蔽率

29.56%

個案短評

▲備註:此資料由住展企研室人員親至現場訪查,與雜誌同步更新。

基地1398.6坪,位馬賽地區,距蘇澳新站不遠,為1~3房,具冷泉、溫泉,訴求防水5年保固。

訴求特色

休閒公設: 有休閒設施

週邊環境: 水岸景觀 / 面臨主幹道或次要幹道 / 鄰田地

電子地圖

免責聲明

為完整呈現第一手房地產資訊,住展雜誌市場資訊由市調人員定期走訪房屋銷售現場,及編輯記者採訪核對,確保消息來源明確,然市場隨時變動,圖文內容僅供參考,不屬於投資建議,實際情況以建案銷售現場為準。註:住展估價模型說明請見此

您可能會想看......

本區熱門建案

預約看屋

關閉預約看屋
Powered by
建案資料異動

關閉表格

收藏建案

尚未收藏建案