長虹天聚

開價

開價未定

住展估價

60萬/坪[註]本刊研判行情價

實價登錄

63.8萬/坪[註]近一年平均單價

總價

尚無資料

建案型態

預售屋 / 大樓

投資興建

企劃銷售

建案坪數

26~57坪

銷售狀態

銷售中

關注人數

 35412人關注

詳細資料

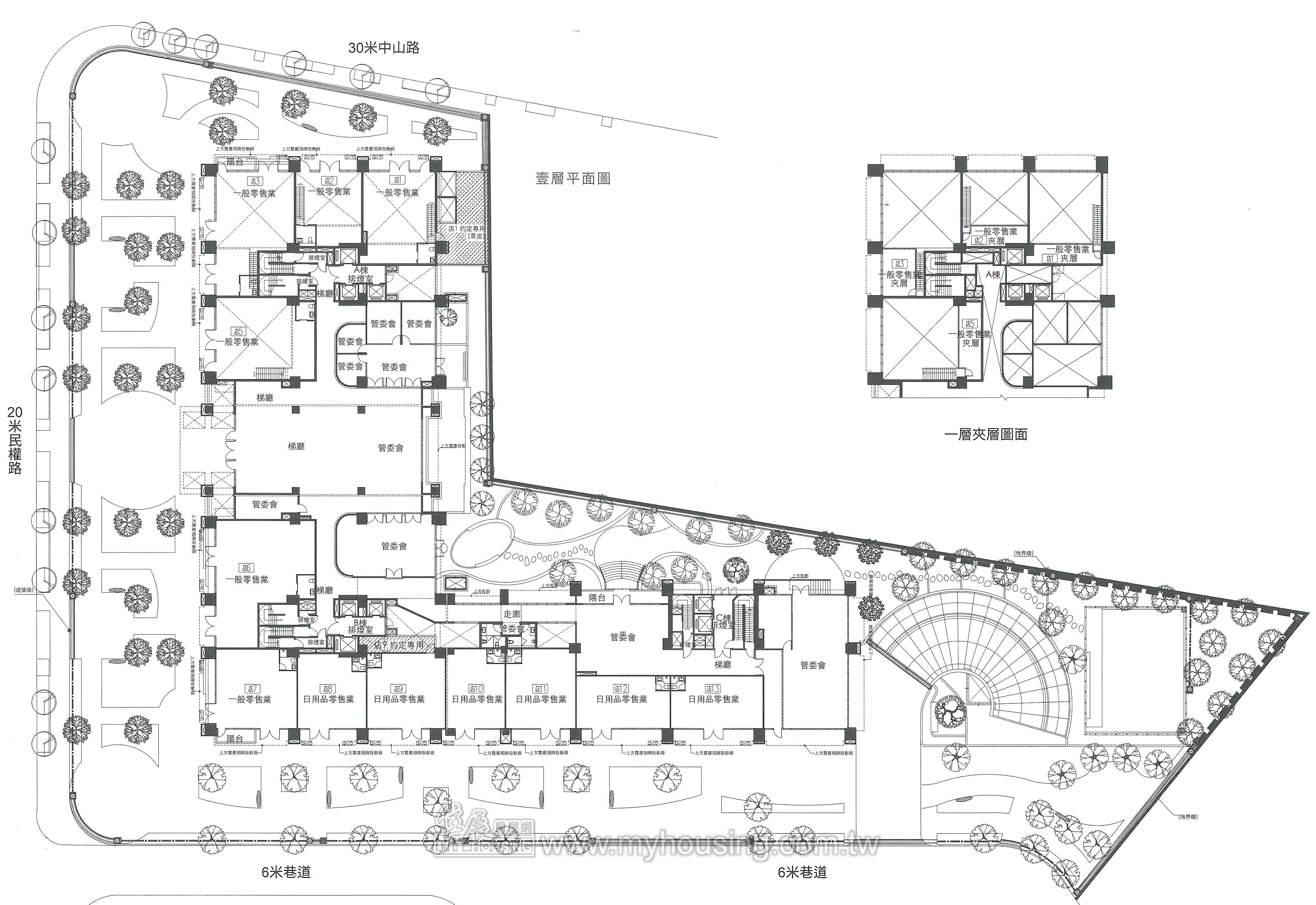
基地位置

中山路759號

總價

車位

平面/180~250萬/數量: 712

進駐日期

2024-03-29

銀行貸款

70%

層數

地上28層/地下6層

公設比

34%

實價登錄資訊

▲以下價格為每坪單價/萬元;單價已扣車位。
更新日期與內政部每月1日11日21日同步;成交價格受交易日期、樓層及戶別影響,故平均單價僅供參考。

歷史最高價

68.7 萬元/坪

交易年月

2025/07/22

歷史最低價

50.2 萬元/坪

交易年月

2024/05/03

交易筆數

358筆

歷史平均價

56.8 萬元/坪

議價率

尚未提供

建案規劃

建築設計

周文斌

投資興建

使用執照

未提供

預定交屋日

2028-06

建造執照

111-0253

規劃戶數

486 戶

基地面積

2467.3 坪

建蔽率

31.2%

個案短評

▲備註:此資料由住展企研室人員親至現場訪查,與雜誌同步更新。

基地2468坪,強調距新北國際AI+智慧園區不遠。規劃2~4房,主推高樓層。

訴求特色

電子地圖

免責聲明

為完整呈現第一手房地產資訊,住展雜誌市場資訊由市調人員定期走訪房屋銷售現場,及編輯記者採訪核對,確保消息來源明確,然市場隨時變動,圖文內容僅供參考,不屬於投資建議,實際情況以建案銷售現場為準。註:住展估價模型說明請見此

您可能會想看......

本區熱門建案

預約看屋

關閉預約看屋
Powered by
建案資料異動

關閉表格

收藏建案

尚未收藏建案