金和昌仰沐

開價

開價未定

住展估價

50萬/坪[註]本刊研判行情價

實價登錄

54.4萬/坪[註]近一年平均單價

總價

2,250~2,450萬

建案型態

預售屋 / 大樓

投資興建

企劃銷售

建案坪數

26~39坪

銷售狀態

銷售中

關注人數

 54106人關注

詳細資料

基地位置

鶯歌路

總價

2,250~2,450萬

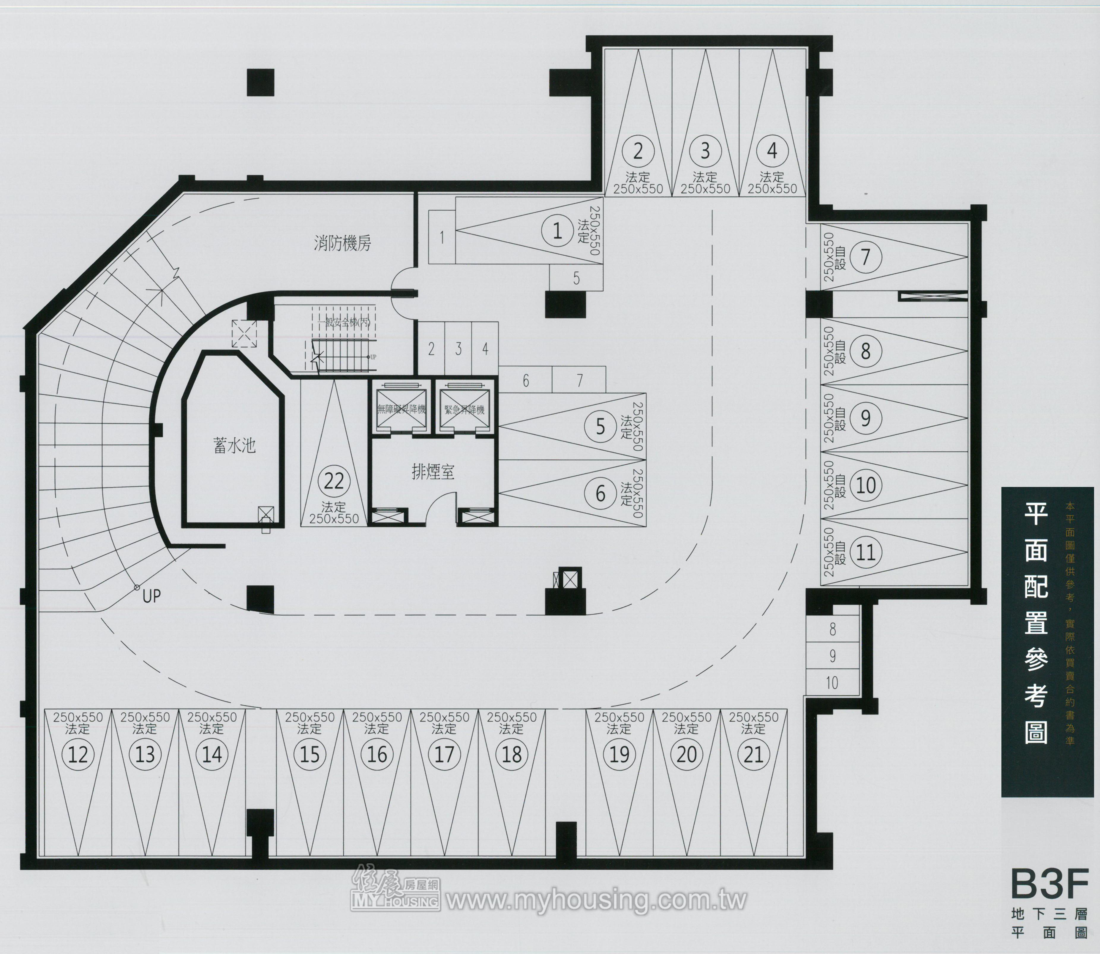
車位

平面/200~230萬

進駐日期

2024-08-17

銀行貸款

80%

層數

地上11層/地下3層

公設比

33.1%

實價登錄資訊

▲以下價格為每坪單價/萬元;單價已扣車位。
更新日期與內政部每月1日11日21日同步;成交價格受交易日期、樓層及戶別影響,故平均單價僅供參考。

歷史最高價

56.3 萬元/坪

交易年月

2025/01/04

歷史最低價

46.1 萬元/坪

交易年月

2024/09/15

交易筆數

11筆

歷史平均價

50.9 萬元/坪

議價率

尚未提供

建案規劃

建築設計

胡定華

投資興建

企劃銷售

使用執照

未提供

預定交屋日

2026-12

建造執照

112-0246

規劃戶數

49 戶

基地面積

404.7 坪

建蔽率

41.6%

個案短評

▲備註:此資料由住展企研室人員親至現場訪查,與雜誌同步更新。

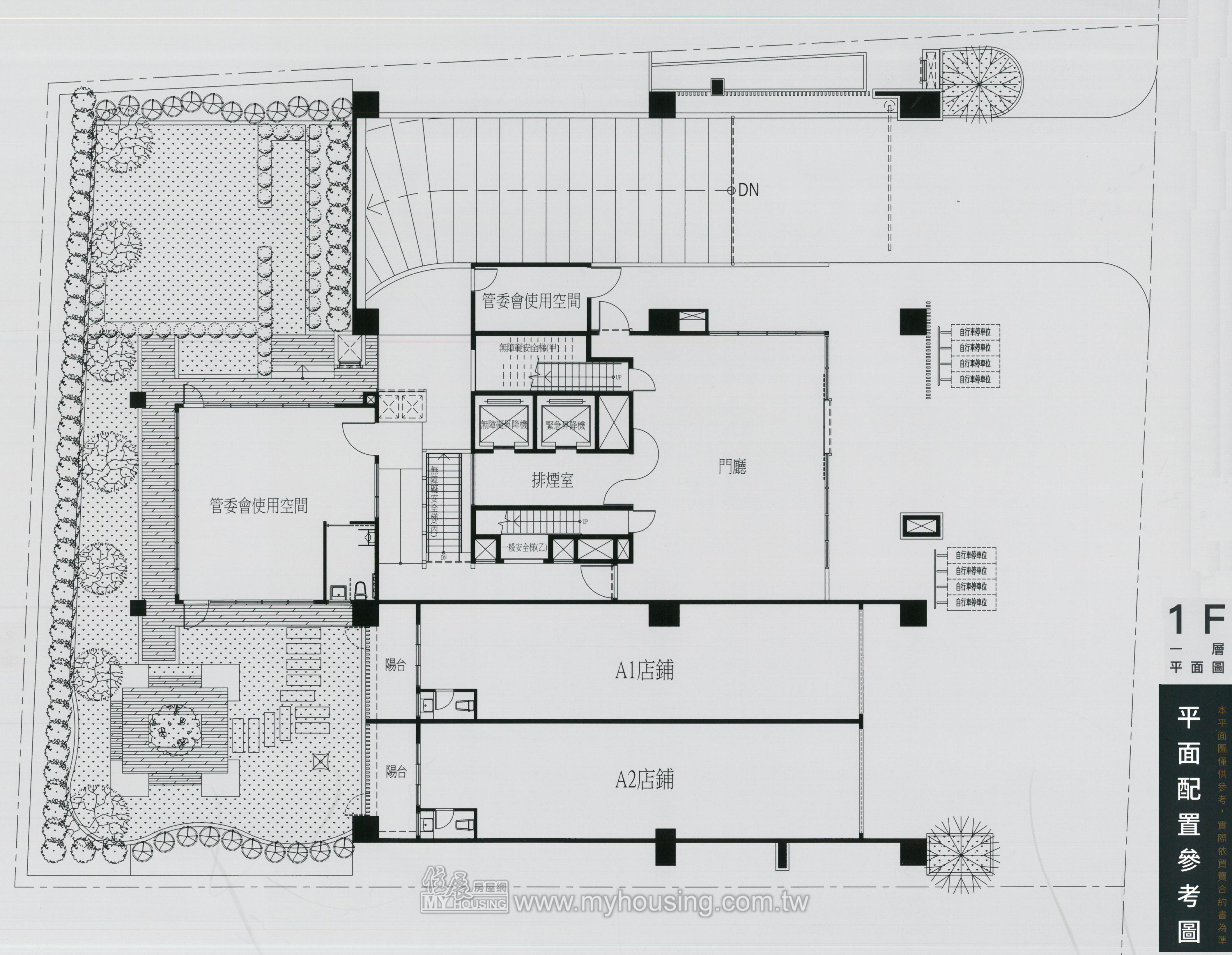
基地404.7坪,位鳳鳴重劃區,近思夢樂、鳳鳴車站。主推39坪3房,採預約賞屋。

訴求特色

捷運路線: 三鶯線(TP-LB)

週邊環境: 社區公園 / 捷運站 / 火車站 / 國高中、小學 / 面臨主幹道或次要幹道

銷售特色: 高銀貸(80%以上)

建築結構: RC

電子地圖

免責聲明

為完整呈現第一手房地產資訊,住展雜誌市場資訊由市調人員定期走訪房屋銷售現場,及編輯記者採訪核對,確保消息來源明確,然市場隨時變動,圖文內容僅供參考,不屬於投資建議,實際情況以建案銷售現場為準。註:住展估價模型說明請見此

您可能會想看......

本區熱門建案

預約看屋

關閉預約看屋
Powered by
建案資料異動

關閉表格

收藏建案

尚未收藏建案