敘文山

開價

89~96萬/坪
低於本區平均行情11.00%

住展估價

88萬/坪[註]本刊研判行情價

實價登錄

90.2萬/坪[註]近一年平均單價

總價

2,700~3,400萬

建案型態

預售屋 / 大樓

投資興建

企劃銷售

建案坪數

28~38坪

銷售狀態

銷售中

關注人數

 21671人關注

詳細資料

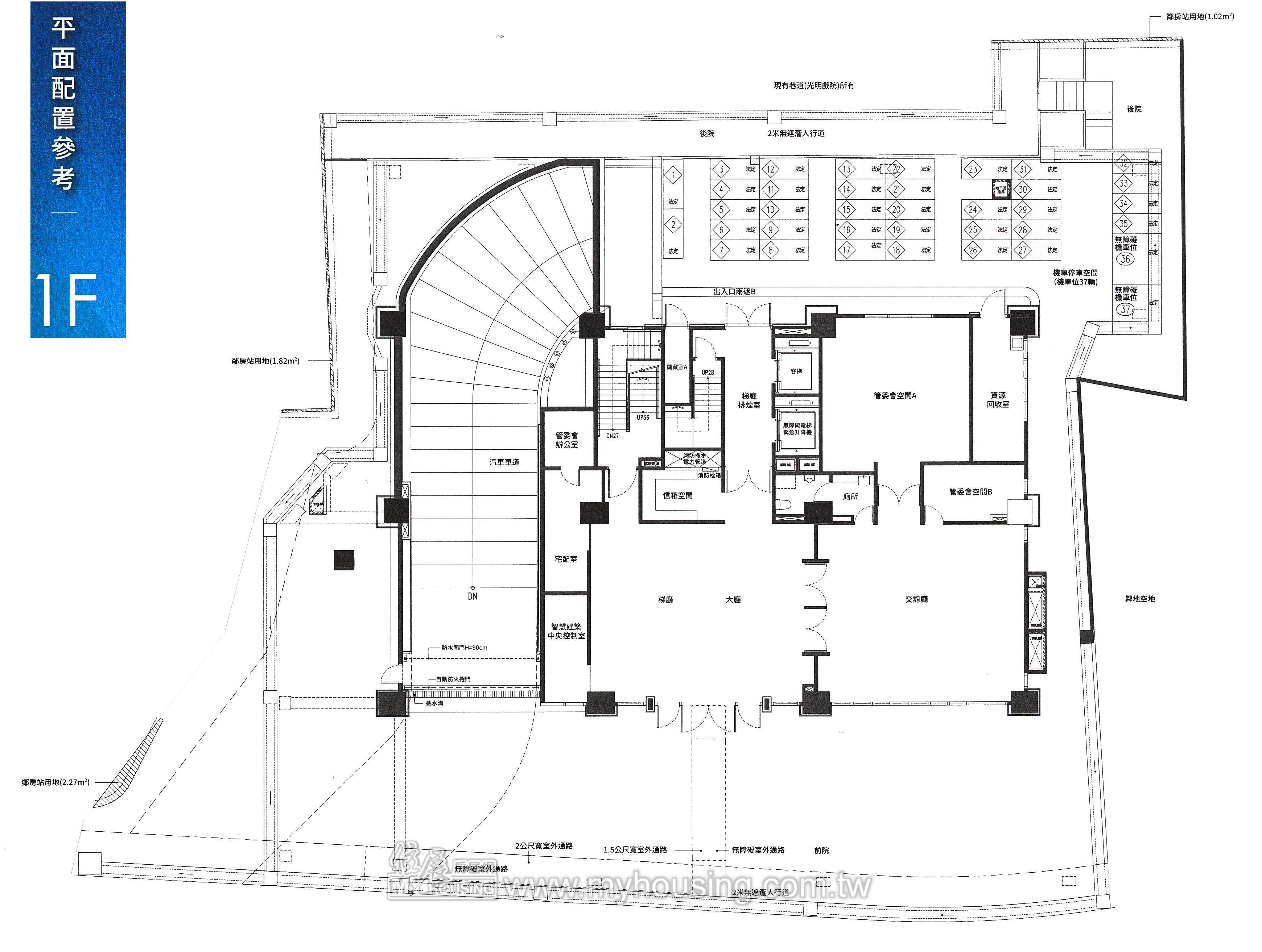
基地位置

木柵路一段238巷5號

總價

2,700~3,400萬

車位

平面/270~300萬/數量: 67

進駐日期

2024-06-08

銀行貸款

75%

層數

地上13層/地下3層

公設比

33.8%

實價登錄資訊

▲以下價格為每坪單價/萬元;單價已扣車位。
更新日期與內政部每月1日11日21日同步;成交價格受交易日期、樓層及戶別影響,故平均單價僅供參考。

歷史最高價

91.3 萬元/坪

交易年月

2025/01/08

歷史最低價

84.1 萬元/坪

交易年月

2024/08/22

交易筆數

9筆

歷史平均價

88.6 萬元/坪

議價率

2.0%

建案規劃

建築設計

夏智弘

投資興建

企劃銷售

使用執照

未提供

預定交屋日

2028-06

建造執照

112-0176

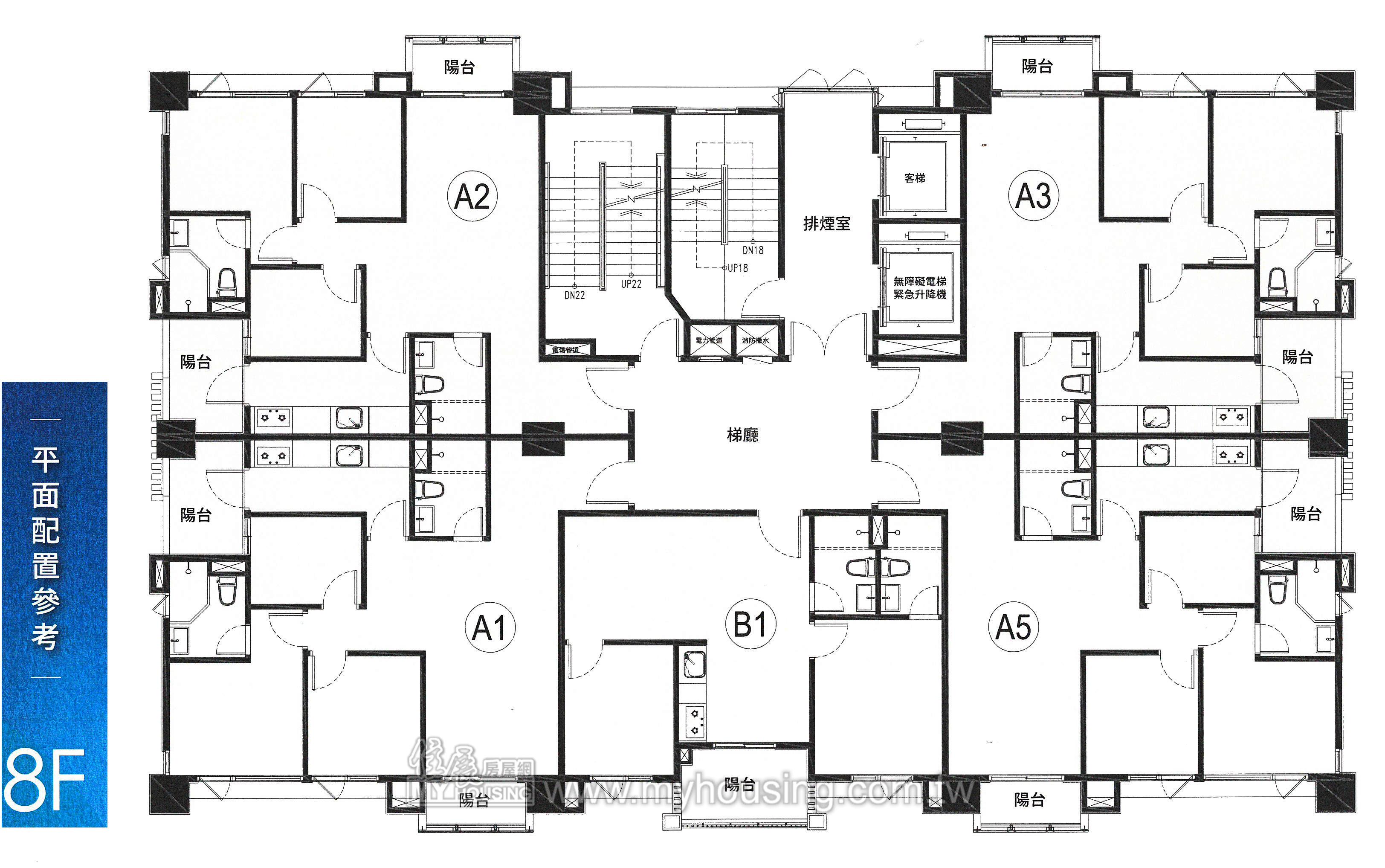
規劃戶數

59 戶

基地面積

428.9 坪

建蔽率

41.9%

個案短評

▲備註:此資料由住展企研室人員親至現場訪查,與雜誌同步更新。

基地428.9坪,近永建國小,距考試院不遠,為2~3房,訴求大信5年防水、工程零付款。

訴求特色

捷運路線: 17環狀線南環段(TP-Y)

週邊環境: 萬坪公園 / 國高中、小學 / 位居巷弄

建案優勢: 生活機能成型 / 文教學區 / 未來公共建設

銷售特色: 一般付款條件 / 工程0付款

建築結構: RC

電子地圖

免責聲明

為完整呈現第一手房地產資訊,住展雜誌市場資訊由市調人員定期走訪房屋銷售現場,及編輯記者採訪核對,確保消息來源明確,然市場隨時變動,圖文內容僅供參考,不屬於投資建議,實際情況以建案銷售現場為準。註:住展估價模型說明請見此

您可能會想看......

本區熱門建案

預約看屋

關閉預約看屋
Powered by
建案資料異動

關閉表格

收藏建案

尚未收藏建案