自由室

開價

37.0萬/坪

住展估價

32.0萬/坪[註]本刊研判行情價

實價登錄

尚未提供

總價

尚無資料

建案型態

預售屋 / 華廈

投資興建

企劃銷售

建案坪數

20~33坪

銷售狀態

已結案

關注人數

 36803人關注
此物件已結案,頁面資料為結案前之資料,僅供參考

詳細資料

基地位置

忠孝東路258巷16弄8-14號

總價

車位

機械/70~150萬

進駐日期

2018-11-01

銀行貸款

70%

層數

地上9層/地下1層

公設比

30-32%

實價登錄資訊

▲以下價格為每坪單價/萬元;單價已扣車位。
更新日期與內政部每月1日11日21日同步;成交價格受交易日期、樓層及戶別影響,故平均單價僅供參考。

歷史最高價

尚未提供

交易年月

尚未提供

歷史最低價

尚未提供

交易年月

尚未提供

交易筆數

尚未提供

歷史平均價

尚未提供

議價率

尚未提供

建案規劃

建築設計

洪新發

投資興建

企劃銷售

使用執照

未提供

預定交屋日

未提供

建造執照

107-0443

規劃戶數

24 戶

基地面積

121 坪

建蔽率

50%

個案短評

▲備註:此資料由住展企研室人員親至現場訪查,與雜誌同步更新。

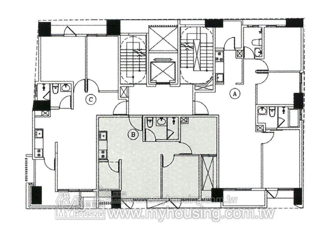
基地處巷弄,距汐止火車站350公尺,區段機能成熟、惟街廓老舊。為2~3房格局,挑高3米6。

訴求特色

週邊環境: 火車站

建案優勢: 挑高3米6 / 生活機能成型

電子地圖

免責聲明

為完整呈現第一手房地產資訊,住展雜誌市場資訊由市調人員定期走訪房屋銷售現場,及編輯記者採訪核對,確保消息來源明確,然市場隨時變動,圖文內容僅供參考,不屬於投資建議,實際情況以建案銷售現場為準。註:住展估價模型說明請見此

您可能會想看......

本區熱門建案

建案資料異動

關閉表格

收藏建案

尚未收藏建案