京澄為德
開價
53~57萬/坪
高於本區平均行情7.27%
高於本區平均行情7.27%
住展估價
尚無資料
實價登錄
51.2萬/坪[註]近一年平均單價
總價
尚無資料
建案型態
預售屋 / 大樓
投資興建
企劃銷售
建案坪數
28~44坪
銷售狀態
銷售中
關注人數
14963人關注
詳細資料
基地位置
鳳七路
總價
車位
平面/190~220萬
進駐日期
2024-12-07
銀行貸款
75%
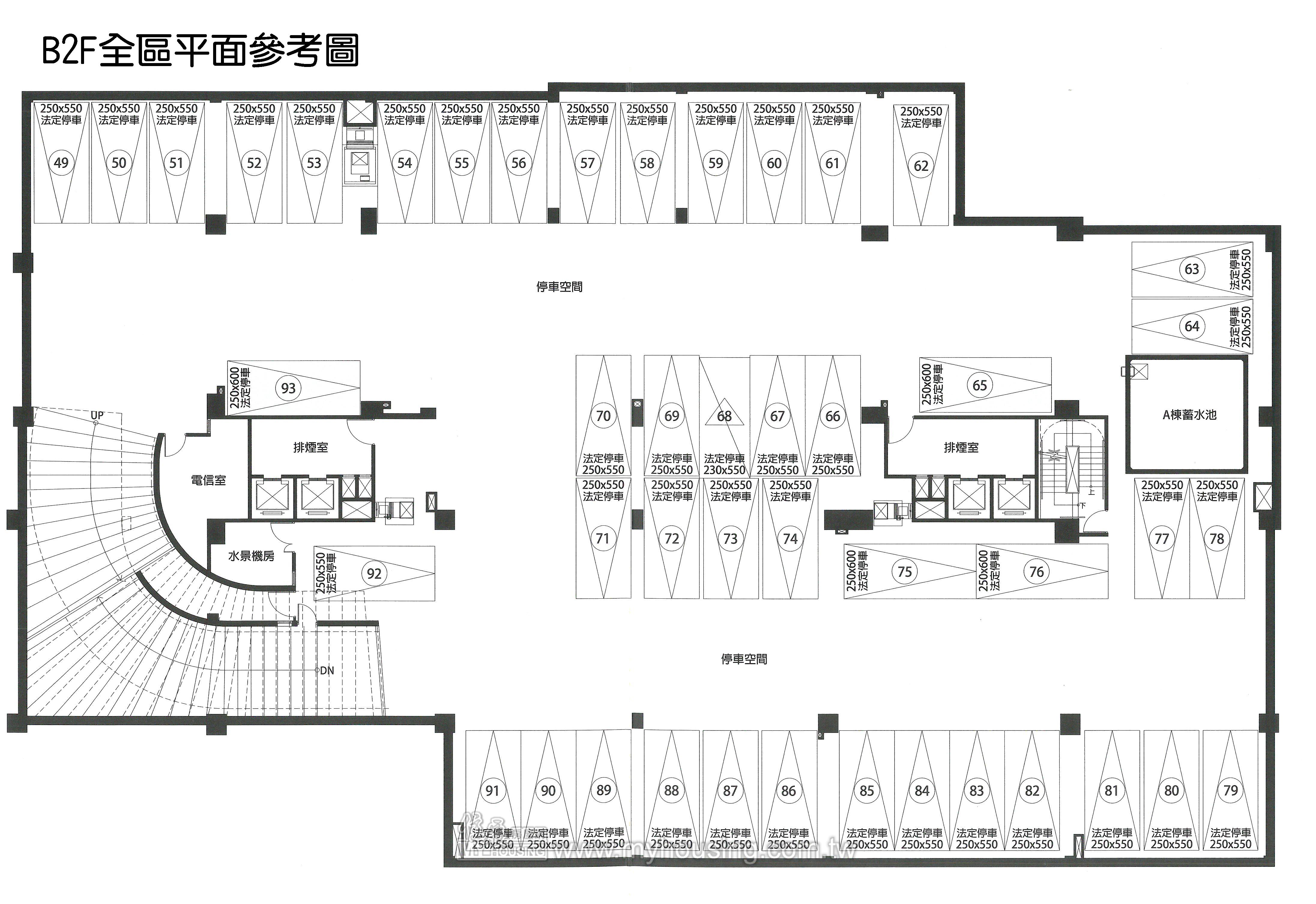
層數
地上14層/地下3層
公設比
34.5%
實價登錄資訊
▲以下價格為每坪單價/萬元;單價已扣車位。更新日期與內政部每月1日/11日/21日同步;成交價格受交易日期、樓層及戶別影響,故平均單價僅供參考。
歷史最高價
53.9 萬元/坪
交易年月
2025/02/21
歷史最低價
48.0 萬元/坪
交易年月
2025/03/14
交易筆數
41筆
歷史平均價
51.2 萬元/坪
議價率
6.0%
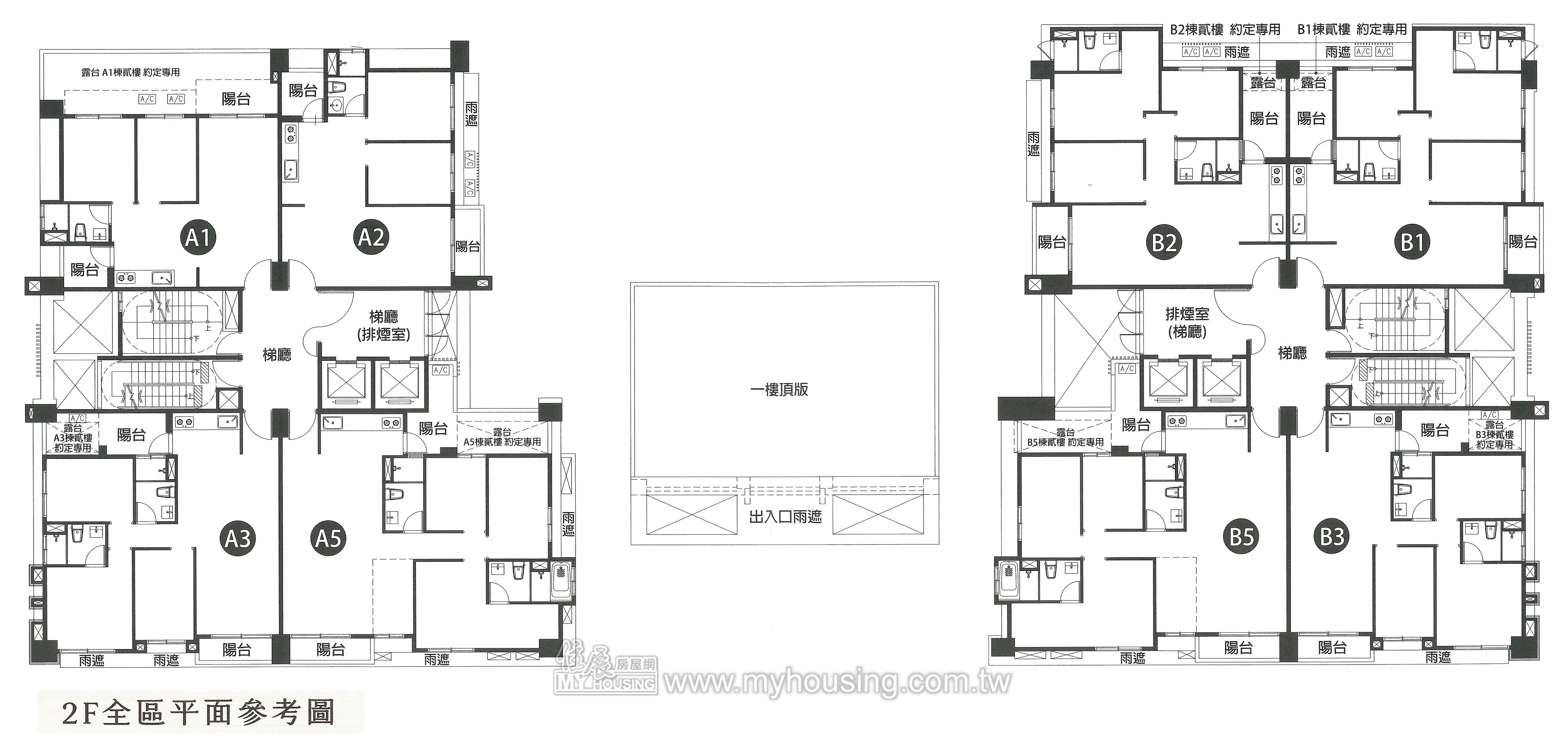
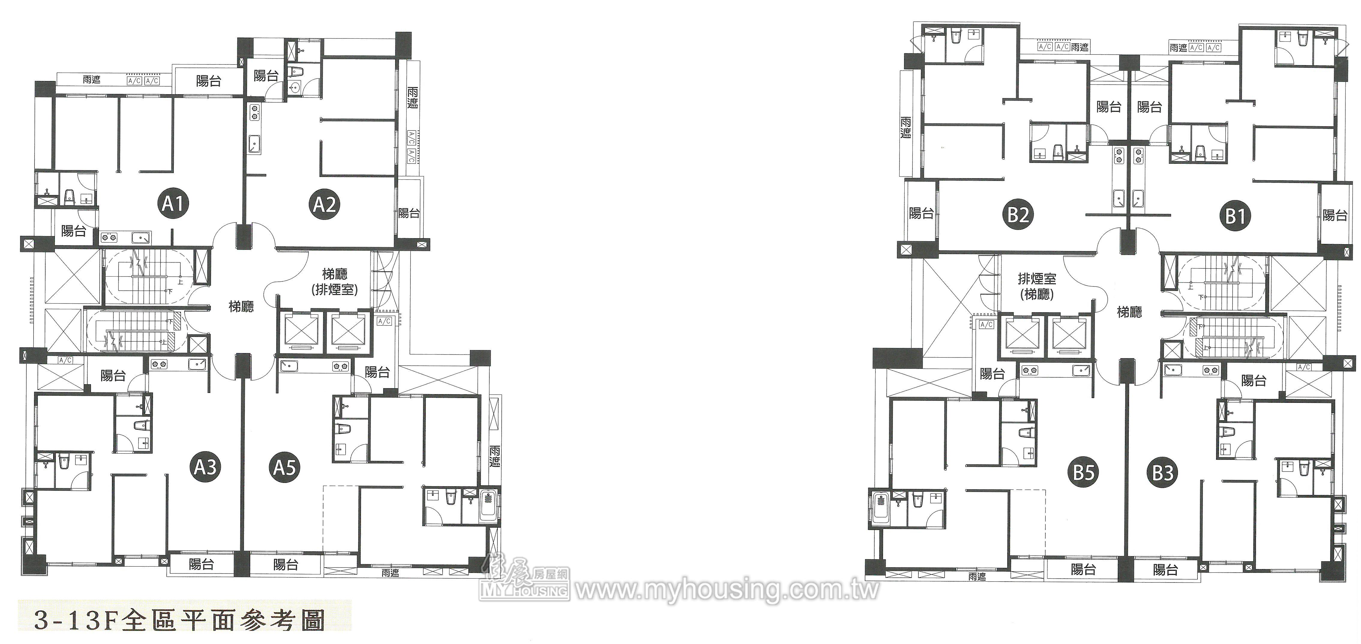
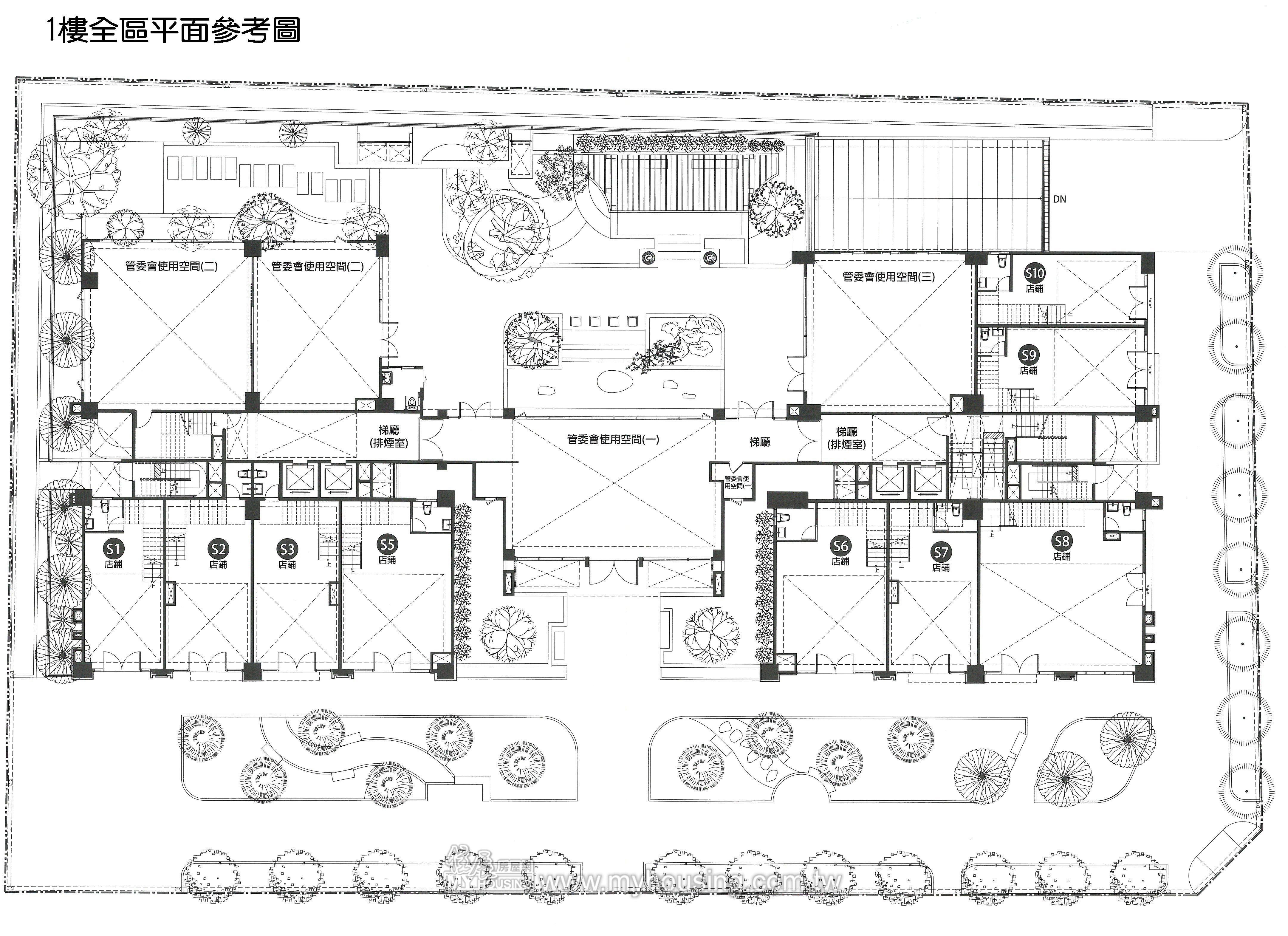
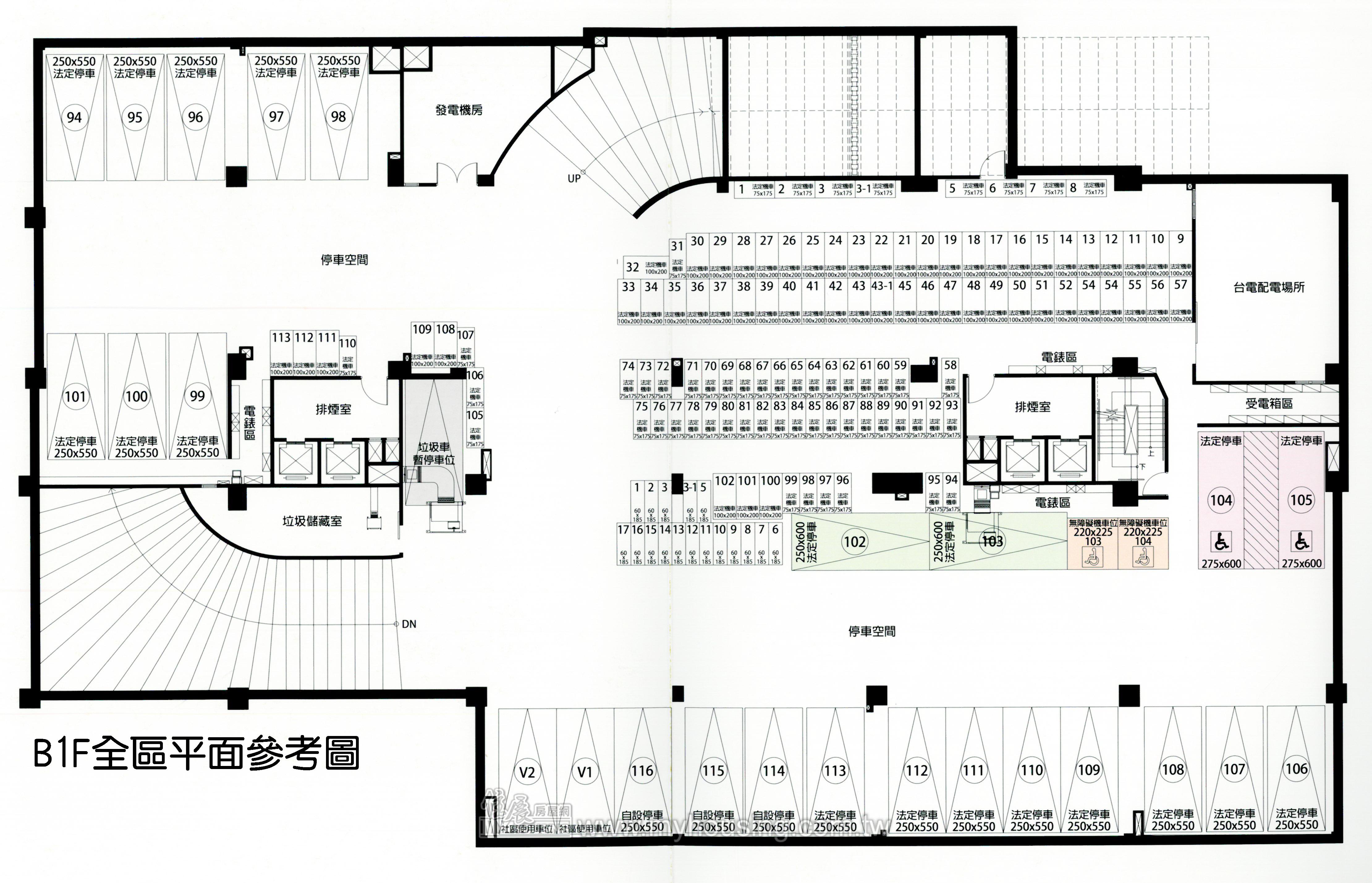
建案規劃
個案短評
▲備註:此資料由住展企研室人員親至現場訪查,與雜誌同步更新。
位鳳鳴重劃區,近鶯桃路商圈,至距興建中捷運鶯桃福德站約700公尺。規劃2~3房、戶戶邊間。
訴求特色
捷運路線: 三鶯線(TP-LB)
銷售特色: 一般付款條件
建築結構: RC
電子地圖
免責聲明
為完整呈現第一手房地產資訊,住展雜誌市場資訊由市調人員定期走訪房屋銷售現場,及編輯記者採訪核對,確保消息來源明確,然市場隨時變動,圖文內容僅供參考,不屬於投資建議,實際情況以建案銷售現場為準。註:住展估價模型說明請見此












































