建案搜尋 新竹縣 竹北市 京茂富天廈River1

京茂富天廈River1

開價

52.5萬/坪
低於本區平均行情29.00%

住展估價

45.0萬/坪[註]本刊研判行情價

實價登錄

尚未提供

總價

尚無資料

建案型態

成屋 / 辦公商業大樓

投資興建

企劃銷售

建案坪數

37~128坪

銷售狀態

銷售中

關注人數

 25207人關注

詳細資料

基地位置

興隆路二段337號

總價

車位

平面/180~200萬

進駐日期

2020-06-02

銀行貸款

70%

層數

地上19層/地下2層

公設比

30%

實價登錄資訊

▲以下價格為每坪單價/萬元;單價已扣車位。
更新日期與內政部每月1日11日21日同步;成交價格受交易日期、樓層及戶別影響,故平均單價僅供參考。

歷史最高價

尚未提供

交易年月

尚未提供

歷史最低價

尚未提供

交易年月

尚未提供

交易筆數

尚未提供

歷史平均價

尚未提供

議價率

尚未提供

建案規劃

建築設計

李謝嵐

投資興建

企劃銷售

使用執照

109-0476

預定交屋日

2020-07

建造執照

101-0394

規劃戶數

99 戶

基地面積

1269 坪

建蔽率

36.5%

個案短評

▲備註:此資料由住展企研室人員親至現場訪查,與雜誌同步更新。

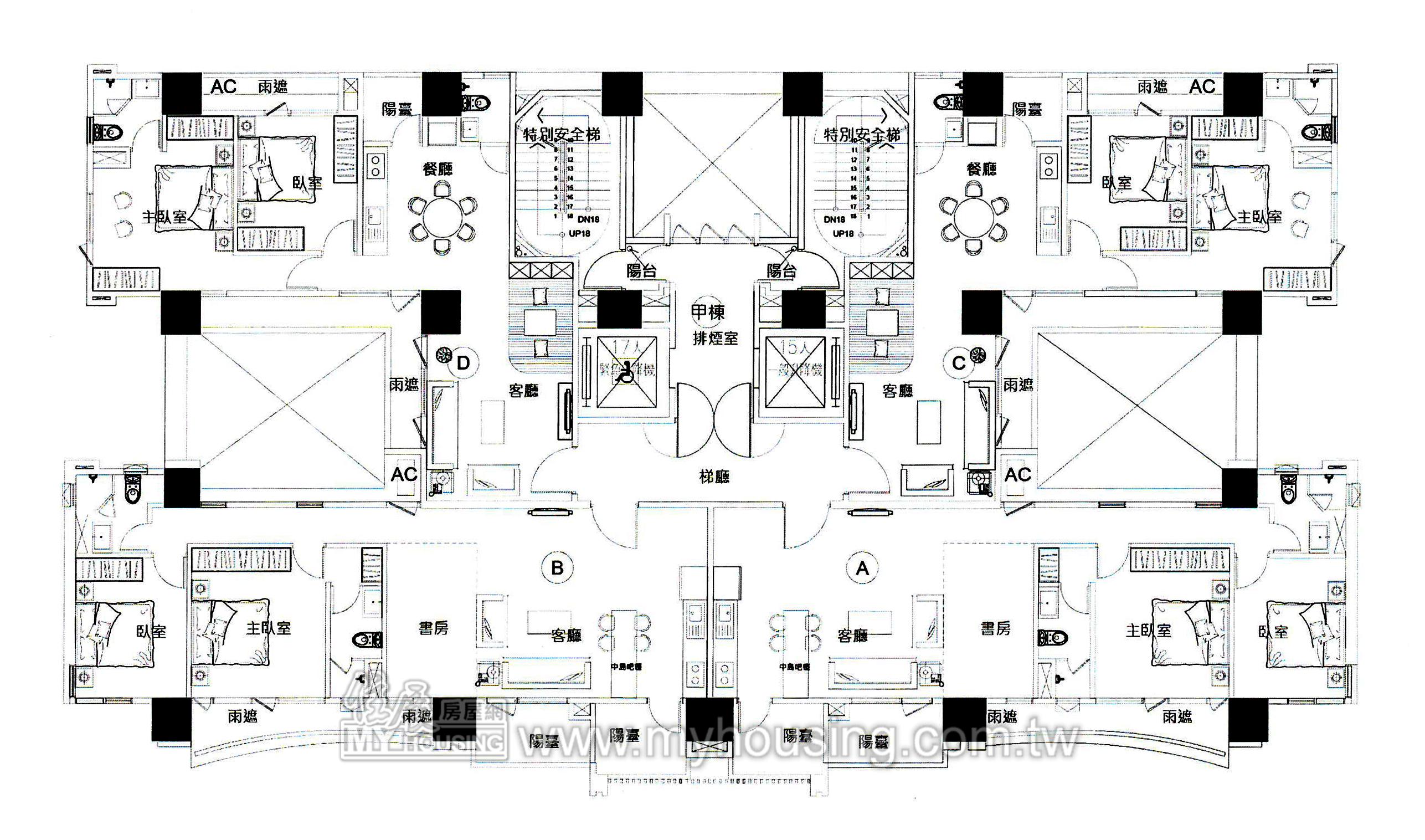
基地1269坪,面頭前溪,鄰近經國大橋,距地方法院不遠,規劃2棟,可售為64~128坪商辦。

訴求特色

休閒公設: 有休閒設施

週邊環境: 社區公園 / 水岸景觀 / 鄰河川 / 位居角地 / 面臨主幹道或次要幹道

建案優勢: 交通動線佳 / 文教學區

電子地圖

免責聲明

為完整呈現第一手房地產資訊,住展雜誌市場資訊由市調人員定期走訪房屋銷售現場,及編輯記者採訪核對,確保消息來源明確,然市場隨時變動,圖文內容僅供參考,不屬於投資建議,實際情況以建案銷售現場為準。註:住展估價模型說明請見此

您可能會想看......

本區熱門建案

預約看屋

關閉預約看屋
Powered by
建案資料異動

關閉表格

收藏建案

尚未收藏建案