悦讀伊頓
開價
60~65萬/坪
高於本區平均行情12.70%
高於本區平均行情12.70%
住展估價
57萬/坪[註]本刊研判行情價
實價登錄
尚未提供
總價
尚無資料
建案型態
預售屋 / 大樓
投資興建
企劃銷售
建案坪數
25~37坪
銷售狀態
銷售中
關注人數
66469人關注
詳細資料
基地位置
國際二路二段、大興西路三段交叉口附近
總價
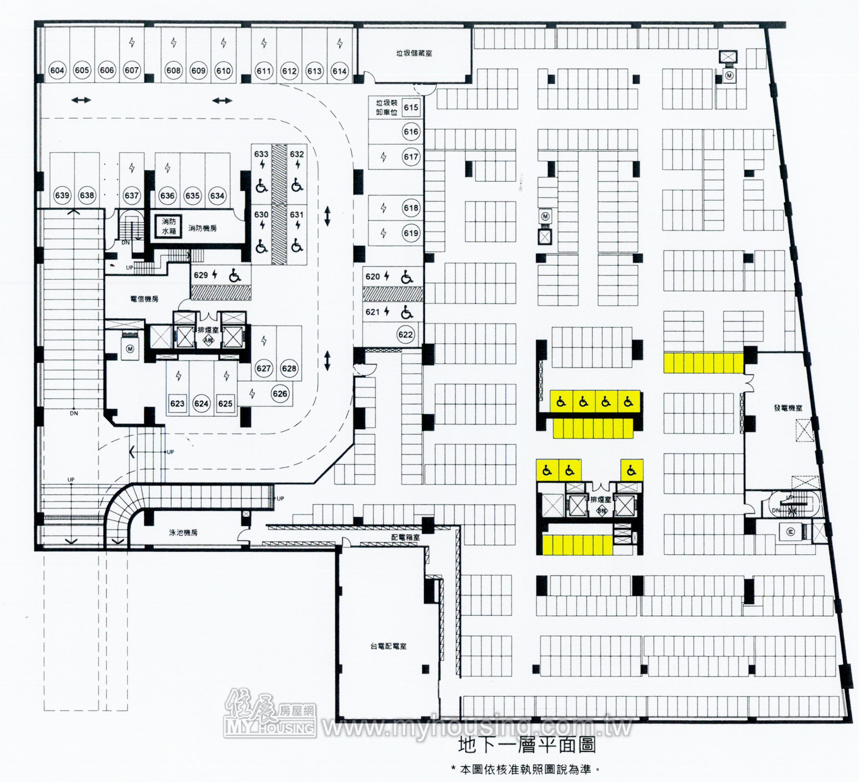
車位
平面/200~230萬/數量: 639
進駐日期
2024-10-01
銀行貸款
80%
層數
地上32層/地下5層
公設比
34.5%
實價登錄資訊
▲以下價格為每坪單價/萬元;單價已扣車位。更新日期與內政部每月1日/11日/21日同步;成交價格受交易日期、樓層及戶別影響,故平均單價僅供參考。
歷史最高價
尚未提供
交易年月
尚未提供
歷史最低價
尚未提供
交易年月
尚未提供
交易筆數
尚未提供
歷史平均價
尚未提供
議價率
尚未提供
建案規劃
個案短評
▲備註:此資料由住展企研室人員親至現場訪查,與雜誌同步更新。
基地2356.7坪,規劃2~3房、附精裝修。位中路重劃區,鄰近南桃園交流道、風禾公園。
訴求特色
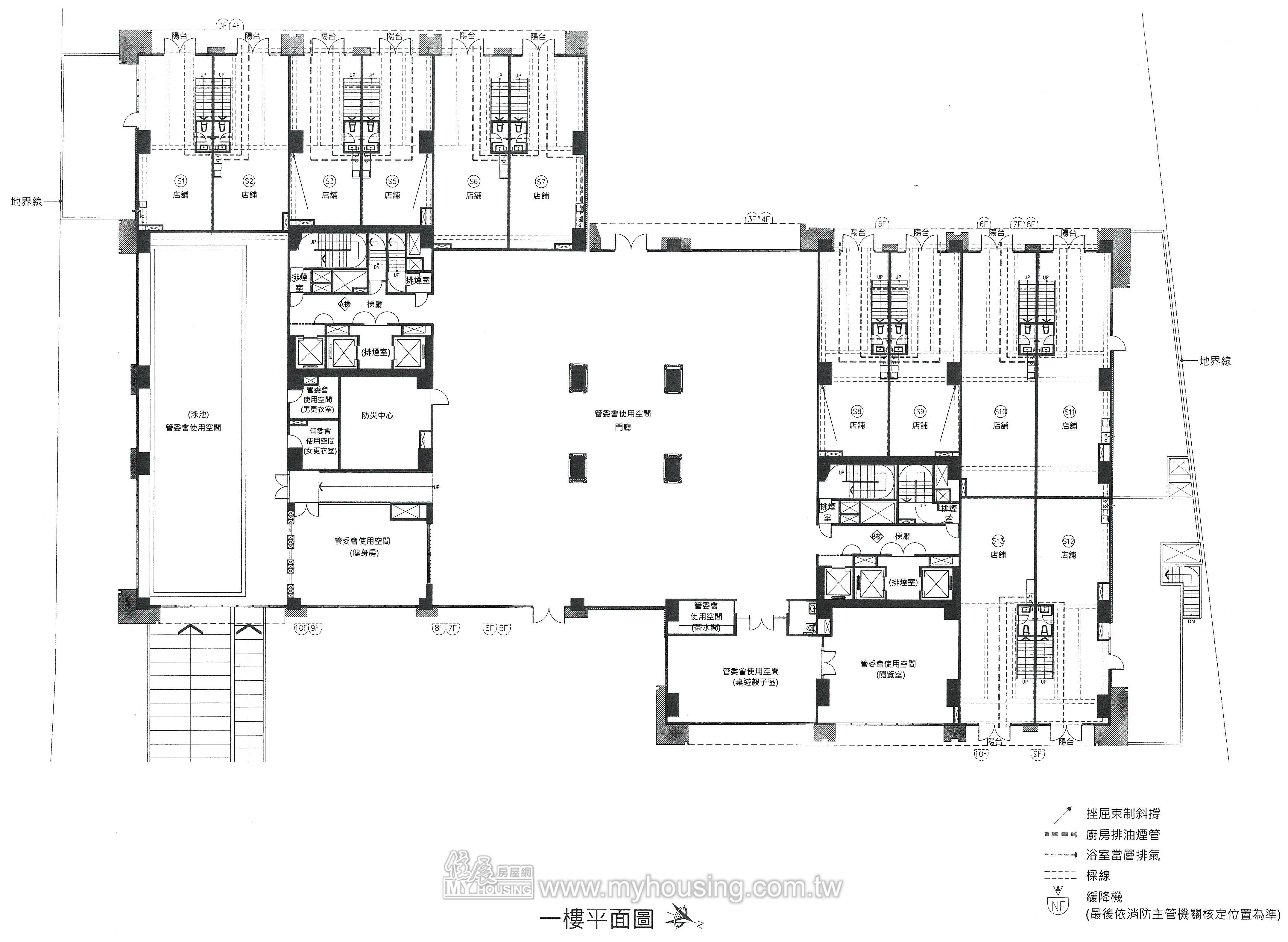
休閒公設: 室內游泳池 / 健身房 / 挑高門廳
週邊環境: 社區公園 / 萬坪公園 / 面臨主幹道或次要幹道 / 近交流道
建案優勢: 交通動線佳
銷售特色: 高銀貸(80%以上)
建築結構: RC
電子地圖
免責聲明
為完整呈現第一手房地產資訊,住展雜誌市場資訊由市調人員定期走訪房屋銷售現場,及編輯記者採訪核對,確保消息來源明確,然市場隨時變動,圖文內容僅供參考,不屬於投資建議,實際情況以建案銷售現場為準。註:住展估價模型說明請見此