建案搜尋 臺北市 大安區 寶舖全健築-知行

寶舖全健築-知行

開價

160~199萬/坪
高於本區平均行情4.44%

住展估價

175萬/坪[註]本刊研判行情價

實價登錄

179.8萬/坪[註]近一年平均單價

總價

尚無資料

建案型態

預售屋 / 大樓

投資興建

企劃銷售

建案坪數

25~39坪

銷售狀態

銷售中

關注人數

 68393人關注

詳細資料

基地位置

復興南路二段146號

總價

車位

平面/400~520萬/數量: 44
機械/280萬/數量: 28

進駐日期

2024-08-24

銀行貸款

70%

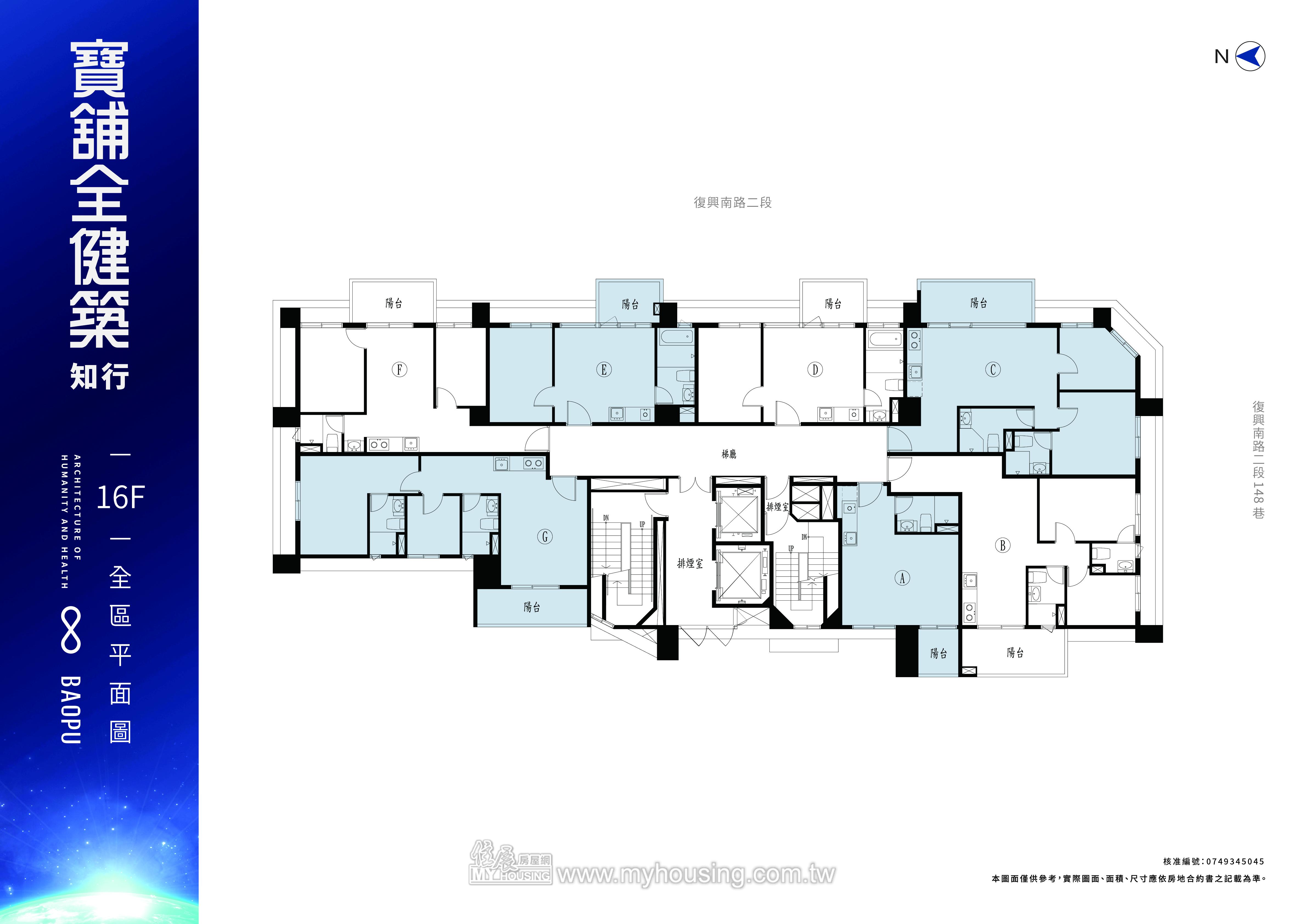
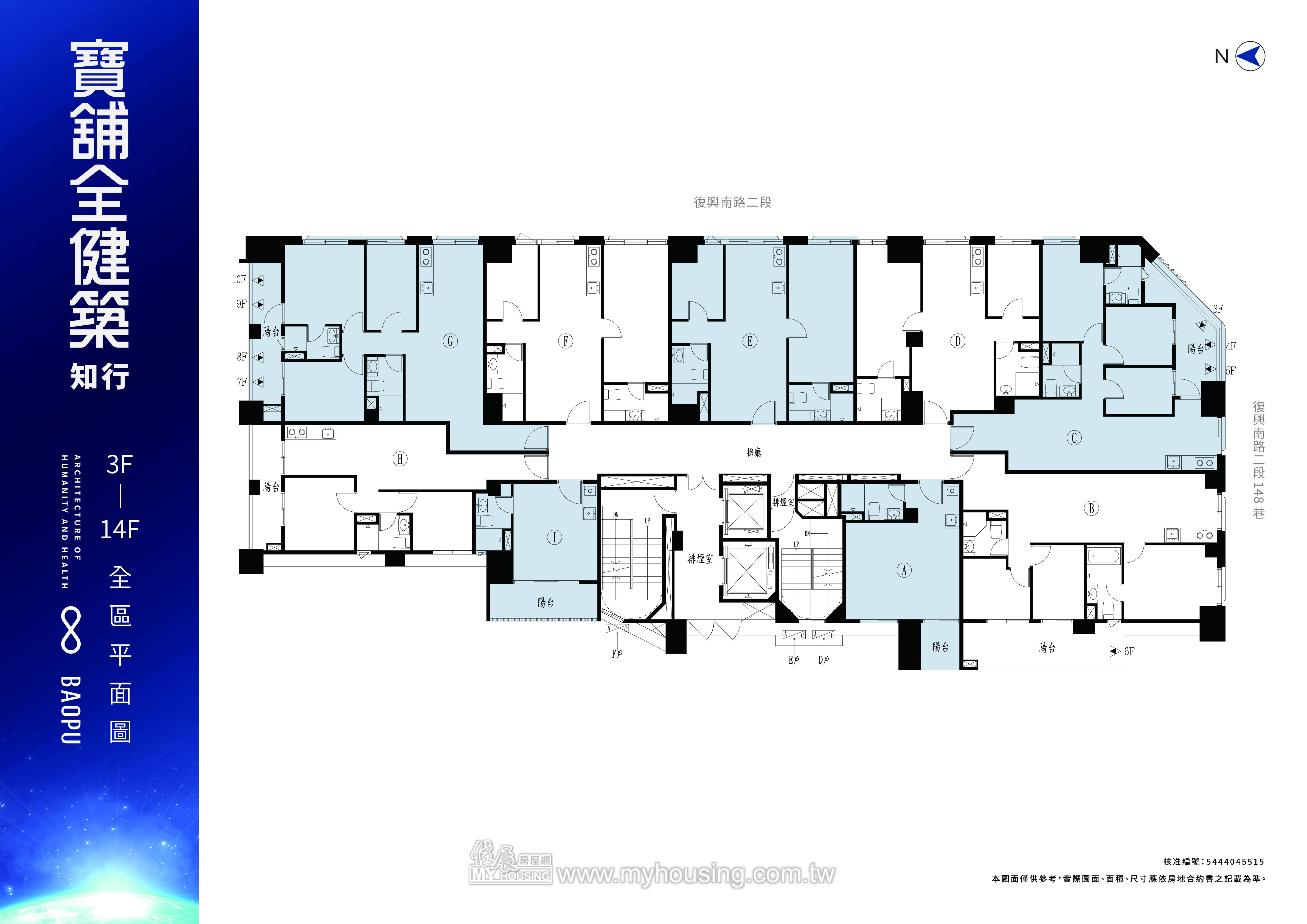
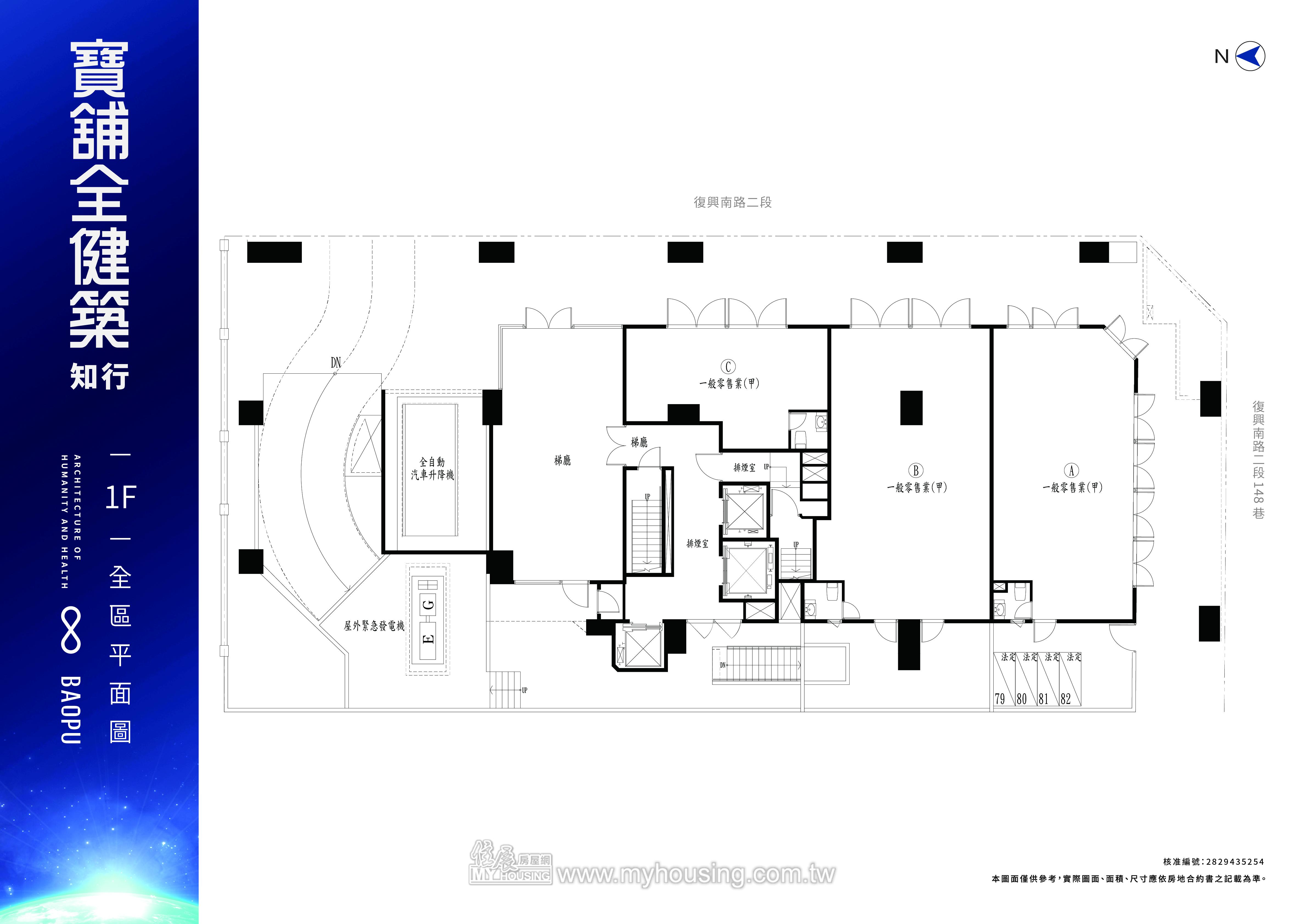
層數

地上17層/地下5層

公設比

36.9%

實價登錄資訊

▲以下價格為每坪單價/萬元;單價已扣車位。
更新日期與內政部每月1日11日21日同步;成交價格受交易日期、樓層及戶別影響,故平均單價僅供參考。

歷史最高價

200.0 萬元/坪

交易年月

2025/02/28

歷史最低價

155.0 萬元/坪

交易年月

2025/03/29

交易筆數

5筆

歷史平均價

179.8 萬元/坪

議價率

0.0%

建案規劃

建築設計

卓培煙

投資興建

企劃銷售

使用執照

未提供

預定交屋日

2028-09

建造執照

113-0151

規劃戶數

134 戶

基地面積

240.7 坪

建蔽率

49.9%

個案短評

▲備註:此資料由住展企研室人員親至現場訪查,與雜誌同步更新。

基地240.7坪,近捷運科技大樓站,周邊機能完善。採SC結構,銷售25~39坪。

訴求特色

建築結構: SC

電子地圖

免責聲明

為完整呈現第一手房地產資訊,住展雜誌市場資訊由市調人員定期走訪房屋銷售現場,及編輯記者採訪核對,確保消息來源明確,然市場隨時變動,圖文內容僅供參考,不屬於投資建議,實際情況以建案銷售現場為準。註:住展估價模型說明請見此

您可能會想看......

本區熱門建案

預約看屋

關閉預約看屋
Powered by
建案資料異動

關閉表格

收藏建案

尚未收藏建案