紳藏

開價

144~160萬/坪

住展估價

尚無資料

實價登錄

145.3萬/坪[註]近一年平均單價

總價

尚無資料

建案型態

預售屋 / 大樓

投資興建

企劃銷售

建案坪數

12~35坪

銷售狀態

已結案

關注人數

 27820人關注
此物件已結案,頁面資料為結案前之資料,僅供參考

詳細資料

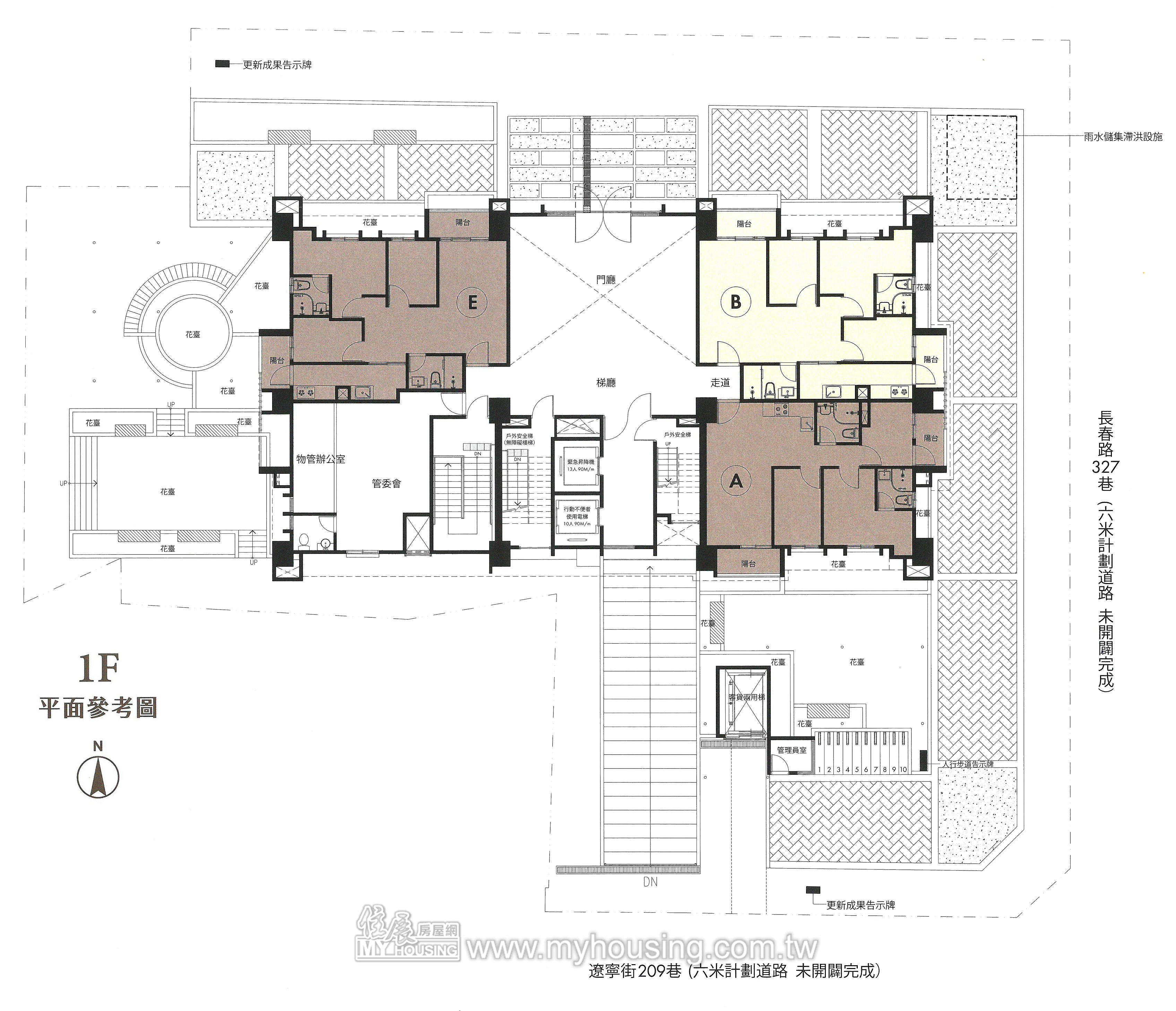
基地位置

遼寧街209巷

總價

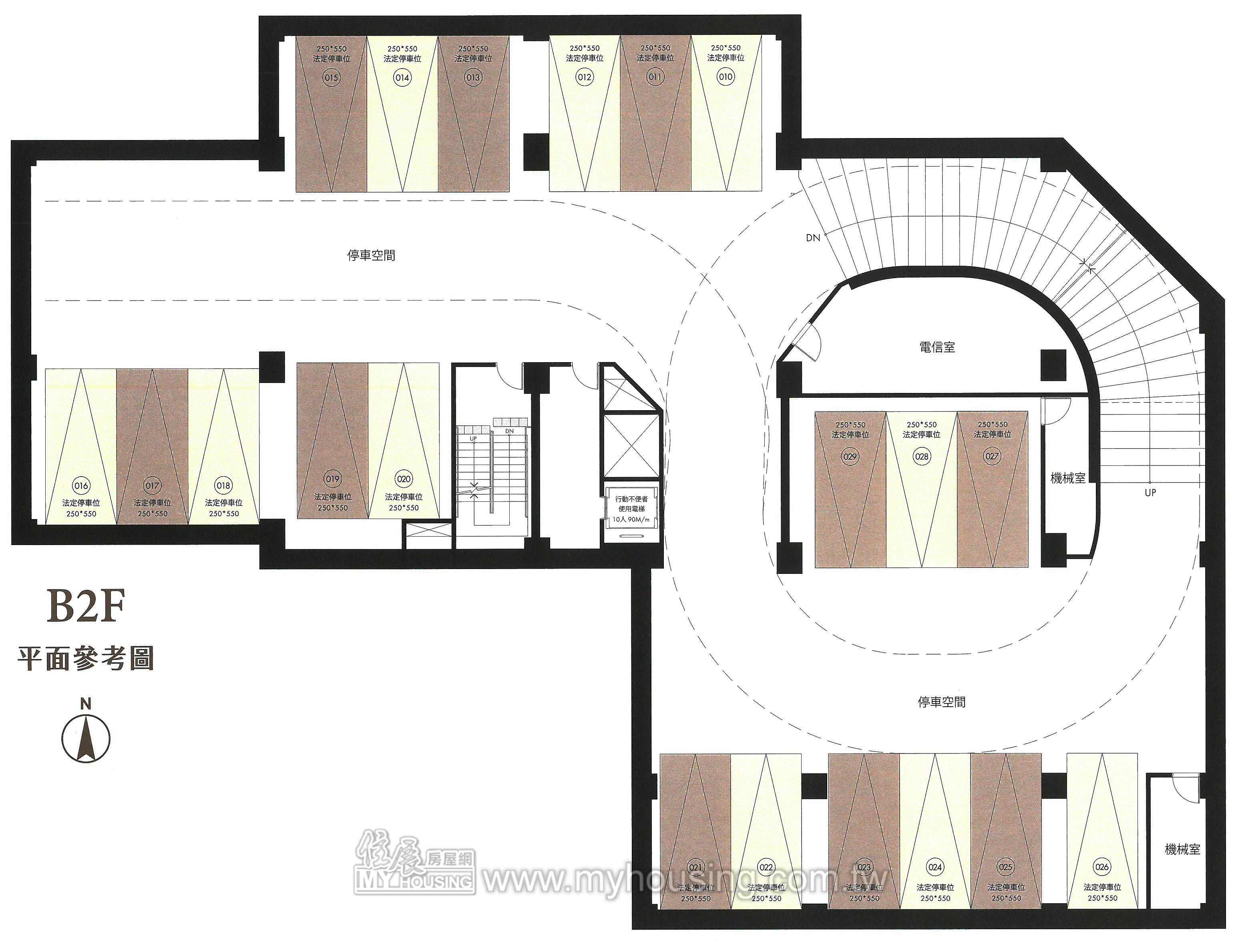
車位

平面/370~400萬/數量: 49

進駐日期

2024-09-28

銀行貸款

75%

層數

地上15層/地下3層

公設比

33.67%

實價登錄資訊

▲以下價格為每坪單價/萬元;單價已扣車位。
更新日期與內政部每月1日11日21日同步;成交價格受交易日期、樓層及戶別影響,故平均單價僅供參考。

歷史最高價

150.1 萬元/坪

交易年月

2024/11/22

歷史最低價

140.3 萬元/坪

交易年月

2024/11/14

交易筆數

7筆

歷史平均價

145.3 萬元/坪

議價率

4.0%

建案規劃

建築設計

殷瑋

投資興建

企劃銷售

使用執照

未提供

預定交屋日

2028-09

建造執照

112-0067

規劃戶數

81 戶

基地面積

409.2 坪

建蔽率

43.4%

個案短評

▲備註:此資料由住展企研室人員親至現場訪查,與雜誌同步更新。

基地409.2坪,近捷運南京復興站,主力為3房,訴求訂簽8%,於松山區長春路335號設接待。

訴求特色

捷運路線: 松山新店線(TP-G)

週邊環境: 社區公園 / 熱鬧商圈 / 捷運站 / 百貨公司、購物中心 / 國高中、小學 / 位居角地 / 位居巷弄

建案優勢: 生活機能成型 / 文教學區 / 捷運500m內

銷售特色: 一般付款條件

建築結構: SRC

電子地圖

免責聲明

為完整呈現第一手房地產資訊,住展雜誌市場資訊由市調人員定期走訪房屋銷售現場,及編輯記者採訪核對,確保消息來源明確,然市場隨時變動,圖文內容僅供參考,不屬於投資建議,實際情況以建案銷售現場為準。註:住展估價模型說明請見此

您可能會想看......

本區熱門建案

建案資料異動

關閉表格

收藏建案

尚未收藏建案