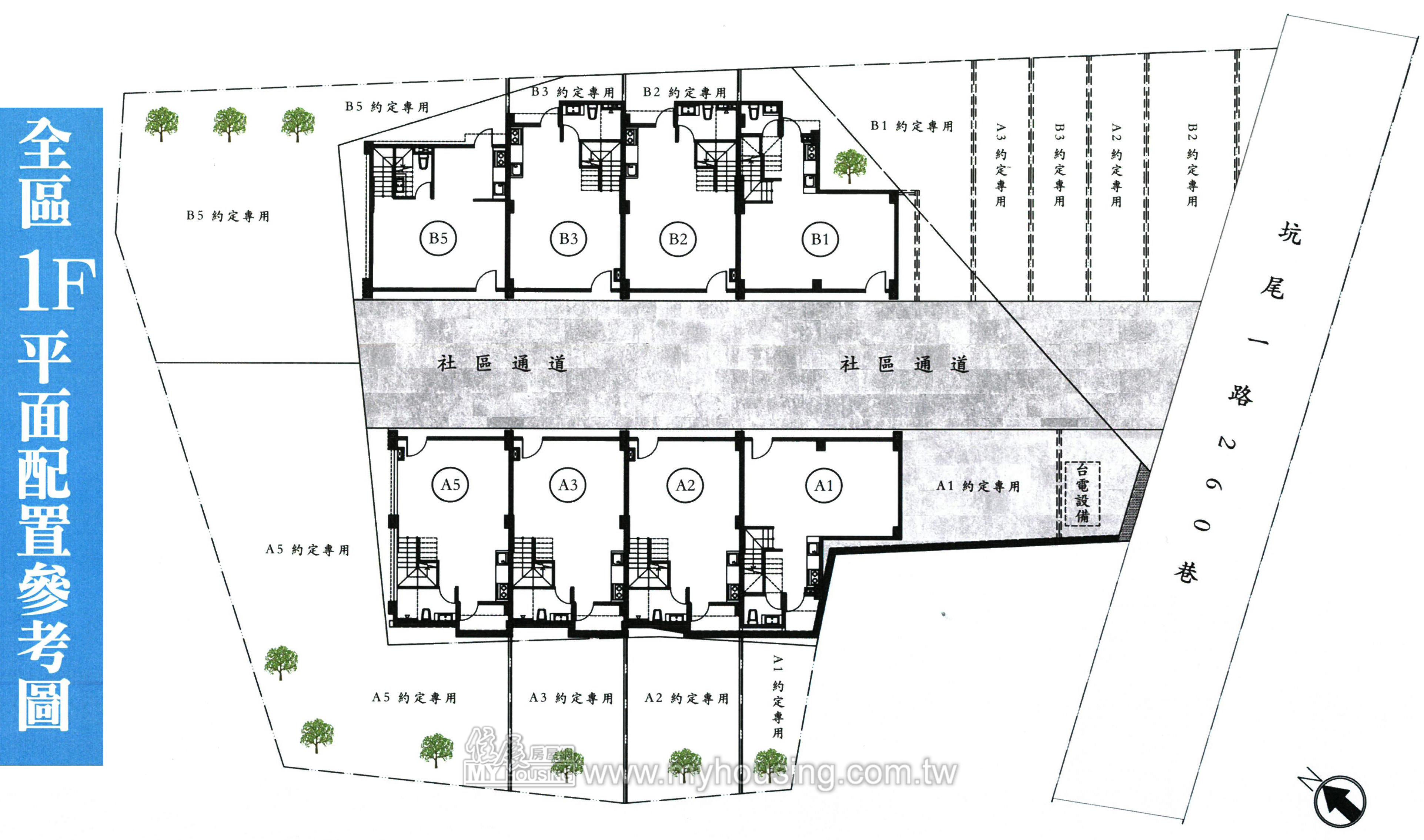
森禾墅

開價

開價未定

住展估價

30萬/坪[註]本刊研判行情價

實價登錄

尚未提供

總價

1,286~1,498萬

建案型態

成屋 / 透天、別墅

投資興建

企劃銷售

建案坪數

40~43坪

銷售狀態

銷售中

關注人數

 59852人關注

詳細資料

基地位置

坑尾一路260巷68號

總價

1,286~1,498萬

車位

庭院停車/價格未提供

進駐日期

2024-12-14

銀行貸款

80%

層數

地上3層/地下0層

公設比

未提供

實價登錄資訊

▲以下價格為每坪單價/萬元;單價已扣車位。
更新日期與內政部每月1日11日21日同步;成交價格受交易日期、樓層及戶別影響,故平均單價僅供參考。

歷史最高價

尚未提供

交易年月

尚未提供

歷史最低價

尚未提供

交易年月

尚未提供

交易筆數

尚未提供

歷史平均價

尚未提供

議價率

尚未提供

建案規劃

建築設計

張金城

投資興建

企劃銷售

使用執照

113-1145

預定交屋日

2025-03

建造執照

112-0220

規劃戶數

8 戶

基地面積

222.6 坪

建蔽率

49%

個案短評

▲備註:此資料由住展企研室人員親至現場訪查,與雜誌同步更新。

基地222.6坪,距觀音舊市區約4分鐘車程。規劃透天住家,地坪26~31坪,總價1286萬起。

訴求特色

週邊環境: 位居巷弄 / 鄰田地

建案優勢: 透天地坪大

銷售特色: 高銀貸(80%以上)

建築結構: RC

電子地圖

免責聲明

為完整呈現第一手房地產資訊,住展雜誌市場資訊由市調人員定期走訪房屋銷售現場,及編輯記者採訪核對,確保消息來源明確,然市場隨時變動,圖文內容僅供參考,不屬於投資建議,實際情況以建案銷售現場為準。註:住展估價模型說明請見此

您可能會想看......

本區熱門建案

預約看屋

關閉預約看屋
Powered by
建案資料異動

關閉表格

收藏建案

尚未收藏建案