藏韻
開價
37~40萬/坪
低於本區平均行情9.00%
低於本區平均行情9.00%
住展估價
36.5萬/坪[註]本刊研判行情價
實價登錄
35.7萬/坪[註]近一年平均單價
總價
尚無資料
建案型態
預售屋 / 大樓
投資興建
企劃銷售
建案坪數
22~33坪
銷售狀態
銷售中
關注人數
41145人關注
詳細資料
基地位置
新興路881巷
總價
車位
平面/價格未提供/數量: 95
進駐日期
2025-04-07
銀行貸款
75%
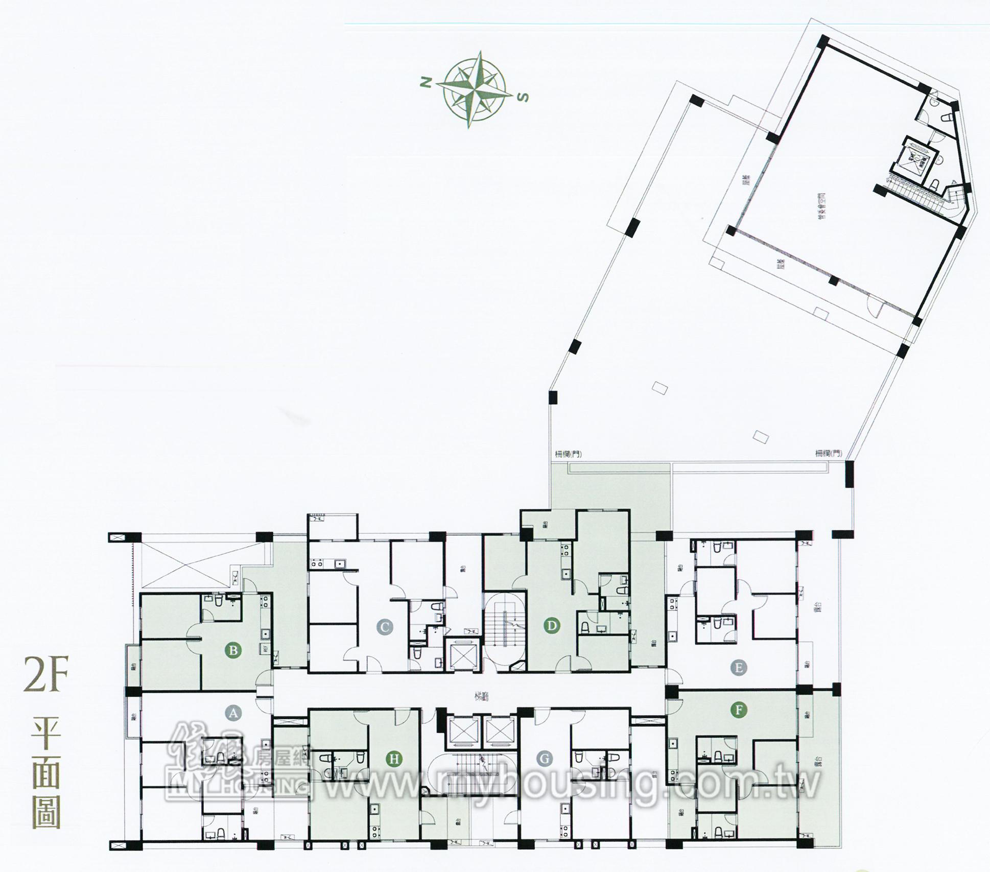
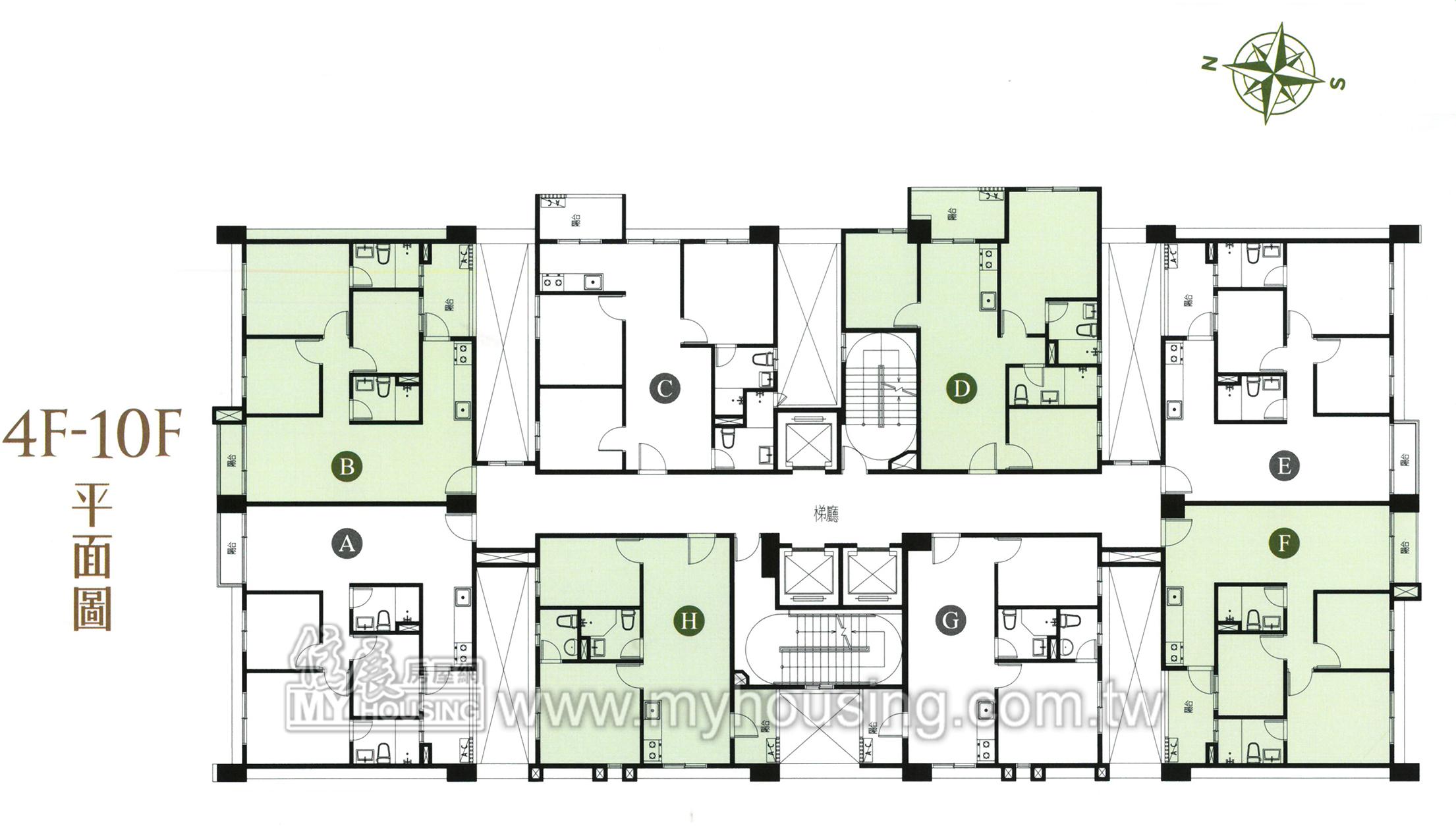
層數
地上11層/地下2層
公設比
33.5-34%
實價登錄資訊
▲以下價格為每坪單價/萬元;單價已扣車位。更新日期與內政部每月1日/11日/21日同步;成交價格受交易日期、樓層及戶別影響,故平均單價僅供參考。
歷史最高價
35.7 萬元/坪
交易年月
2025/07/17
歷史最低價
35.7 萬元/坪
交易年月
2025/07/17
交易筆數
1筆
歷史平均價
35.7 萬元/坪
議價率
7.0%
建案規劃
個案短評
▲備註:此資料由住展企研室人員親至現場訪查,與雜誌同步更新。
基地633.92坪,至擴大重劃區、捷運G02站約4~5分鐘車程。屬甲種建地,規劃2~3房產品。
訴求特色
休閒公設: 迎賓大廳 / 交誼會客室
週邊環境: 位居巷弄
銷售特色: 一般付款條件
建築結構: RC
電子地圖
免責聲明
為完整呈現第一手房地產資訊,住展雜誌市場資訊由市調人員定期走訪房屋銷售現場,及編輯記者採訪核對,確保消息來源明確,然市場隨時變動,圖文內容僅供參考,不屬於投資建議,實際情況以建案銷售現場為準。註:住展估價模型說明請見此

























