建案搜尋 新竹市 東區 學府首席Ⅱ

學府首席Ⅱ

開價

53~54萬/坪
低於本區平均行情21.00%

住展估價

53萬/坪[註]本刊研判行情價

實價登錄

53.6萬/坪[註]近一年平均單價

總價

尚無資料

建案型態

預售屋 / 華廈

投資興建

企劃銷售

建案坪數

28~60坪

銷售狀態

銷售中

關注人數

 27157人關注

詳細資料

基地位置

高峰路110巷

總價

車位

平面/235~250萬

進駐日期

2022-11-04

銀行貸款

75%

層數

地上7層/地下2層

公設比

28-32%

實價登錄資訊

▲以下價格為每坪單價/萬元;單價已扣車位。
更新日期與內政部每月1日11日21日同步;成交價格受交易日期、樓層及戶別影響,故平均單價僅供參考。

歷史最高價

54.9 萬元/坪

交易年月

2024/06/11

歷史最低價

46.6 萬元/坪

交易年月

2023/06/27

交易筆數

36筆

歷史平均價

50.4 萬元/坪

議價率

0.0%

建案規劃

建築設計

林政達

企劃銷售

使用執照

未提供

預定交屋日

2026-03

建造執照

111-0101

規劃戶數

79 戶

基地面積

1015 坪

建蔽率

36.2%

個案短評

▲備註:此資料由住展企研室人員親至現場訪查,與雜誌同步更新。

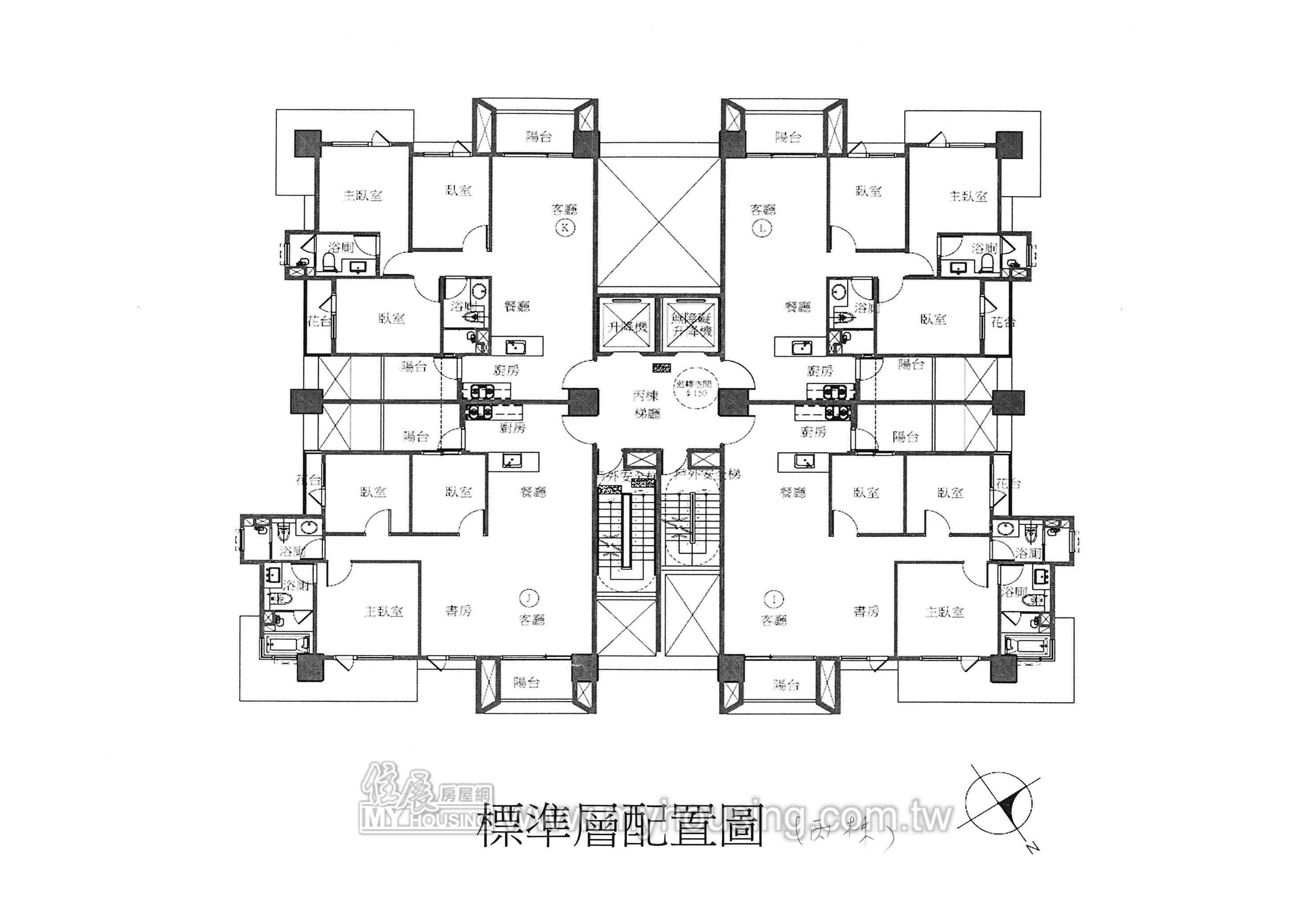
基地1015坪,處靜巷,鄰近聖經書院,距陽光國小、育賢國中不遠,規劃3棟,為2~3+1房。

訴求特色

休閒公設: 有休閒設施

週邊環境: 位居巷弄

建案優勢: 文教學區

建築結構: RC

電子地圖

免責聲明

為完整呈現第一手房地產資訊,住展雜誌市場資訊由市調人員定期走訪房屋銷售現場,及編輯記者採訪核對,確保消息來源明確,然市場隨時變動,圖文內容僅供參考,不屬於投資建議,實際情況以建案銷售現場為準。註:住展估價模型說明請見此

您可能會想看......

本區熱門建案

預約看屋

關閉預約看屋
Powered by
建案資料異動

關閉表格

收藏建案

尚未收藏建案