維特魯威

開價

41.9萬/坪
低於本區平均行情19.00%

住展估價

35.7萬/坪[註]本刊研判行情價

實價登錄

尚未提供

總價

尚無資料

建案型態

預售屋 / 大樓

投資興建

企劃銷售

建案坪數

27~47坪

銷售狀態

銷售中

關注人數

 71695人關注

詳細資料

基地位置

文桃路、牛角坡路交叉口

總價

車位

平面/180~230萬

進駐日期

2021-09-15

銀行貸款

80%

層數

地上28層/地下5層

公設比

33.4%

實價登錄資訊

▲以下價格為每坪單價/萬元;單價已扣車位。
更新日期與內政部每月1日11日21日同步;成交價格受交易日期、樓層及戶別影響,故平均單價僅供參考。

歷史最高價

38.7 萬元/坪

交易年月

2021/10/01

歷史最低價

27.5 萬元/坪

交易年月

2021/12/24

交易筆數

120筆

歷史平均價

32.6 萬元/坪

議價率

尚未提供

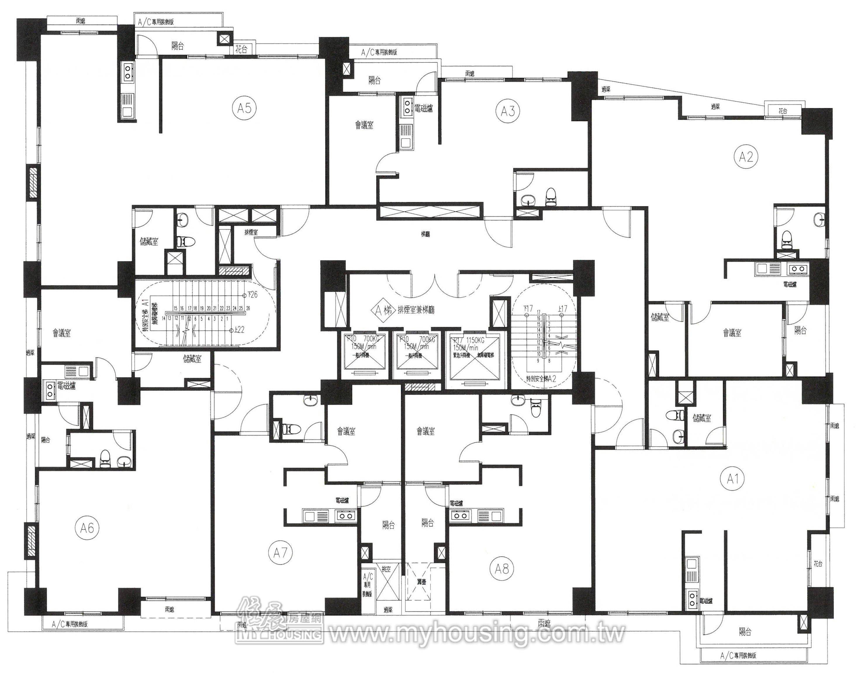
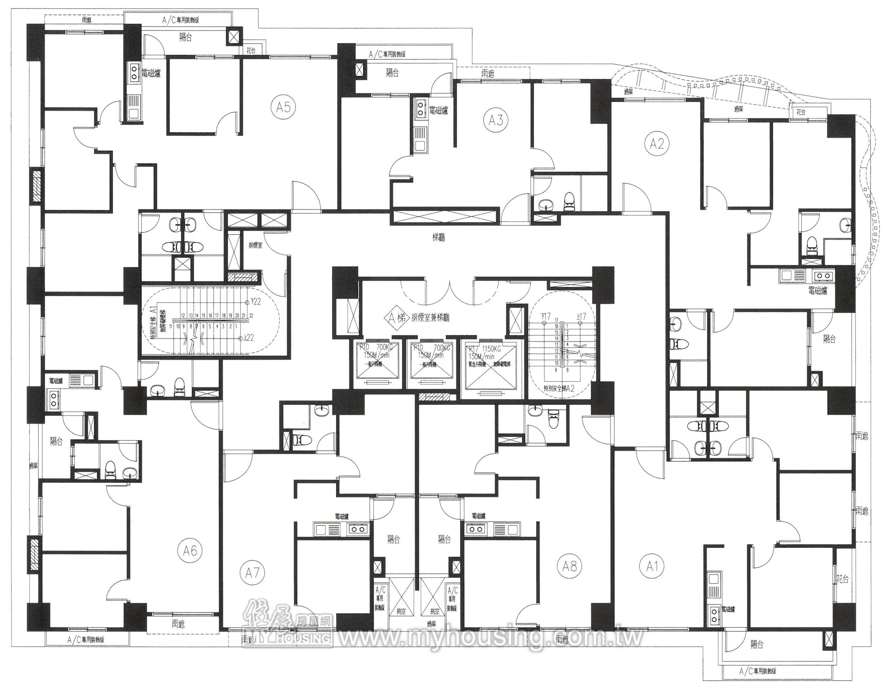
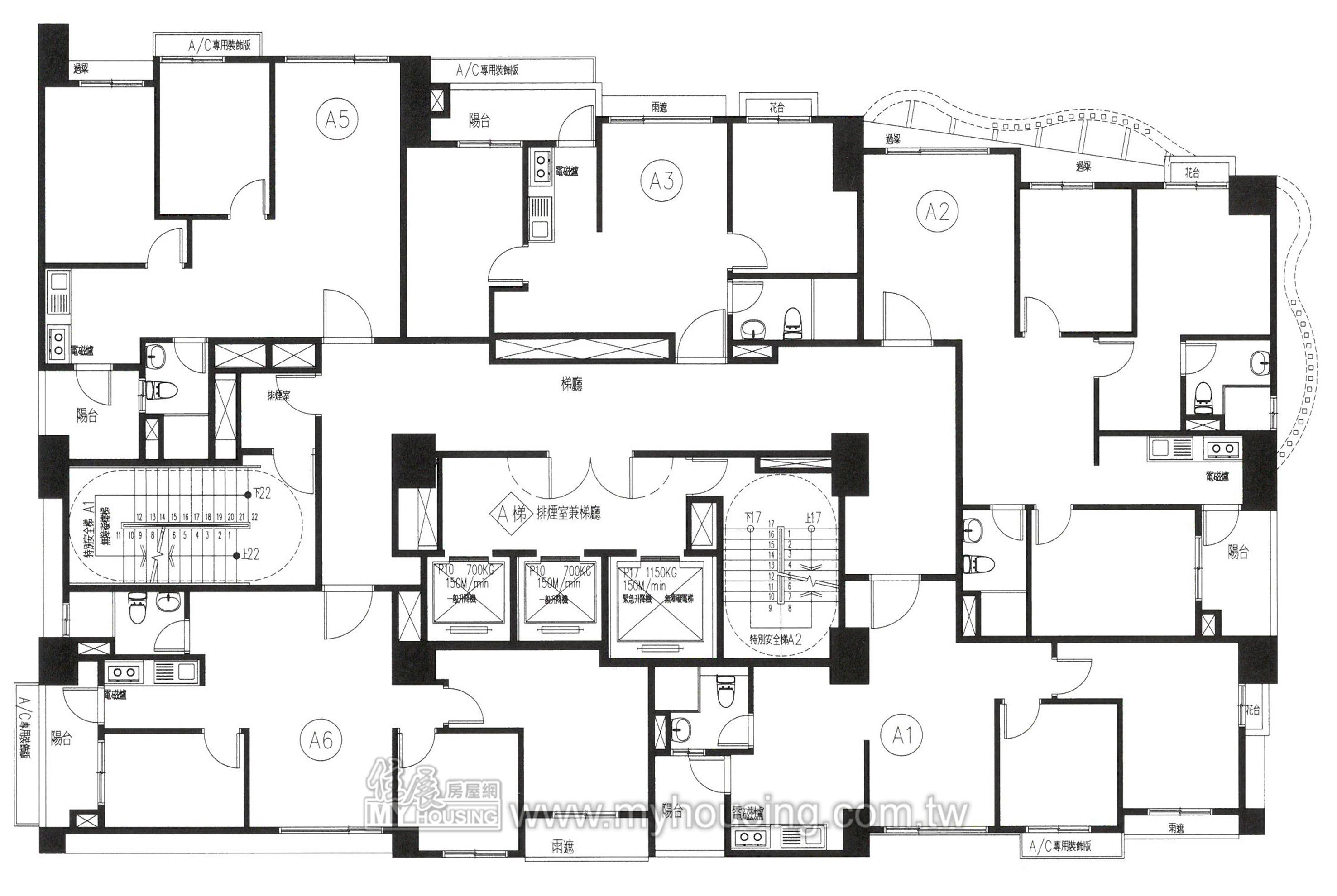
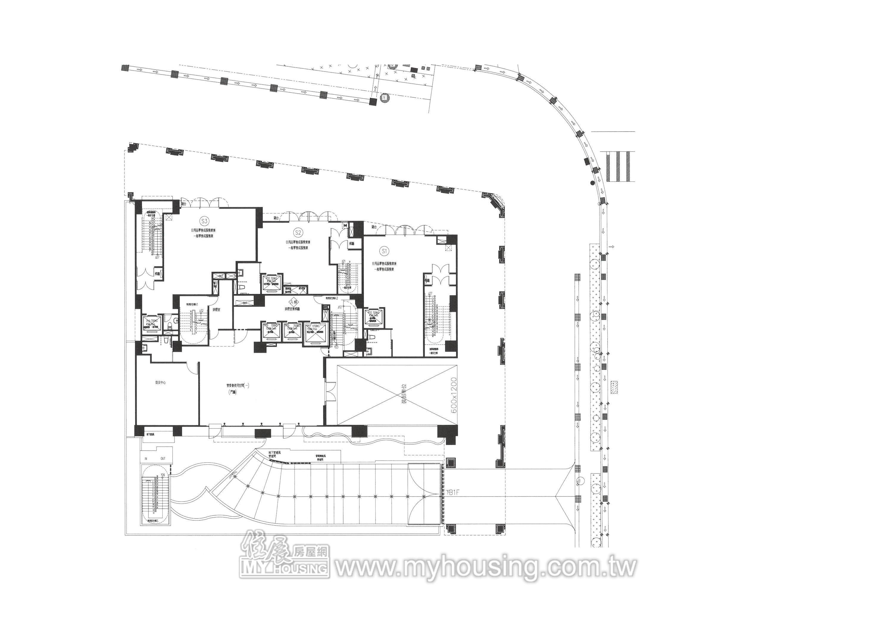
建案規劃

建築設計

拓璞聯合

投資興建

企劃銷售

使用執照

未提供

預定交屋日

2026-03

建造執照

110-1039

規劃戶數

136 戶

基地面積

587 坪

建蔽率

37.57%

個案短評

▲備註:此資料由住展企研室人員親至現場訪查,與雜誌同步更新。

位機捷A7重劃區,近郵政物流、樂善科學園區、距文青中小學不遠。主推190坪店面。

訴求特色

休閒公設: 健身房 / 挑高門廳

週邊環境: 面臨主幹道或次要幹道

建案優勢: 一般制震 / 監控系統 / 隔音氣密窗 / 文教學區

銷售特色: 高銀貸(80%以上)

電子地圖

免責聲明

為完整呈現第一手房地產資訊,住展雜誌市場資訊由市調人員定期走訪房屋銷售現場,及編輯記者採訪核對,確保消息來源明確,然市場隨時變動,圖文內容僅供參考,不屬於投資建議,實際情況以建案銷售現場為準。註:住展估價模型說明請見此

您可能會想看......

本區熱門建案

預約看屋

關閉預約看屋
Powered by
建案資料異動

關閉表格

收藏建案

尚未收藏建案