建案搜尋 新竹縣 新豐鄉 昌昕明新首席NO.2

昌昕明新首席NO.2

開價

35萬/坪
高於本區平均行情5.71%

住展估價

尚無資料

實價登錄

尚未提供

總價

尚無資料

建案型態

預售屋 / 華廈

投資興建

企劃銷售

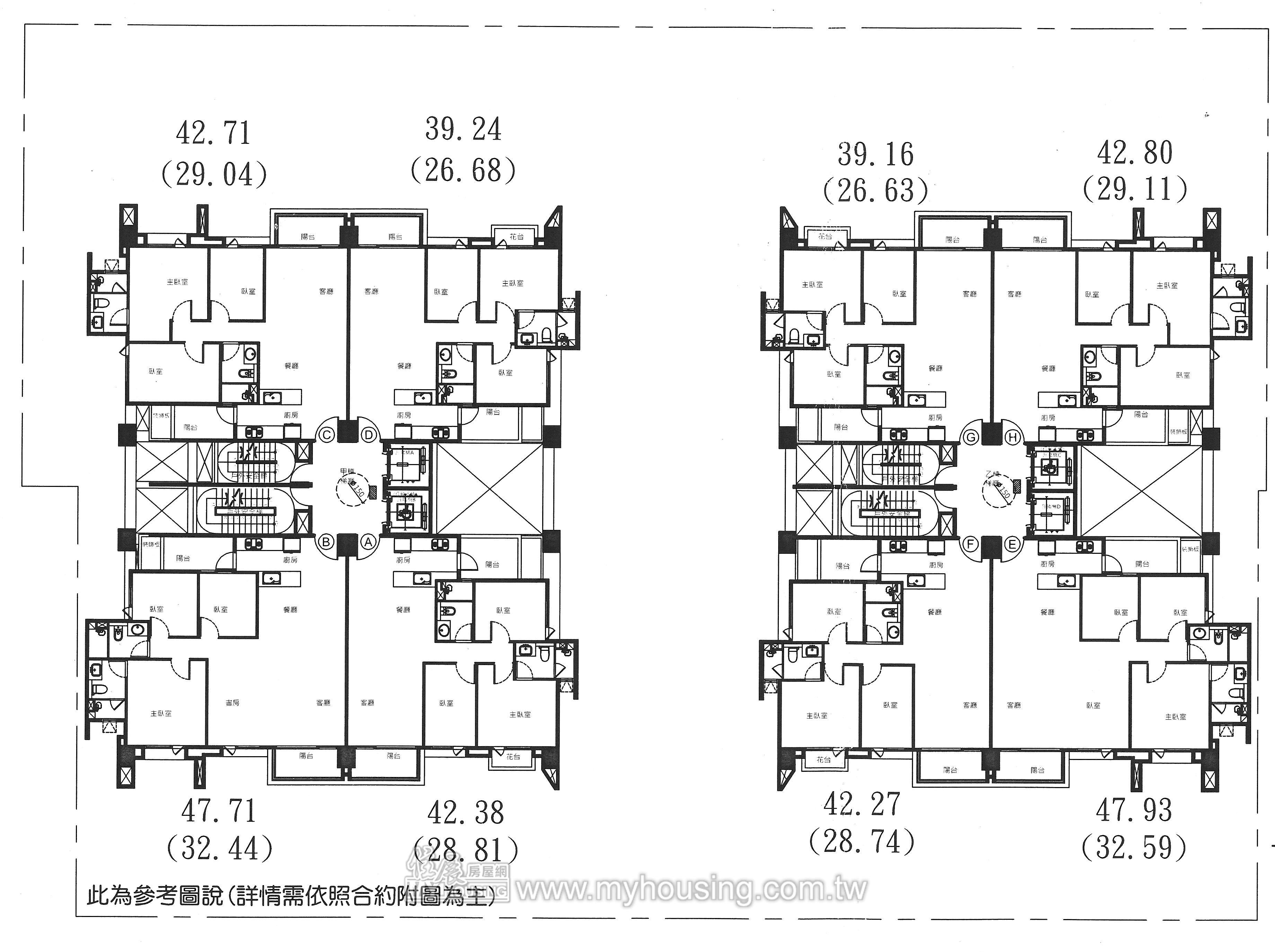
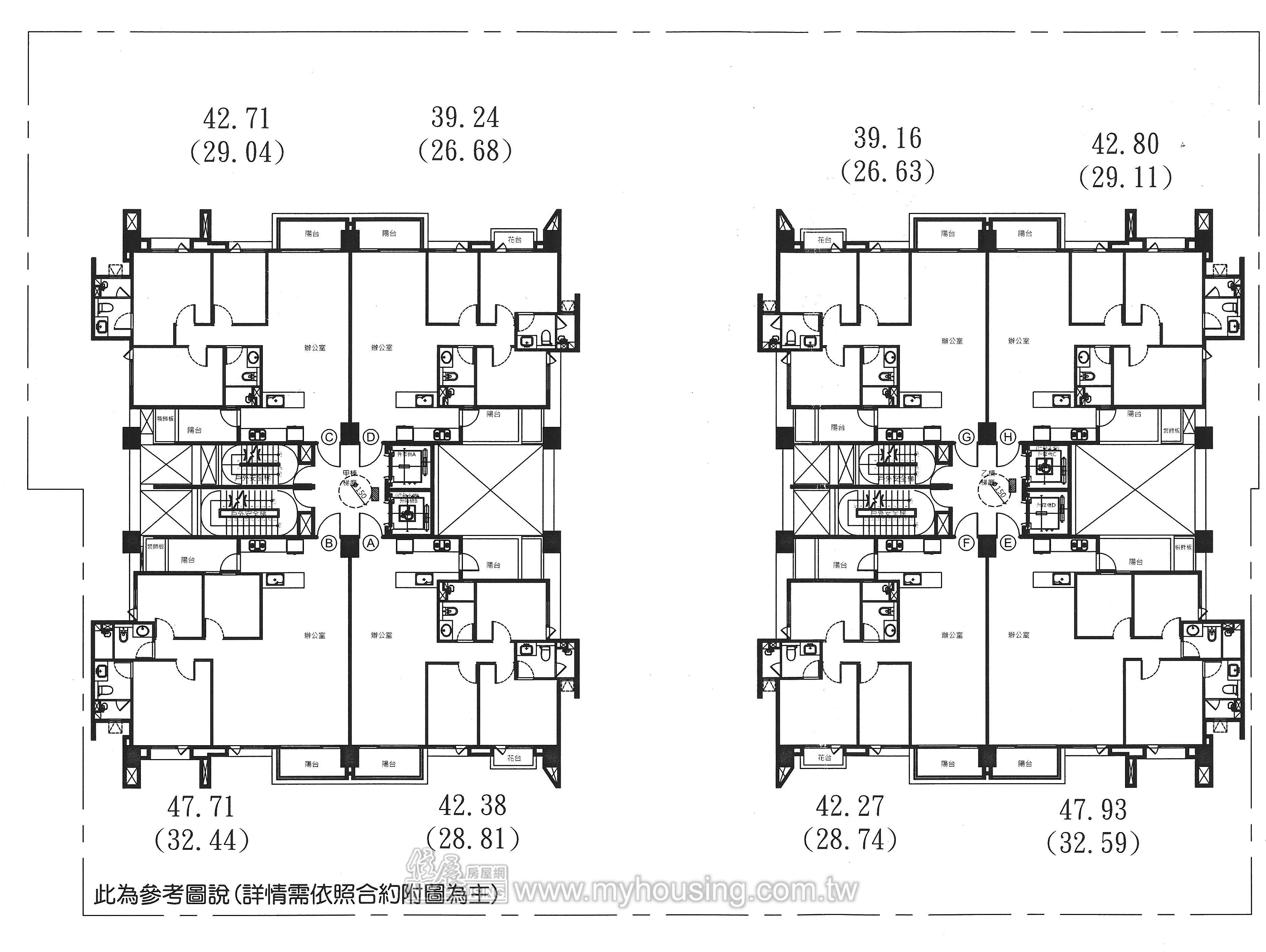
建案坪數

39~47坪

銷售狀態

銷售中

關注人數

 71981人關注

詳細資料

基地位置

明新八街

總價

車位

平面/200~205萬

進駐日期

2022-07-20

銀行貸款

75%

層數

地上9層/地下2層

公設比

28-32%

實價登錄資訊

▲以下價格為每坪單價/萬元;單價已扣車位。
更新日期與內政部每月1日11日21日同步;成交價格受交易日期、樓層及戶別影響,故平均單價僅供參考。

歷史最高價

37.7 萬元/坪

交易年月

2024/04/08

歷史最低價

29.3 萬元/坪

交易年月

2022/07/21

交易筆數

51筆

歷史平均價

31.5 萬元/坪

議價率

尚未提供

建案規劃

建築設計

林政達

企劃銷售

使用執照

未提供

預定交屋日

2025-12

建造執照

111-0270

規劃戶數

79 戶

基地面積

670 坪

建蔽率

49.9%

個案短評

▲備註:此資料由住展企研室人員親至現場訪查,與雜誌同步更新。

基地670坪,位明新重劃區,鄰近公園,距明新科大不遠,規劃79戶,可售為店面。

訴求特色

休閒公設: 有休閒設施

週邊環境: 社區公園 / 面臨主幹道或次要幹道

建案優勢: 交通動線佳 / 文教學區

電子地圖

免責聲明

為完整呈現第一手房地產資訊,住展雜誌市場資訊由市調人員定期走訪房屋銷售現場,及編輯記者採訪核對,確保消息來源明確,然市場隨時變動,圖文內容僅供參考,不屬於投資建議,實際情況以建案銷售現場為準。註:住展估價模型說明請見此

您可能會想看......

本區熱門建案

預約看屋

關閉預約看屋
Powered by
建案資料異動

關閉表格

收藏建案

尚未收藏建案