鉌田心境

開價

65萬/坪
高於本區平均行情6.15%

住展估價

58.5萬/坪[註]本刊研判行情價

實價登錄

尚未提供

總價

尚無資料

建案型態

成屋 / 大樓

投資興建

企劃銷售

建案坪數

18~46坪

銷售狀態

銷售中

關注人數

 78065人關注

詳細資料

基地位置

大同路二段184巷1-6號

總價

車位

平面/價格未提供
機械/140萬

進駐日期

2021-11-01

銀行貸款

80%

層數

地上14層/地下1層

公設比

36%

實價登錄資訊

▲以下價格為每坪單價/萬元;單價已扣車位。
更新日期與內政部每月1日11日21日同步;成交價格受交易日期、樓層及戶別影響,故平均單價僅供參考。

歷史最高價

60.2 萬元/坪

交易年月

2022/03/13

歷史最低價

54.4 萬元/坪

交易年月

2022/02/10

交易筆數

9筆

歷史平均價

56.3 萬元/坪

議價率

尚未提供

建案規劃

建築設計

吳非士

投資興建

企劃銷售

使用執照

未提供

預定交屋日

2022-07

建造執照

107-0537

規劃戶數

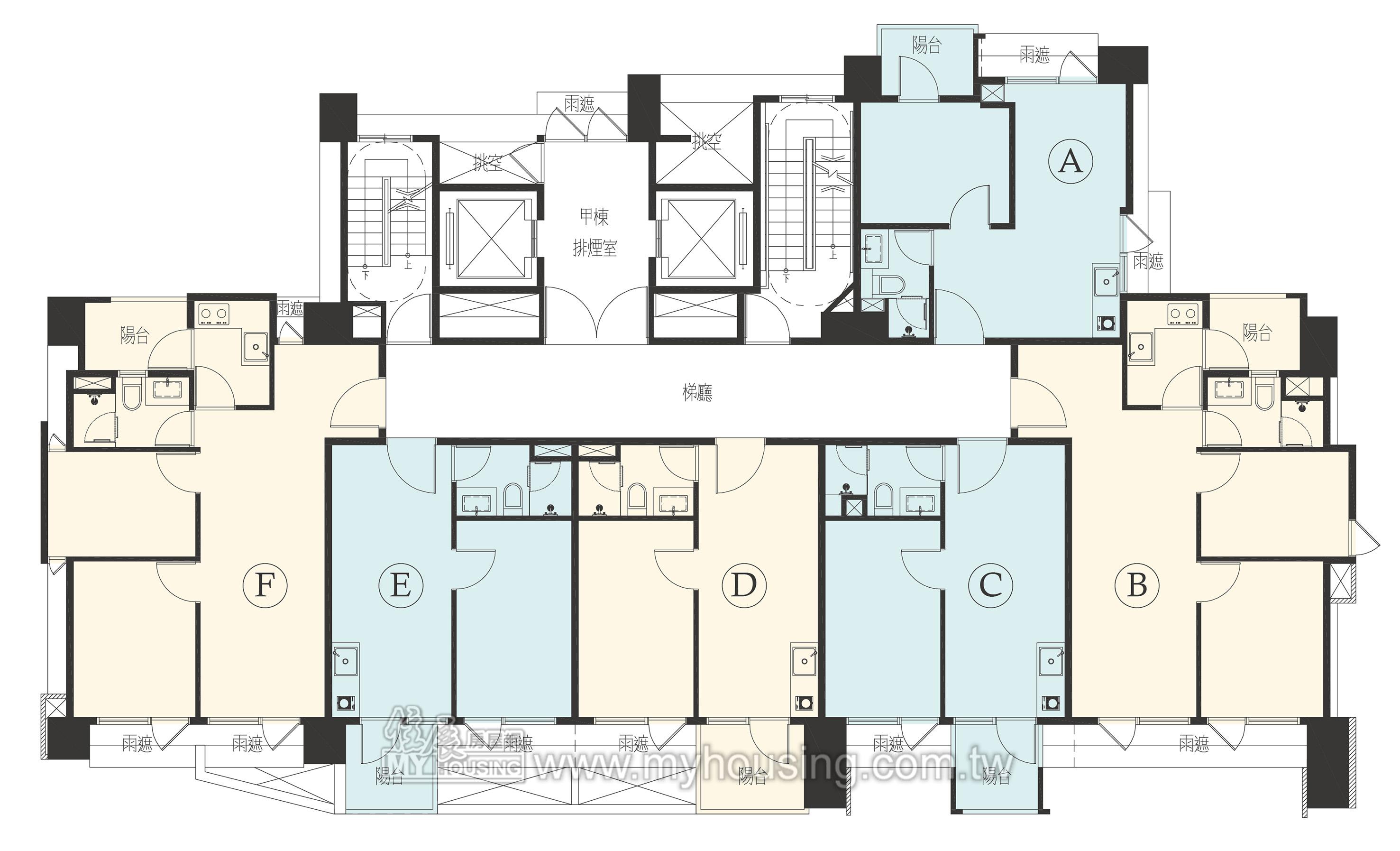
68 戶

基地面積

285.25 坪

建蔽率

44.7%

個案短評

▲備註:此資料由住展企研室人員親至現場訪查,與雜誌同步更新。

基地285坪,近汐科火車站,步行可達綜合運動場,門廳挑高6米,機能性完善。

訴求特色

週邊環境: 火車站 / 位居巷弄 / 鐵道

建案優勢: 生活機能成型

銷售特色: 先建後售 / 高銀貸(80%以上)

電子地圖

免責聲明

為完整呈現第一手房地產資訊,住展雜誌市場資訊由市調人員定期走訪房屋銷售現場,及編輯記者採訪核對,確保消息來源明確,然市場隨時變動,圖文內容僅供參考,不屬於投資建議,實際情況以建案銷售現場為準。註:住展估價模型說明請見此

您可能會想看......

本區熱門建案

預約看屋

關閉預約看屋
Powered by
建案資料異動

關閉表格

收藏建案

尚未收藏建案