鴻序

開價

58~69萬/坪
低於本區平均行情2.00%

住展估價

尚無資料

實價登錄

尚未提供

總價

尚無資料

建案型態

預售屋 / 大樓

投資興建

企劃銷售

建案坪數

35~40坪

銷售狀態

銷售中

關注人數

 1664人關注

詳細資料

基地位置

中華路一段308號旁

總價

車位

平面/265~300萬/數量: 54

進駐日期

2025-09-27

銀行貸款

75%

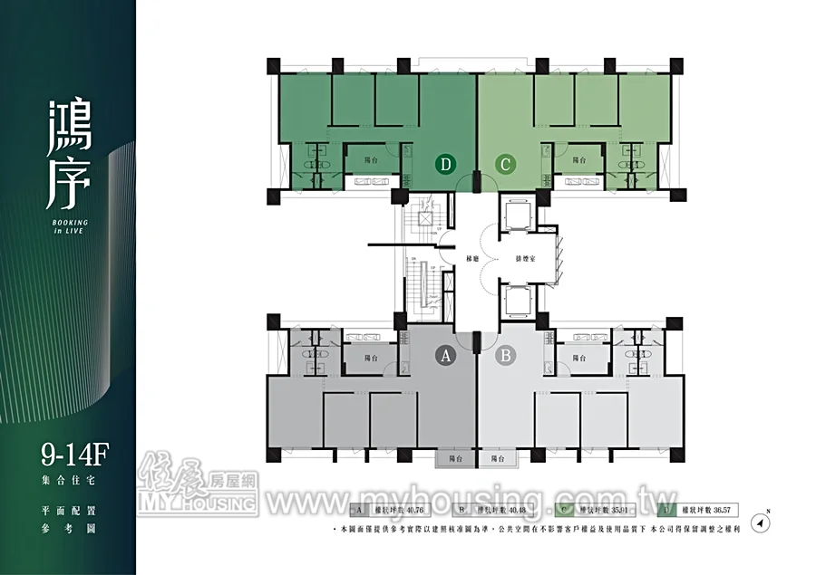
層數

地上14層/地下3層

公設比

35.06%

實價登錄資訊

▲以下價格為每坪單價/萬元;單價已扣車位。
更新日期與內政部每月1日11日21日同步;成交價格受交易日期、樓層及戶別影響,故平均單價僅供參考。

歷史最高價

尚未提供

交易年月

尚未提供

歷史最低價

尚未提供

交易年月

尚未提供

交易筆數

尚未提供

歷史平均價

尚未提供

議價率

尚未提供

建案規劃

建築設計

和築

投資興建

企劃銷售

使用執照

未提供

預定交屋日

2031-04

建造執照

114-0044

規劃戶數

52 戶

基地面積

295.5 坪

建蔽率

64.7%

個案短評

▲備註:此資料由住展企研室人員親至現場訪查,與雜誌同步更新。

基地295.5坪,臨幹道,距北新竹車站、68快速道路不遠,規劃52戶,為3房、事務所產品。

訴求特色

休閒公設: 信箱區 / 中庭花園

週邊環境: 社區公園 / 火車站 / 國高中、小學 / 面臨主幹道或次要幹道

建案優勢: 交通動線佳 / 生活機能成型 / 優質建商 / 系列推案

銷售特色: 一般付款條件

建築結構: RC

電子地圖

免責聲明

為完整呈現第一手房地產資訊,住展雜誌市場資訊由市調人員定期走訪房屋銷售現場,及編輯記者採訪核對,確保消息來源明確,然市場隨時變動,圖文內容僅供參考,不屬於投資建議,實際情況以建案銷售現場為準。註:住展估價模型說明請見此

您可能會想看......

本區熱門建案

預約看屋

關閉預約看屋
Powered by
建案資料異動

關閉表格

收藏建案

建案首圖
價格 萬元/坪
坪數 坪