詳細資料
基地位置
沙成路二巷
總價
618~722萬
車位
平面/70~90萬
進駐日期
2022-04-10
銀行貸款
70%
層數
地上7層/地下層
公設比
28-30%
實價登錄資訊
▲以下價格為每坪單價/萬元;單價已扣車位。更新日期與內政部每月1日/11日/21日同步;成交價格受交易日期、樓層及戶別影響,故平均單價僅供參考。
歷史最高價
30.0 萬元/坪
交易年月
2023/05/28
歷史最低價
22.5 萬元/坪
交易年月
2024/02/21
交易筆數
27筆
歷史平均價
25.5 萬元/坪
議價率
7.0%
建案規劃
個案短評
▲備註:此資料由住展企研室人員親至現場訪查,與雜誌同步更新。
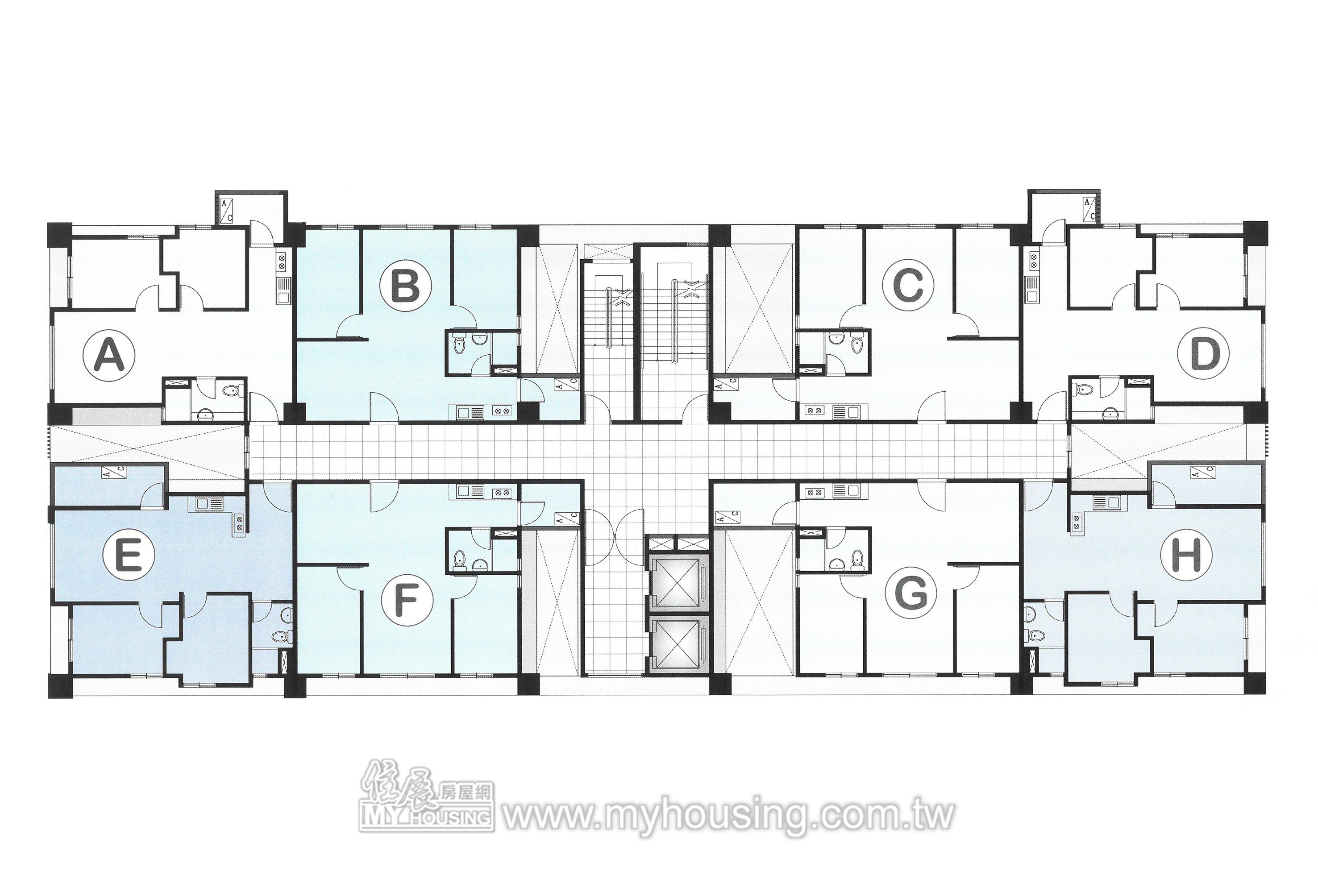
基地469坪,距頭城火車站約700公尺,規劃32戶住家,為2~3房格局,公設比28~30%。
訴求特色
週邊環境: 面臨主幹道或次要幹道
建案優勢: 交通動線佳 / 生活機能成型
電子地圖
免責聲明
為完整呈現第一手房地產資訊,住展雜誌市場資訊由市調人員定期走訪房屋銷售現場,及編輯記者採訪核對,確保消息來源明確,然市場隨時變動,圖文內容僅供參考,不屬於投資建議,實際情況以建案銷售現場為準。註:住展估價模型說明請見此































