建案搜尋 臺北市 內湖區 鼎實企業總部

鼎實企業總部

開價

76.0萬/坪
低於本區平均行情47.00%

住展估價

60.0萬/坪[註]本刊研判行情價

實價登錄

尚未提供

總價

尚無資料

建案型態

成屋 / 廠辦、工廠

投資興建

企劃銷售

建案坪數

1677坪

銷售狀態

銷售中

關注人數

 37024人關注

詳細資料

基地位置

舊宗路二段175號

總價

車位

平面/180萬

進駐日期

2022-02-01

銀行貸款

70%

層數

地上5層/地下4層

公設比

41%

實價登錄資訊

▲以下價格為每坪單價/萬元;單價已扣車位。
更新日期與內政部每月1日11日21日同步;成交價格受交易日期、樓層及戶別影響,故平均單價僅供參考。

歷史最高價

尚未提供

交易年月

尚未提供

歷史最低價

尚未提供

交易年月

尚未提供

交易筆數

尚未提供

歷史平均價

尚未提供

議價率

尚未提供

建案規劃

建築設計

蕭家福聯合

投資興建

企劃銷售

使用執照

未提供

預定交屋日

2023-04

建造執照

108-0163

規劃戶數

1 戶

基地面積

350 坪

建蔽率

59.9%

個案短評

▲備註:此資料由住展企研室人員親至現場訪查,與雜誌同步更新。

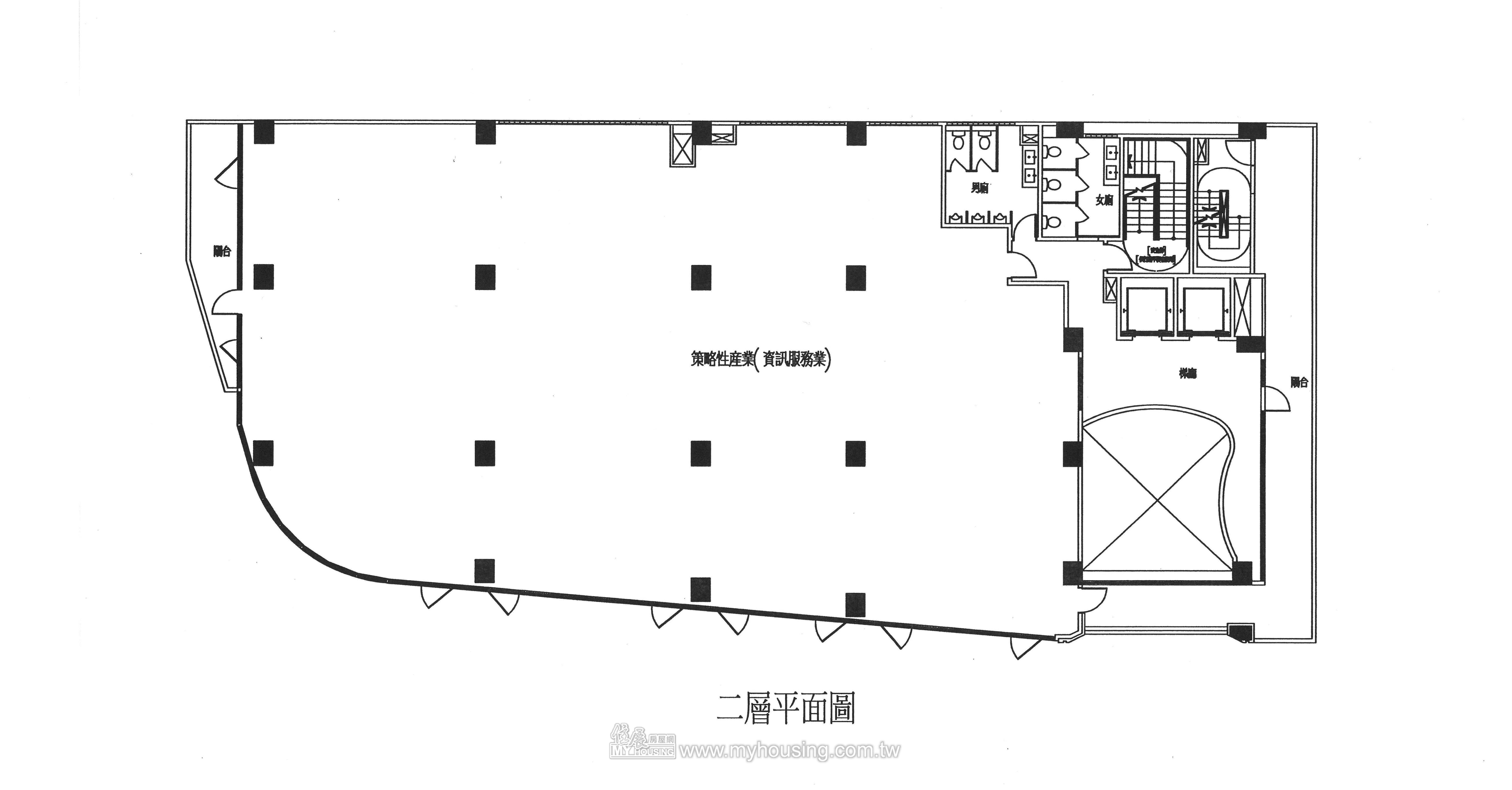
基地350坪,位內湖科學園區,近高速公路,共五個單位,一層一戶284~395坪,整棟銷售,強調具河景。

訴求特色

週邊環境: 社區公園 / 位居角地 / 面臨主幹道或次要幹道 / 近交流道

建案優勢: 交通動線佳

電子地圖

免責聲明

為完整呈現第一手房地產資訊,住展雜誌市場資訊由市調人員定期走訪房屋銷售現場,及編輯記者採訪核對,確保消息來源明確,然市場隨時變動,圖文內容僅供參考,不屬於投資建議,實際情況以建案銷售現場為準。註:住展估價模型說明請見此

您可能會想看......

本區暫無相似建案可供參考。

本區熱門建案

預約看屋

關閉預約看屋
Powered by
建案資料異動

關閉表格

收藏建案

尚未收藏建案