峰景敦仁
開價
開價未定
住展估價
80萬/坪[註]本刊研判行情價
實價登錄
尚未提供
總價
尚無資料
建案型態
成屋 / 大樓
投資興建
企劃銷售
建案坪數
72~88坪
銷售狀態
銷售中
關注人數
59319人關注
詳細資料
基地位置
新北大道一段6號
總價
車位
平面/240~330萬/數量: 206
進駐日期
2015-12-15
銀行貸款
50%
層數
地上26層/地下5層
公設比
32%
實價登錄資訊
▲以下價格為每坪單價/萬元;單價已扣車位。更新日期與內政部每月1日/11日/21日同步;成交價格受交易日期、樓層及戶別影響,故平均單價僅供參考。
歷史最高價
尚未提供
交易年月
尚未提供
歷史最低價
尚未提供
交易年月
尚未提供
交易筆數
尚未提供
歷史平均價
尚未提供
議價率
尚未提供
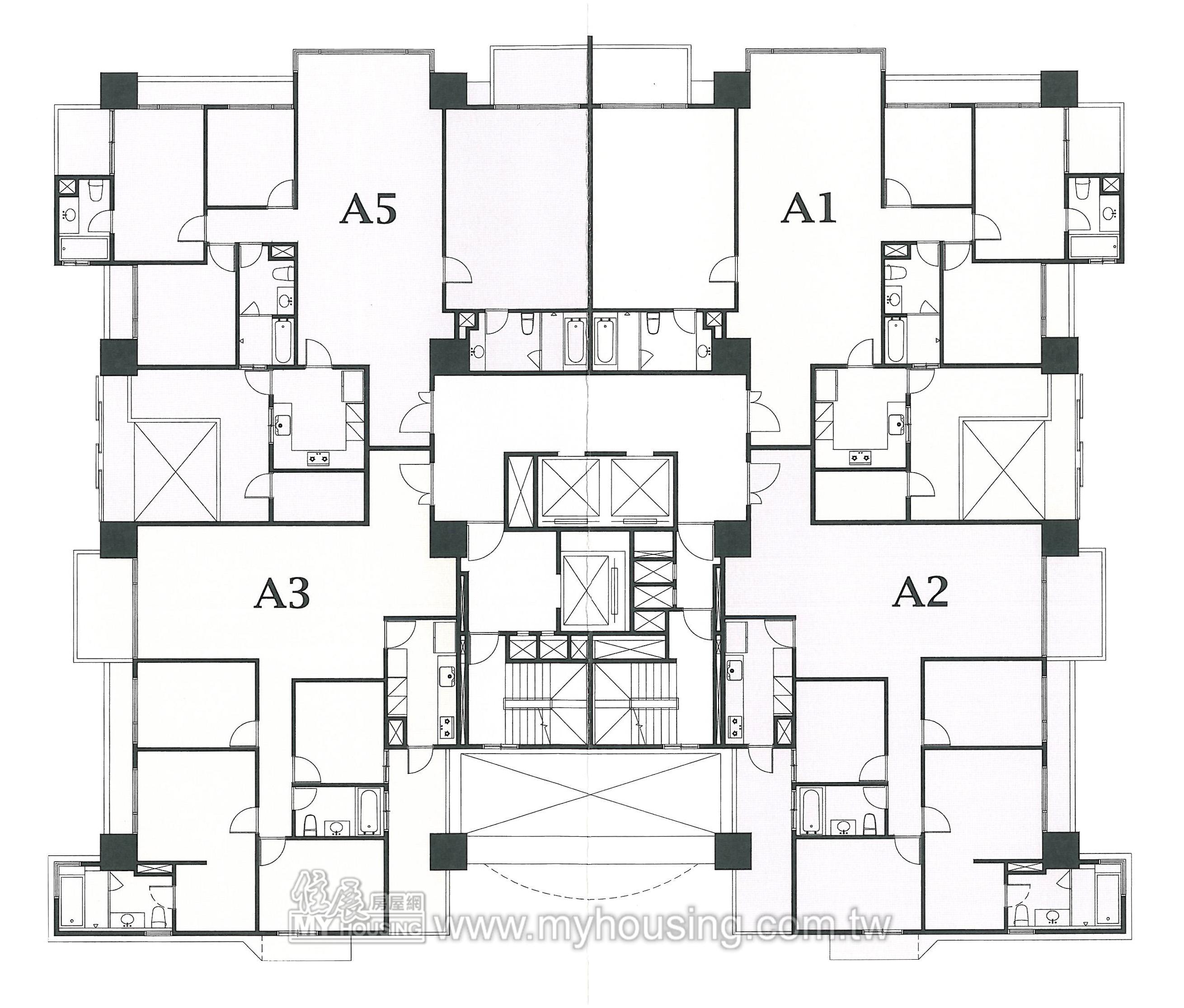
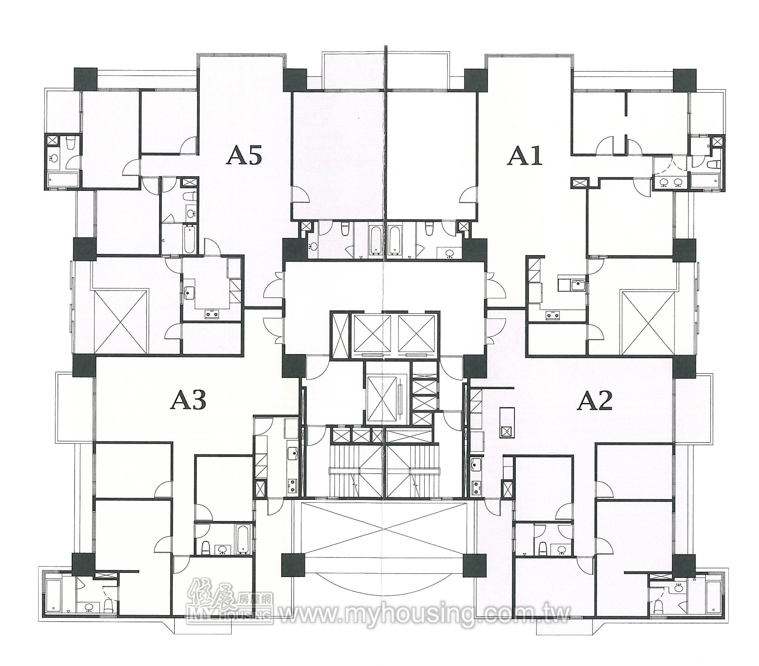
建案規劃
個案短評
▲備註:此資料由住展企研室人員親至現場訪查,與雜誌同步更新。
基地716坪,位行政中心旁,正對運動公園。採預約賞屋制,為換屋產品規劃,主推88坪面公園戶型。
訴求特色
捷運路線: 中和新蘆線(TP-O)
休閒公設: 瑜伽教室 / 迎賓大廳 / 交誼會客室 / 會議室 / 廚藝教室 / 空中花園 / 中庭花園 / 有休閒設施
週邊環境: 社區公園 / 捷運站 / 行政機關 / 運動中心、體育場 / 位居角地 / 醫院 / 面臨主幹道或次要幹道
建案優勢: 強調施工品質 / 交通動線佳 / 生活機能成型 / 文教學區 / 捷運500m內
銷售特色: 先建後售
建築結構: RC
電子地圖
免責聲明
為完整呈現第一手房地產資訊,住展雜誌市場資訊由市調人員定期走訪房屋銷售現場,及編輯記者採訪核對,確保消息來源明確,然市場隨時變動,圖文內容僅供參考,不屬於投資建議,實際情況以建案銷售現場為準。註:住展估價模型說明請見此


























