詳細資料
基地位置
和平西路100號
總價
車位
平面/115~140萬
進駐日期
2018-10-11
銀行貸款
80%
層數
地上12層/地下2層
公設比
32%
實價登錄資訊
▲以下價格為每坪單價/萬元;單價已扣車位。更新日期與內政部每月1日/11日/21日同步;成交價格受交易日期、樓層及戶別影響,故平均單價僅供參考。
歷史最高價
尚未提供
交易年月
尚未提供
歷史最低價
尚未提供
交易年月
尚未提供
交易筆數
尚未提供
歷史平均價
尚未提供
議價率
尚未提供
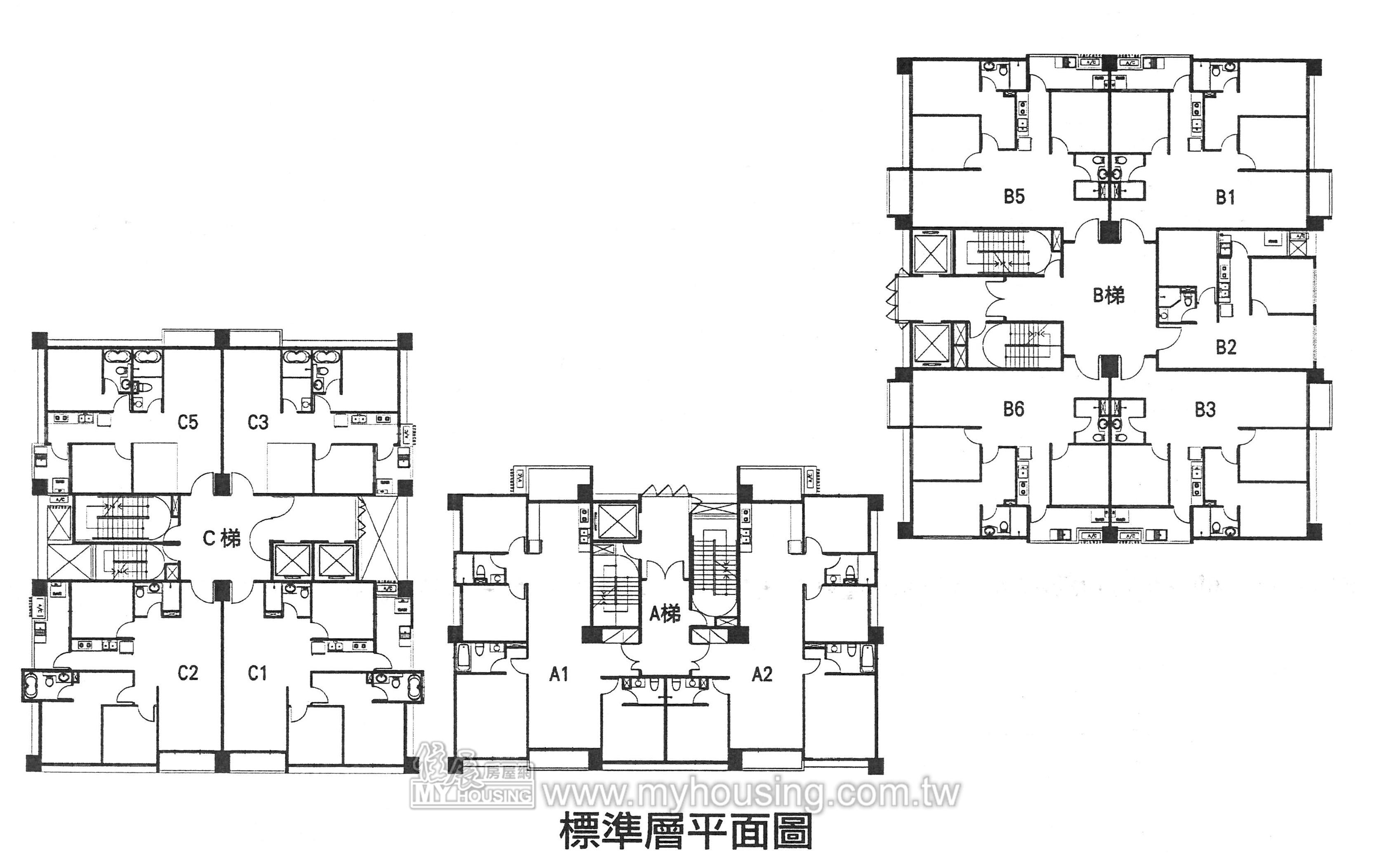
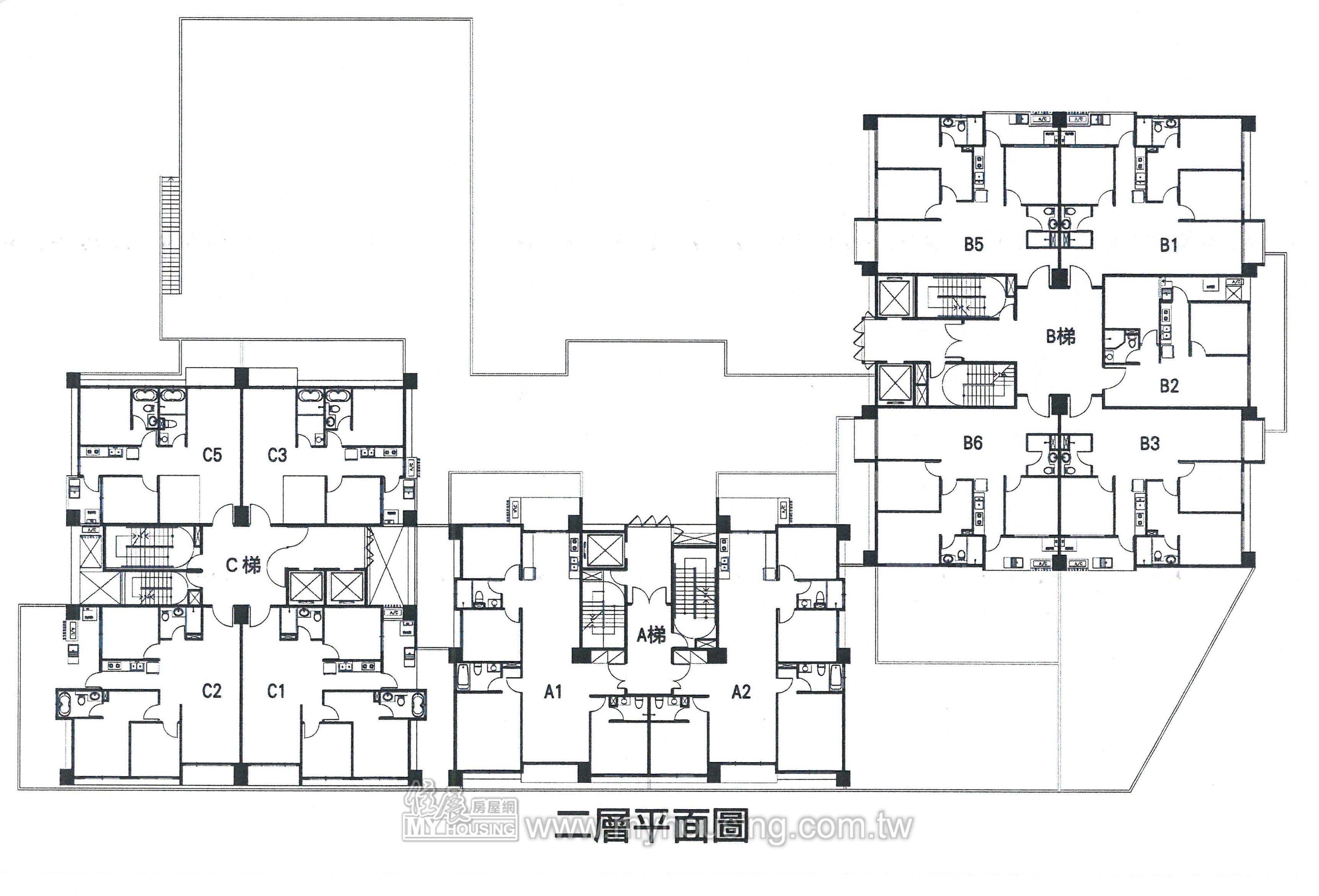
建案規劃
個案短評
▲備註:此資料由住展企研室人員親至現場訪查,與雜誌同步更新。
基地1242坪,位大園市區,處角地,近大園國小,規劃127戶,可售為店面,採預約賞屋。
訴求特色
休閒公設: 有休閒設施
週邊環境: 位居角地 / 面臨主幹道或次要幹道
建案優勢: 強調建材品質 / 交通動線佳 / 生活機能成型 / 系列推案
銷售特色: 高銀貸(80%以上)
電子地圖
免責聲明
為完整呈現第一手房地產資訊,住展雜誌市場資訊由市調人員定期走訪房屋銷售現場,及編輯記者採訪核對,確保消息來源明確,然市場隨時變動,圖文內容僅供參考,不屬於投資建議,實際情況以建案銷售現場為準。註:住展估價模型說明請見此













































