璽來登帝璽

開價

開價未定

住展估價

79萬/坪[註]本刊研判行情價

實價登錄

尚未提供

總價

1,400~3,100萬

建案型態

預售屋 / 大樓

投資興建

企劃銷售

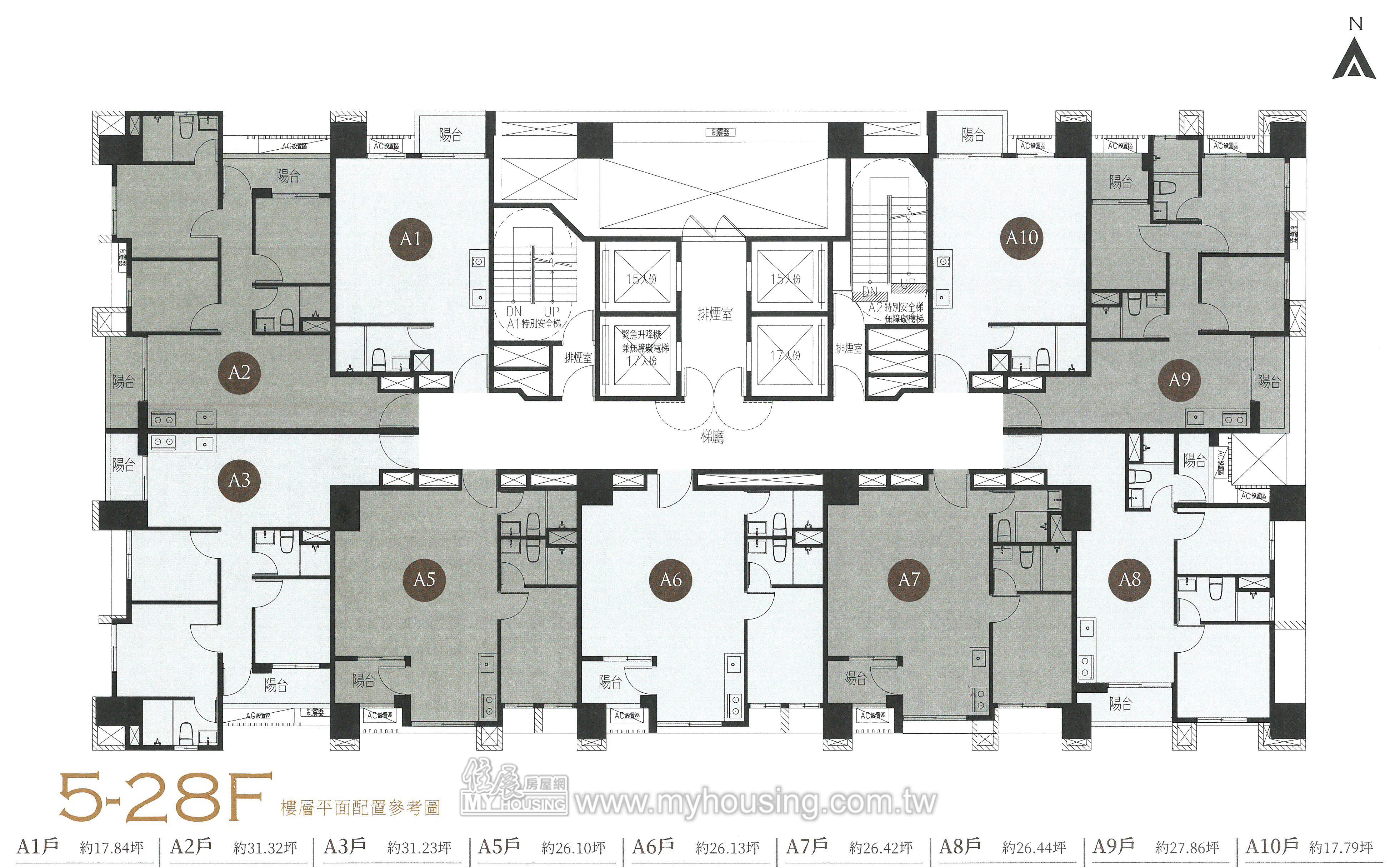
建案坪數

18~31坪

銷售狀態

銷售中

關注人數

 30381人關注

詳細資料

基地位置

八德路、三民路口

總價

1,400~3,100萬

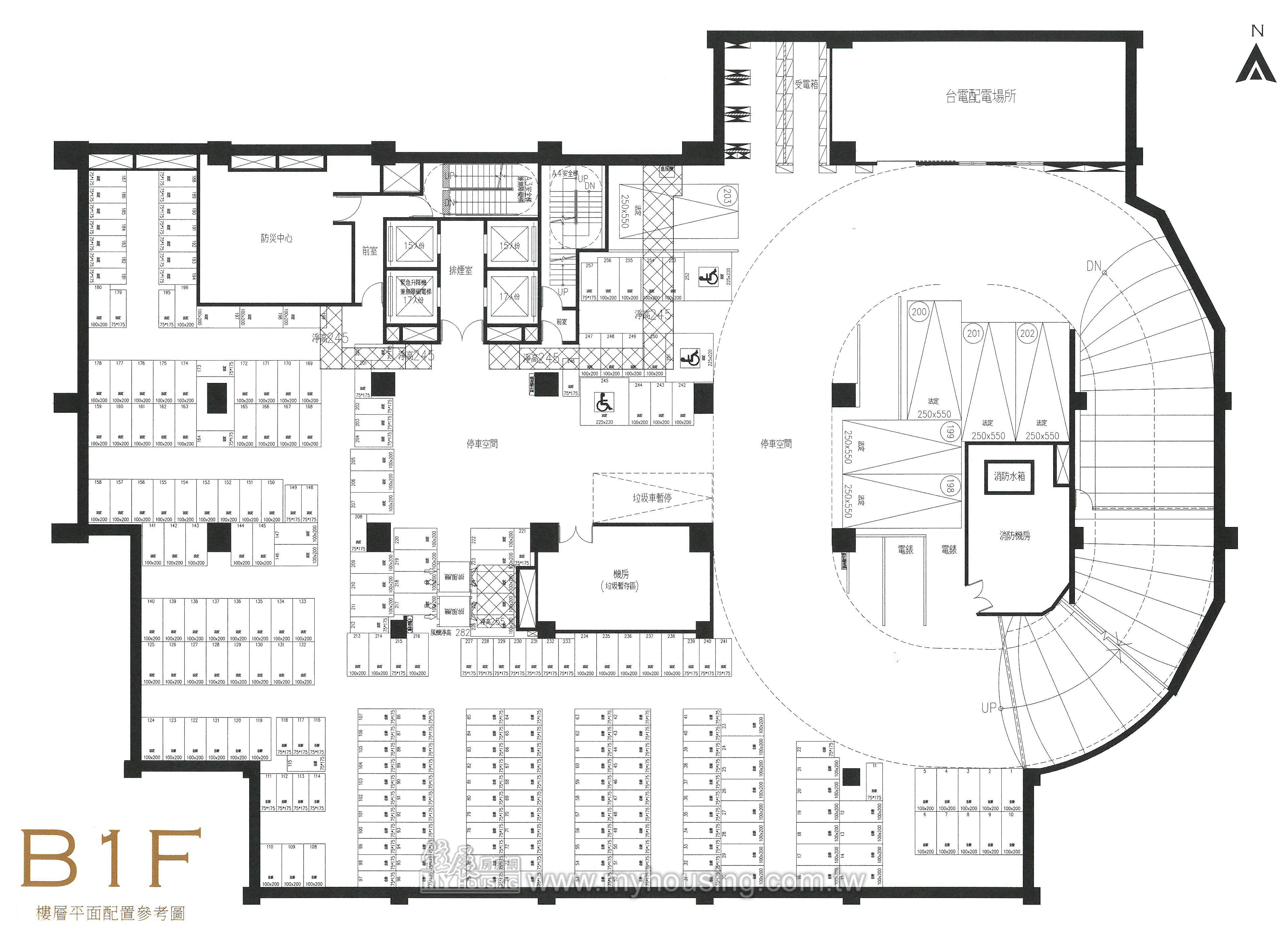
車位

平面/價格未提供/數量: 203

進駐日期

2024-12-01

銀行貸款

70%

層數

地上29層/地下5層

公設比

36.8%

實價登錄資訊

▲以下價格為每坪單價/萬元;單價已扣車位。
更新日期與內政部每月1日11日21日同步;成交價格受交易日期、樓層及戶別影響,故平均單價僅供參考。

歷史最高價

尚未提供

交易年月

尚未提供

歷史最低價

尚未提供

交易年月

尚未提供

交易筆數

尚未提供

歷史平均價

尚未提供

議價率

尚未提供

建案規劃

建築設計

相承建築師事務所

使用執照

未提供

預定交屋日

2030-09

建造執照

113-0271

規劃戶數

255 戶

基地面積

738.8 坪

建蔽率

22.4%

個案短評

▲備註:此資料由住展企研室人員親至現場訪查,與雜誌同步更新。

基地738.8坪,鄰近捷運林口站。規劃1~3房,訴求訂簽4%、自備58萬起方案。

訴求特色

捷運路線: 桃園機場捷運(A)

週邊環境: 捷運站 / 位居角地 / 面臨主幹道或次要幹道

建築結構: RC

電子地圖

免責聲明

為完整呈現第一手房地產資訊,住展雜誌市場資訊由市調人員定期走訪房屋銷售現場,及編輯記者採訪核對,確保消息來源明確,然市場隨時變動,圖文內容僅供參考,不屬於投資建議,實際情況以建案銷售現場為準。註:住展估價模型說明請見此

您可能會想看......

本區熱門建案

預約看屋

關閉預約看屋
Powered by
建案資料異動

關閉表格

收藏建案

尚未收藏建案